
Turate, CO, Italia
Residenziale - Villa
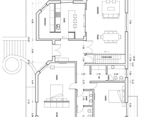
Descrizione
ENG:
The villa will have on the first floor a large living space with windows overlooking the garden and a balcony. Two bedrooms and two bathrooms (one of the two only for guests so no shower). On the ground floor instead we will have a large convivial open space for dinners with friends and relative open kitchen. A large laundry room, technical room, a cinema / gym room. In addition there will be a nice two-room apartment with additional access from the outside dedicated, the garage will be external to be built for three cars https://www.immobiliare.it/annunci/114954393
SPA:
La villa debe tener un amplio espacio habitable en el primer piso con ventanas con vista al jardín y un balcón. Dos dormitorios y dos baños (uno de los dos es sólo para invitados y por tanto sin ducha). En la planta baja, sin embargo, dispondremos de un amplio espacio diáfano y de convivencia para cenas con amigos y una cocina abierta. Un amplio lavadero, cuarto de servicio, sala de cine/gimnasio. Además habrá un lindo departamento de dos ambientes con acceso adicional desde el exterior dedicado, el garaje será externo para ser construido para tres autos https://www.immobiliare.it/annunci/114954393
ITA:
La villa dovra avere al piano uno un grande spazio living con vetrate sul giardino e balconata. Due camere da letto e due bagni ( uno dei due solo per ospiti per cui senza doccia ). Al piano terra invece avremo un grande open space conviviale per cene con amici e relativa cucina a vista. Una grande lavanderia , locale tecnico, una stanza cinema/palestra. in piu ci sara un bel bilocale con ulteriore access dall'esterno dedicato, il garage sarà esterno da costruire per tre auto https://www.immobiliare.it/annunci/114954393