
Moraro, Province of Gorizia, Italy
Residenziale - medium-villa
Descrizione
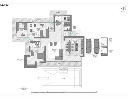
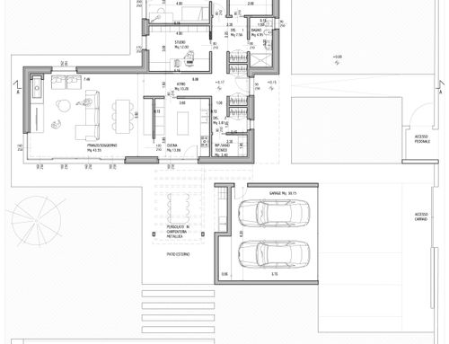
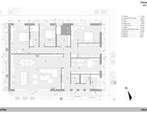
Villa singola, design semplice, lineare, o dritta o anche a L, vista la forma del terreno, per avere la maggior esposizione al sole. no dislivelli, tetto piano, ampie vetrate, doteremo la casa di panelli fotovoltaici, accumulatore, pompa di calore, ventilazione controllata, dotata di piscina. preferirei anche un design strutturale che tiene di soluzioni di architettura che facciano risparmiare, per riservare più budget nei materiali usati, negli impianti e finiture interne. Lo stile di casa è minimale, come nelle foto. in fondo al terreno c'è anche un box con un cavallo e relativo recinto. metratura indicativa 200mq stanze indicative: soggiorno-cucina separata con isola tavolo/bancone- sala da pranzo-due bagni-lavanderia-2 camere da letto-1 camera padronale con cabina armadio- studio.
Single villa, simple design, linear, or straight or even L, to have the most exposure to the sun. no gradients, flat roof, large windows, we will equip the house with photovoltaic panels, accumulator, heat pump, ventilation controlled, with a swimming pool. I would also prefer a structural design that takes architecture solutions that save money, to reserve more budget in best materials, in plants and interior finishes. The style of home is minimal, as in the photos of example. at the bottom of the land there is also a box with a horse and its enclosure. indicative floor area 200 sq.m. indicative rooms: separate living room-kitchen with island table / counter-dining room-two bathrooms-laundry-2 bedrooms-1 master bedroom with walk-in closet-study.