
Bagnolo in Piano, RE, Italia
Residenziale - Appartamento
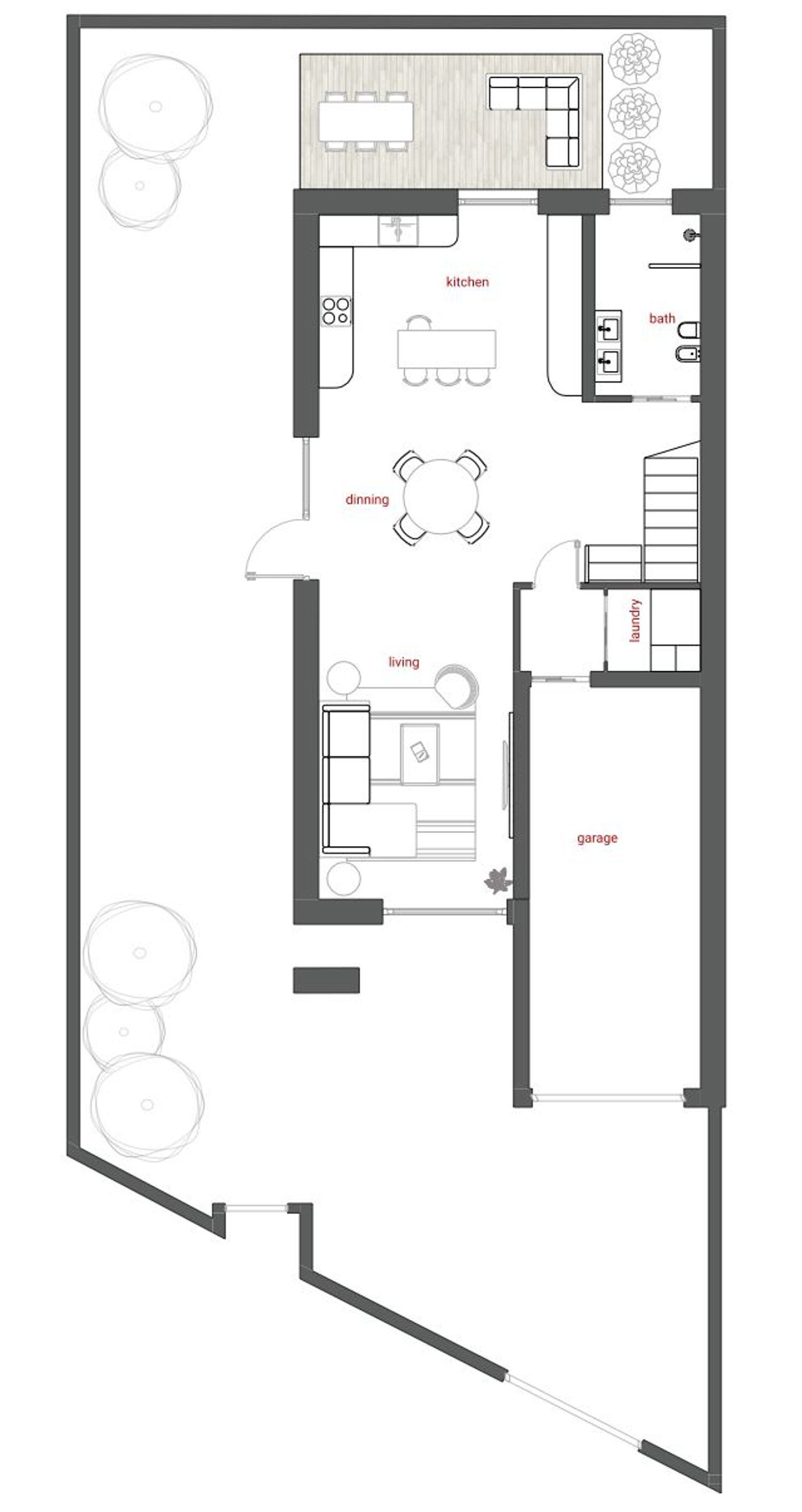
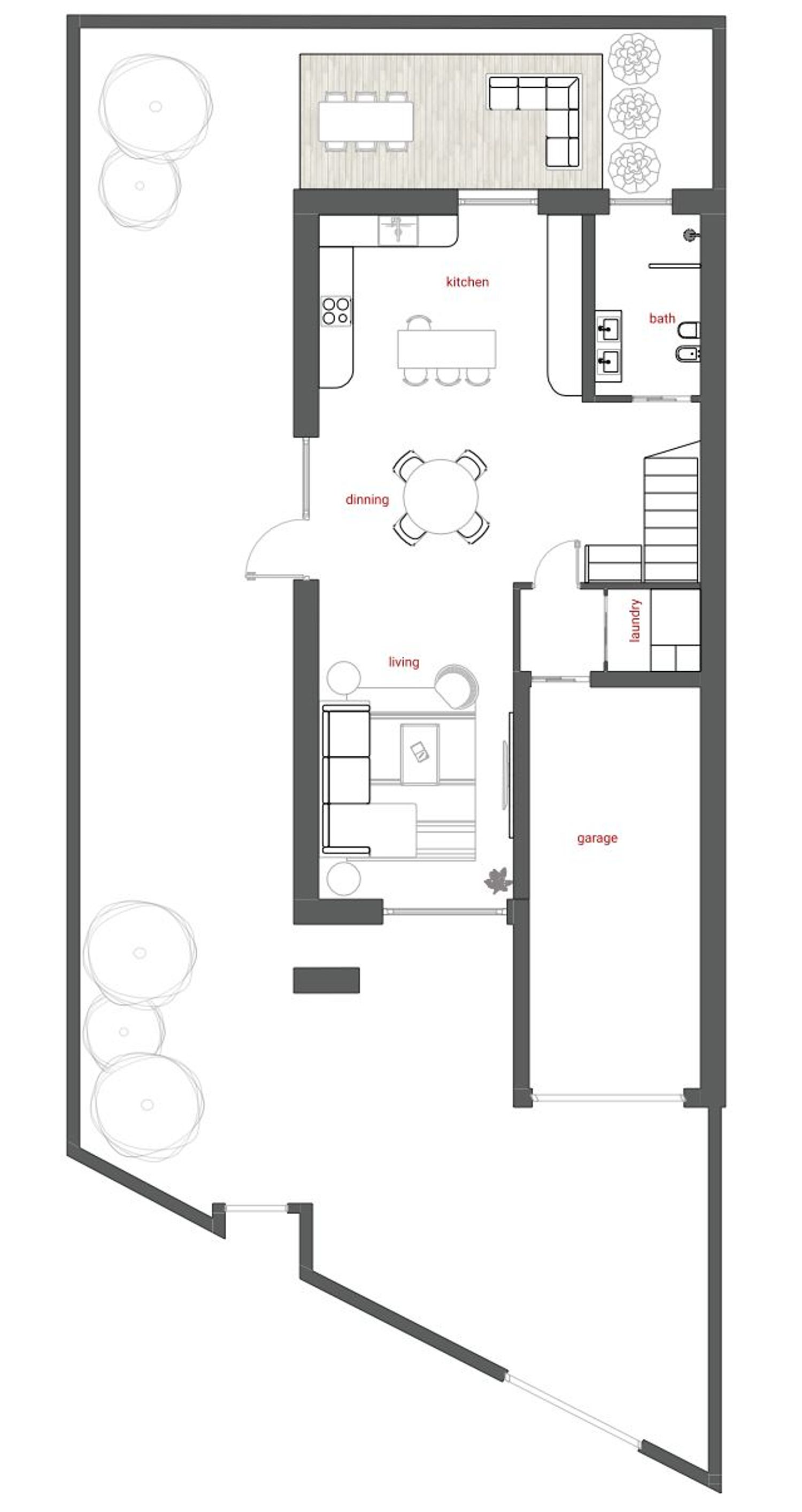
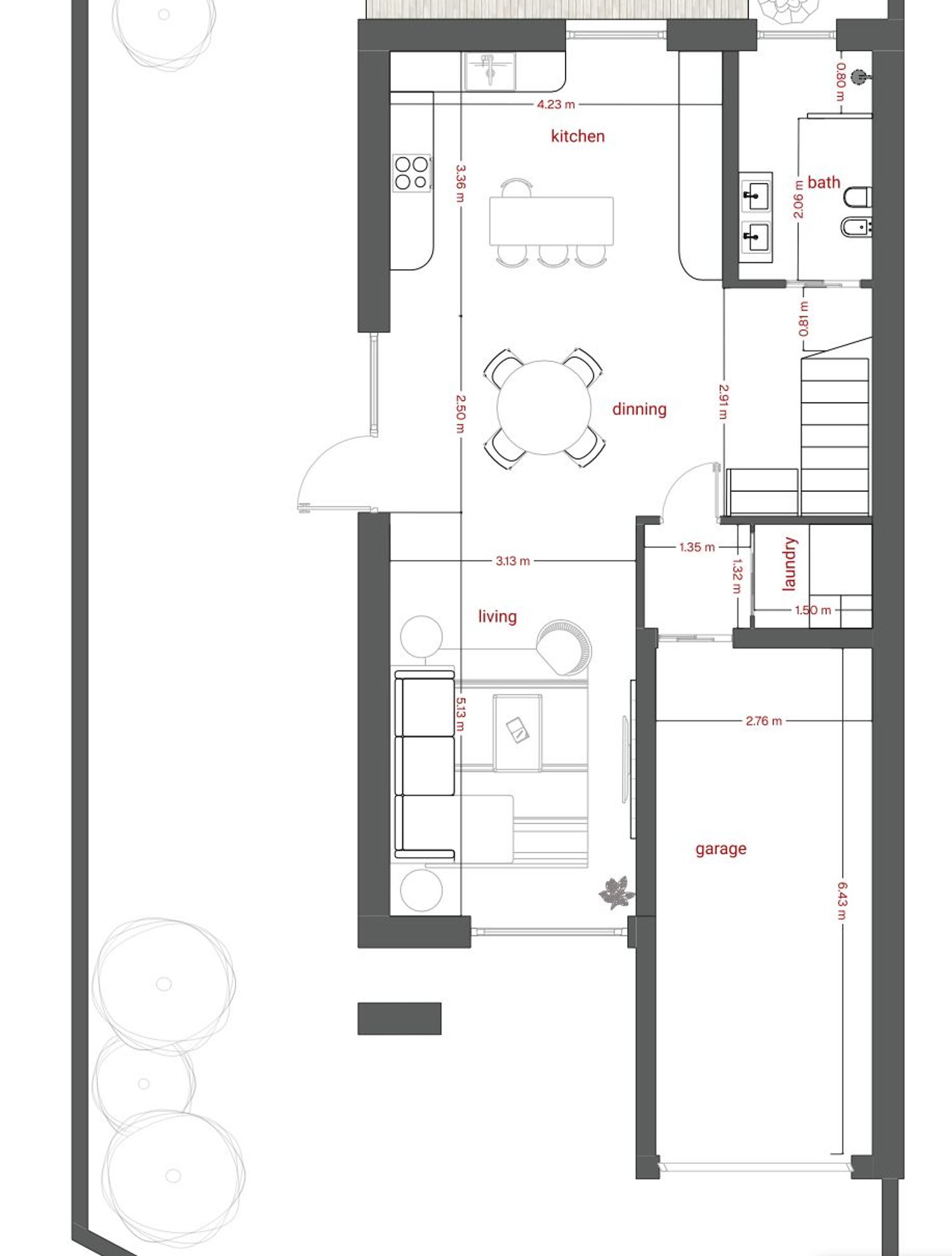
dear client,
we tried to change the plan a bit
1- first we changed the kitchen place and put it beside the bath to collect the plumbing
in one place and make it near the patio in the back
and we brought the living in the front of the house
we also put a circle dinning for the kids and added some curves for the kitchen
2- for the second floor we placed the master bed room beside the bath to add the insuite bath for it
and we changed the measures for the other rooms to get two bedrooms for the kids and a separate room for the office