
Bagnolo in Piano, RE, Italia
Residenziale - Appartamento
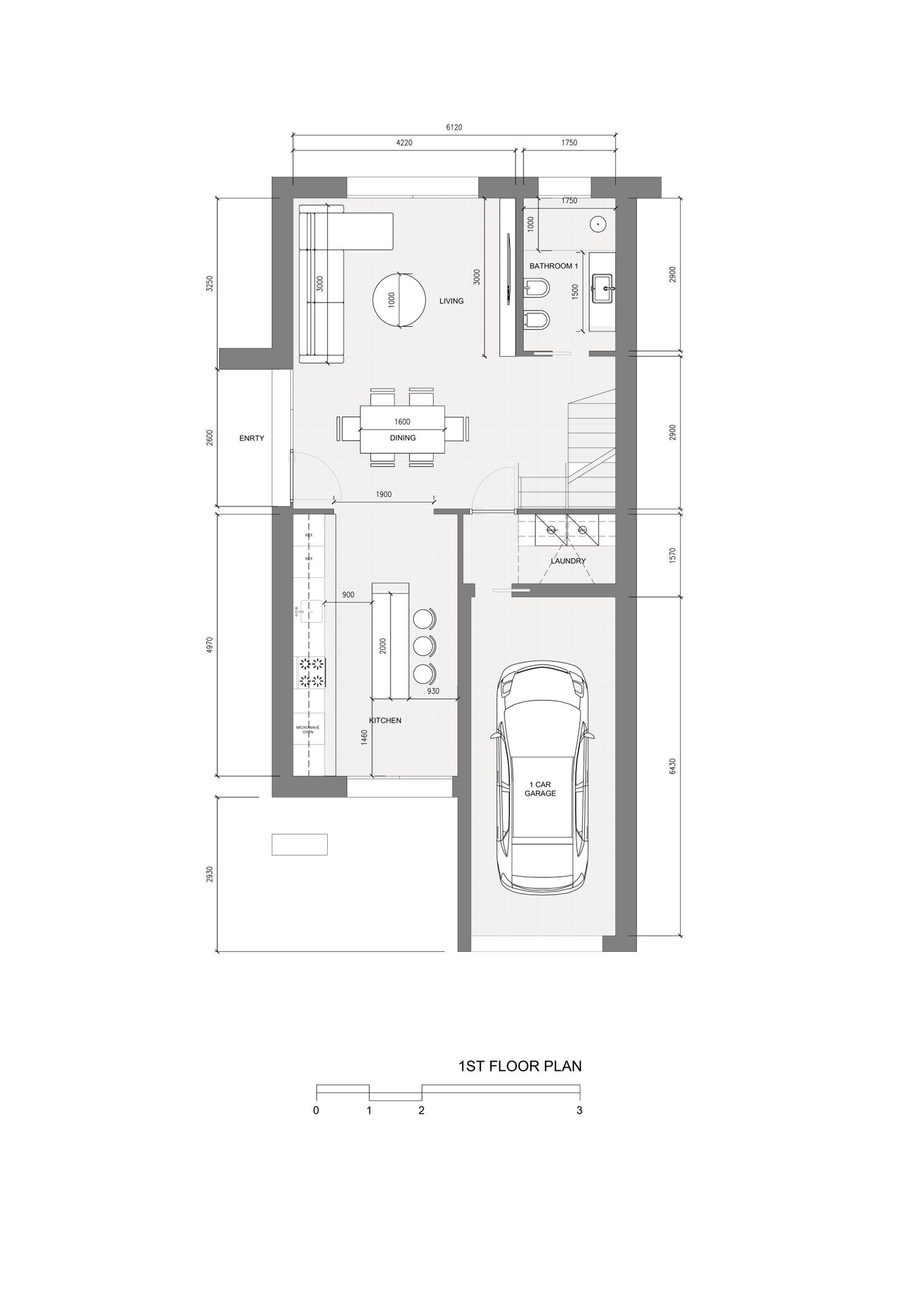
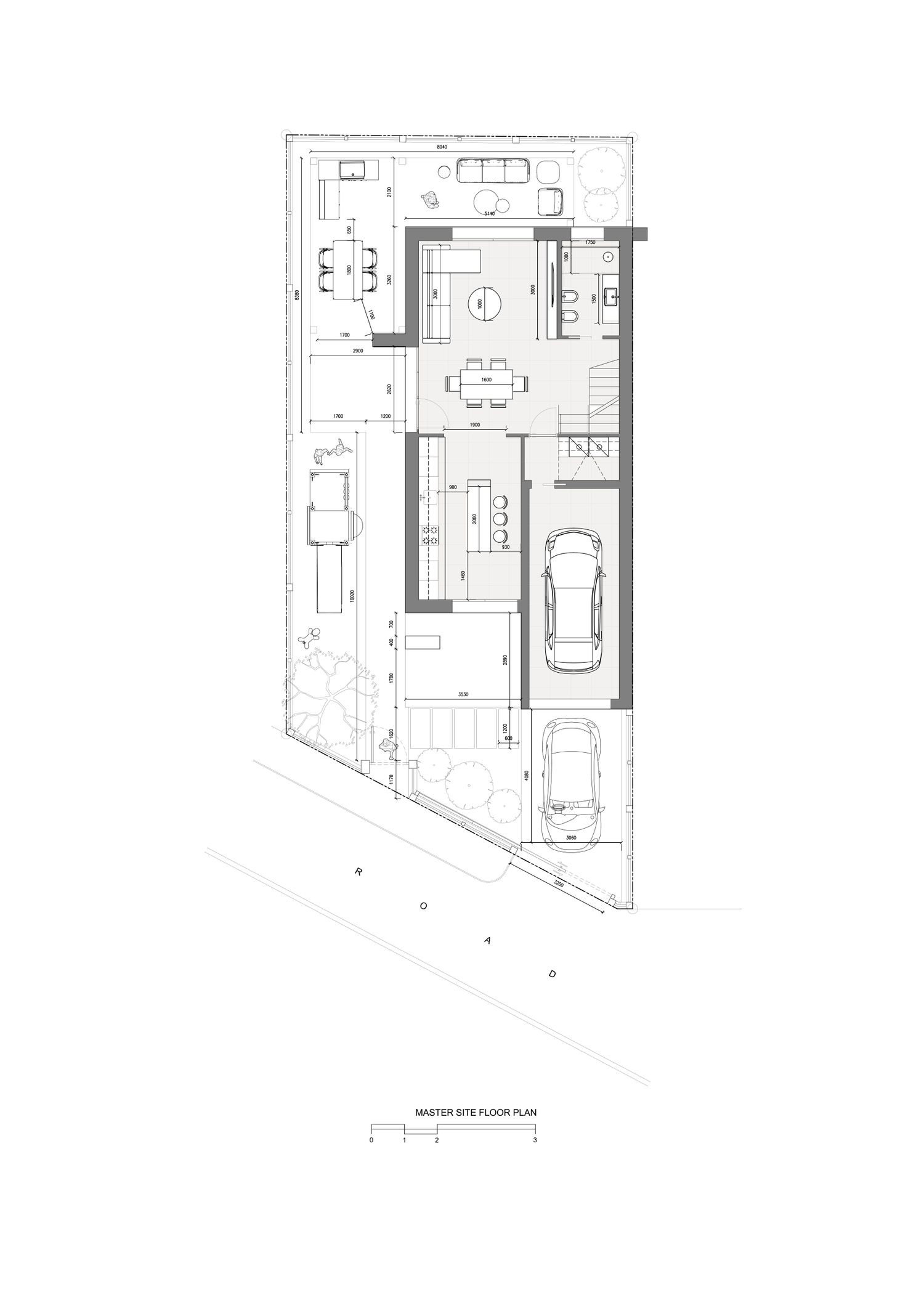
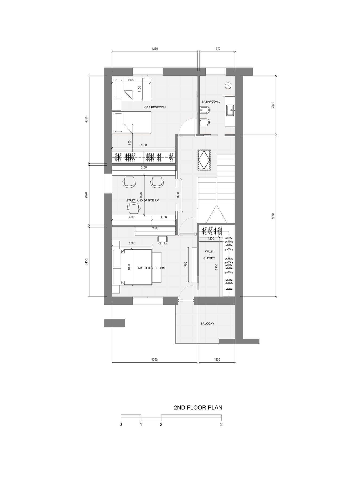
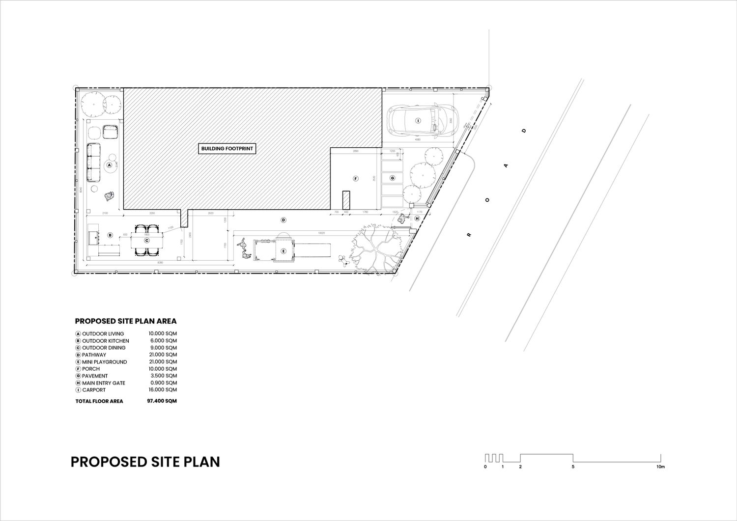
The proposed Villa design aims to create a minimalist and contemporary home that balances aesthetics, functionality, and comfort, tailored to the lifestyle of a family of four. The design embraces clean and essential lines while ensuring a warm and welcoming atmosphere, with practical solutions suitable for both adults and children.