
07034 Perfugas, Province of Sassari, Italy
Residenziale - Casa
Descrizione
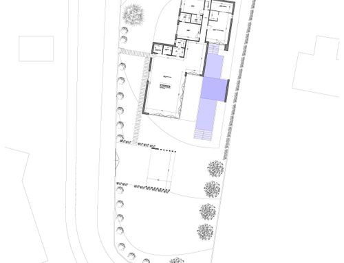
Il terreno oggetto di intervento si trova a Perfugas (Sassari) ed è composto da due lotti di 800 mq ciascuno, che andranno uniti e considerati come unico lotto da 1600 mq totali.
Il "Lotto A" ricade su due zone territoriali distinte (zona B1 e zona B), mentre il "Lotto B" si trova totalmente nella zona territoriale B1. Per la progettazione dovranno essere rispettate le Prescrizioni Urbanistiche delle zone (distanze dai confini, fabbricati e strade, rapporto di copertura ecc), la normativa vigente sia regionale che nazionale (dimensioni degli ambienti, rapporti aeroilluminanti, risparmio energetico, ecc) e lo stralcio del Piano Particolareggiato (mc totali realizzabili), come da allegati. Nello specifico, quest'ultimo consente la realizzazione di 1050 mc totali.
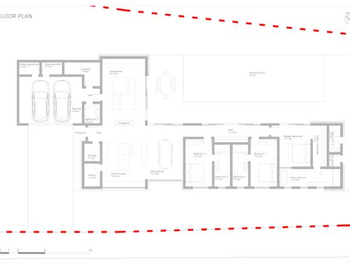
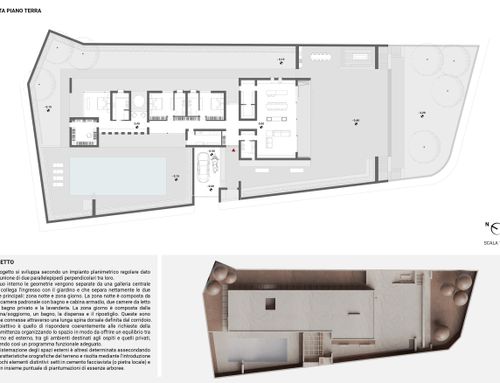
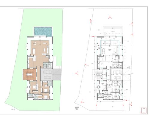
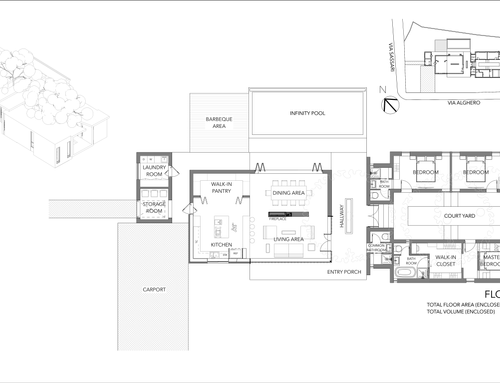
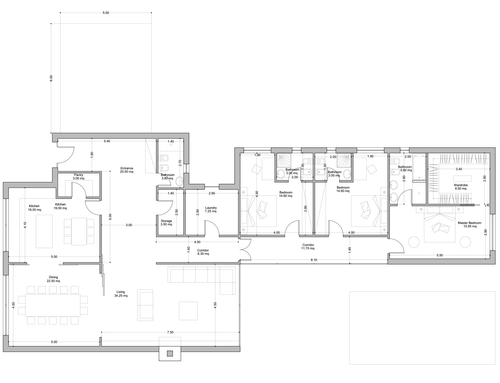
La villa si dovrà sviluppare su un unico livello, con uno stile moderno e colori semplici e con un orientamento ottimale. Nella zona giorno gli ambienti e gli arredi dovranno essere di grandi dimensioni (cucina ampia, living room, tavolo minimo 10 posti, camino..) e dovranno essere presenti anche un bagno, una lavanderia attrezzata, una dispensa e un ripostiglio per la differenziata e gli attrezzi di pulizia. Nella zona notte ci dovranno essere n. 3 camere matrimoniali con bagno privato, di cui una dovrà essere quella padronale con una cabina armadio e bagno privato con doccia e vasca. All'esterno un barbecue, un posto auto coperto da una pergola (o simile) oppure un garage, ed una piscina.
Tutte le viste render richieste, dovranno essere esterne!
The land subject to intervention is located in Perfugas (Sassari) and is composed by two lots of 800 square meters each, which will be joined and considered as a single batch of 1600 square meters in total.
The "Lot A" lays on two distinct territorial areas (zone B1 and zone B), while the "Lot B" is located entirely in the territorial area B1. For the design, the Urban Planning Prescriptions (distances from borders, buildings and roads, coverage ratio, etc.), the regional and national regulations in force (dimensions of the rooms, ratios of natural ventilation and natural lighting based on the surface, energy savings, etc.) and the removal of the Detailed Plan (total cubic meters achievable), must be respected, as per annexes. Specifically, the latter allows the construction of 1050 total cubic meters.
The villa will have to be developed on a single level, with a modern style and simple colors and with an optimal orientation. In the living area, the rooms and furnishings must be large (large kitchen, living room, table with at least 10 seats, fireplace ..) and there must also be a bathroom, a fully equipped laundry room, a pantry and a storage room for waste separation and cleaning tools. In the sleeping area there must be no. 3 double bedrooms with private bathroom, one of which will be the master bedroom with a walk-in closet and private bathroom with shower and bathtub. Outside there will be a barbecue, a parking space covered by a pergola (or similar) or a garage, and a pool.
All render views must be outdoor!