
08015 Macomer, Province of Nuoro, Italy
Residenziale - Casa
Descrizione
Il terreno oggetto di intervento si trova a sud ovest del centro urbano di Macomer (Nuoro), prospiciente la Via Aldo Moro, con una superficie totale di 1216 mq. Il lotto è individuato dal Piano Urbanistico Comunale come zona Cb.2 ex zona di espansione estensiva, per la quale è necessario rispettare una distanza dai confini di 5 metri, altezza massima di 9 metri ed un rapporto di copertura del 30%. La superficie massima realizzabile è pari a 364,80 mq, mentre il volume massimo realizzabile è pari a 1728 mc. La regione oggetto di lottizzazione si presenta con andamento altimetrico in forte pendenza, accessibile da due strade comunali a monte e a valle: Via Aldo Moro e Via G. Caria.
La progettazione dovrà rispettare la normativa vigente sia regionale che nazionale (dimensioni degli ambienti, rapporti aeroilluminanti, risparmio energetico, ecc), oltre che le prescrizioni urbanistiche sopra citate.
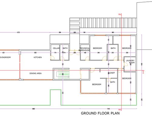
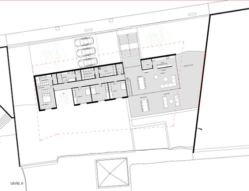
La villa si dovrà sviluppare su un unico livello, con uno stile moderno, colori semplici e con un orientamento ottimale. Nella zona giorno la cucina ampia dovrà essere separata dal living room e salotto attraverso una parete vetrata e avere una vista sul giardino (nel living room non dovranno essere posizionati pilastri). Dovranno essere presenti, inoltre, un bagno (completo di lavabo, wc e bidet), una lavanderia attrezzata (vaschetta, lavatrice, asciugatrice, asse da stiro), una dispensa e un ripostiglio per la differenziata e gli attrezzi di pulizia. Nella zona notte ci dovranno essere: n. 3 camere per le bambine di 14-20 mq ciascuna, accessibili attraverso un corridoio nel quale dovrà essere presente anche un bagno completo di due lavelli, vasca, doccia grande a filo pavimento, wc e bidet; n. 1 camera matrimoniale con bagno privato (completo di due lavelli, doccia grande, wc e bidet) e cabina armadio. Dovrà essere presente anche una stanza per gli ospiti completa di bagno ed uno studio, ipotizzabili ad una quota più bassa rispetto al resto degli ambienti su detti. Per le auto, dovrà essere previsto un parcheggio coperto sulla quota della Via Aldo Moro, ed un'autorimessa accessibile dalla Via G. Caria, che potrà essere posizionata anche a filo strada.
Dovrà essere previsto un impianto di riscaldamento a pavimento e un impianto di raffrescamento con bocchette, un caminetto nella zona giorno con una nicchia per il deposito della legna, tutti i sanitari dovranno essere di tipo sospeso.
Tutte le viste render richieste, dovranno essere esterne!
The land subject to intervention is located southwest of the urban center of Macomer (Nuoro), overlooking Via Aldo Moro, with a total area of 1216 square meters. The lot is identified by the Municipal Urban Plan as zone Cb.2 former extensive expansion zone, for which it is necessary to respect a distance from the borders of 5 meters, a maximum height of 9 meters and a coverage ratio of 30%. The maximum achievable surface is equal to 364.80 square meters, while the maximum achievable volume is equal to 1728 cubic meters. The region subject to subdivision has a steeply sloping elevation, accessible from two municipal roads upstream and downstream: Via Aldo Moro and Via G. Caria.
The design must comply with both regional and national regulations in force (dimensions of the rooms, aero-illuminating ratios, energy saving, etc.), as well as the urban planning regulations mentioned above.
The villa will have to be developed on one level, with a modern style, simple colors and with an optimal orientation. In the living area, the large kitchen must be separated from the living room and lounge by a glass wall and have a view of the garden (pillars should not be placed in the living room). There must also be a bathroom (complete with sink, toilet and bidet), a fully equipped laundry room (tub, washing machine, dryer, ironing board), a pantry and a storage room for waste separation and cleaning tools. In the sleeping area there must be: n. 3 rooms for girls of 14-20 square meters each, accessible through a corridor in which there must also be a bathroom complete with two sinks, bathtub, large shower flush with the floor, toilet and bidet; n. 1 double bedroom with private bathroom (complete with two sinks, large shower, toilet and bidet) and walk-in closet. There must also be a guest room complete with bathroom and a study, conceivable at a lower altitude than the rest of the aforementioned rooms. For cars, a covered parking must be provided on the level of Via Aldo Moro, and a garage accessible from Via G. Caria, which can also be positioned flush with the road.
An underfloor heating system and a cooling system with vents must be provided, a fireplace in the living area with a niche for storing wood, all the sanitary fixtures must be of the suspended type.
All required rendered views must be external!
El terreno objeto de intervención se encuentra al suroeste del núcleo urbano de Macomer (Nuoro), con vistas a Via Aldo Moro, con una superficie total de 1216 metros cuadrados. El lote está identificado por el Plan Urbano Municipal como zona Cb.2 antigua zona de expansión extensa, para lo cual es necesario respetar una distancia de los linderos de 5 metros, una altura máxima de 9 metros y un índice de cobertura del 30%. La superficie máxima alcanzable es igual a 364.80 metros cuadrados, mientras que el volumen máximo alcanzable es igual a 1728 metros cúbicos. La región sujeta a subdivisión tiene una elevación de fuerte pendiente, accesible desde dos carreteras municipales aguas arriba y aguas abajo: Via Aldo Moro y Via G. Caria.
El diseño debe cumplir tanto con la normativa autonómica como nacional vigente (dimensiones de las habitaciones, ratios de aeroiluminación, ahorro energético, etc.), así como con la normativa urbanística antes mencionada.
La villa deberá desarrollarse en una sola planta, con un estilo moderno, colores sencillos y con una orientación óptima. En la sala de estar, la gran cocina debe estar separada de la sala de estar y el salón por una pared de vidrio y tener vista al jardín (no se deben colocar pilares en la sala de estar). También debe haber un baño (completo con lavabo, inodoro y bidé), un lavadero totalmente equipado (bañera, lavadora, secadora, tabla de planchar), una despensa y un trastero para la separación de residuos y las herramientas de limpieza. En el área de dormir debe haber: n. 3 habitaciones para niñas de 14-20 metros cuadrados cada una, accesibles a través de un pasillo en el que también debe haber un baño completo con dos lavabos, bañera, gran ducha a ras de suelo, inodoro y bidé; norte. 1 habitación doble con baño privado (completo con dos lavabos, ducha grande, inodoro y bidé) y vestidor. También debe haber una habitación de invitados completa con baño y un estudio, concebible a una altura menor que el resto de las habitaciones mencionadas. Para los automóviles, se debe proporcionar un estacionamiento cubierto en el nivel de Via Aldo Moro y un garaje accesible desde Via G. Caria, que también se puede colocar al ras de la carretera.
Se debe proporcionar un sistema de calefacción por suelo radiante y un sistema de refrigeración con rejillas de ventilación, una chimenea en la sala de estar con un nicho para almacenar leña, todos los accesorios sanitarios deben ser del tipo suspendido.
¡Todas las vistas renderizadas requeridas deben ser externas!