
Naples, Metropolitan City of Naples, Italy
Residenziale - Appartamento
Descrizione
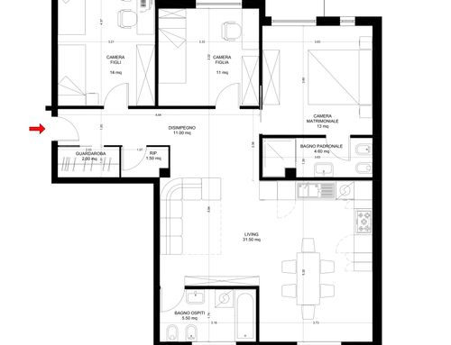
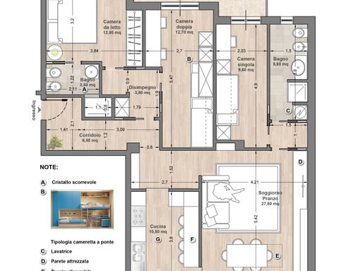
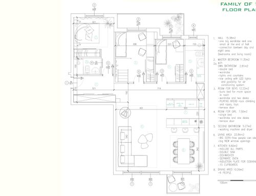
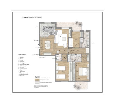
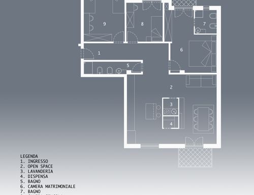
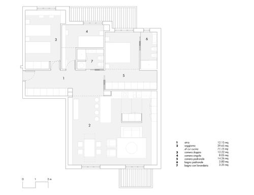
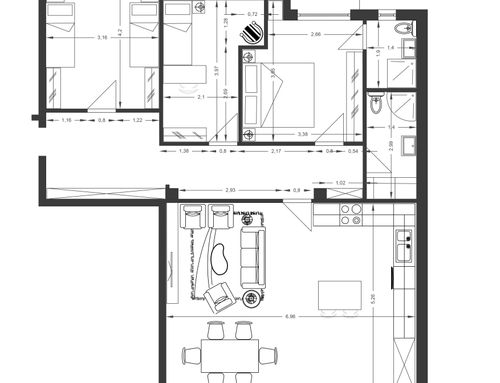
l'appartamento (altezza 3.20 metri ) dovrà essere vissuto da una famiglia di 5 persone (marito, moglie, figlia 13, figlio 10 e figlio 8), con l'aggiunta di due gatti. Necessitiamo: di arredamento moderno (reperibile in Italia), di due bagni (lavatrice ed asciugatrice, non è indispensabile la vasca), 3 camere da letto (matrimoniale con bagno esclusivo), camera figlia, camera fratelli), cucina living con almeno 5 metri tra utensili (lavastoviglie e doppio lavello) e credenze (la cucina è passabile anche sotto le finestre che hanno altezza da terra 90 cm), con tavolo pranzo (per 5/6 persone allungabile) possibilmente defilato o poco visibile dall'angolo cucina, divano (almeno possibilmente letto).
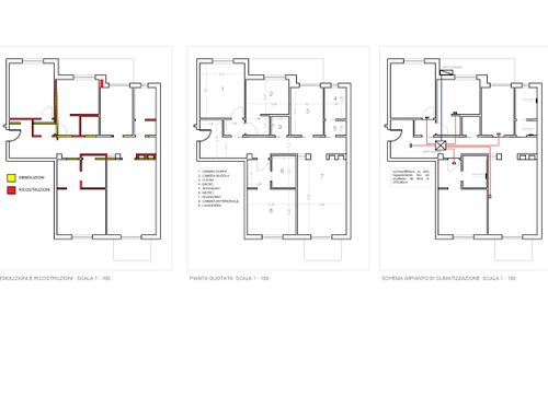
Preferenze: avendo un balcone (esattamente entrando nell'appartamento quello in fondo a dx) che affaccia in piazza, ci piacerebbe lì la zona salone/cucina (ma è una preferenza); anziché termosifoni, ci piacerebbe impianto di climatizzazione (possibilmente a zona), quindi con allocazione anche dell'eventuale motore e controsoffittatura necessaria.
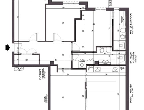
ENGLISH VERSION
The apartment will host a family of 5 (a couple and 3 children, a girl of 13 and two boys of 10 and 8 plus two domestic cats).
We would like modern furniture that can be bought in Italy.
We need two bathrooms: we need a washing machine and also a dryer, you can include a bath tub but is not mandatory.
We need 3 bedrooms: a master bedroom that should have his own bathroom, a bedroom for the girl and one for the boys.
We want the kitchen and the living area to be together. We need the kitchen to be at least 5 metres, including a double sink, the dishwasher and the cupboards. It is ok if you place the kitchen under the windows. The height between the windows and the floor is 90cm.
We want an extendible dining table for 5/6 people. We don’t want the table to be too visible from or too near the kitchen.
We’d like a sofa that could be also a bed.
Since the balcony on the right (seen from the entrance) overlooks the square, we are thinking of placing there the living area but it is not mandatory.
Instead of radiators we will install an air conditioning system so we will need a dedicated false ceiling.