
Paris, France
Commerciale - Ristorante
To Client, VIBE
Thank you for your project. We are very interested in your project's goals and vision. We have provided two options for the floor plan design.
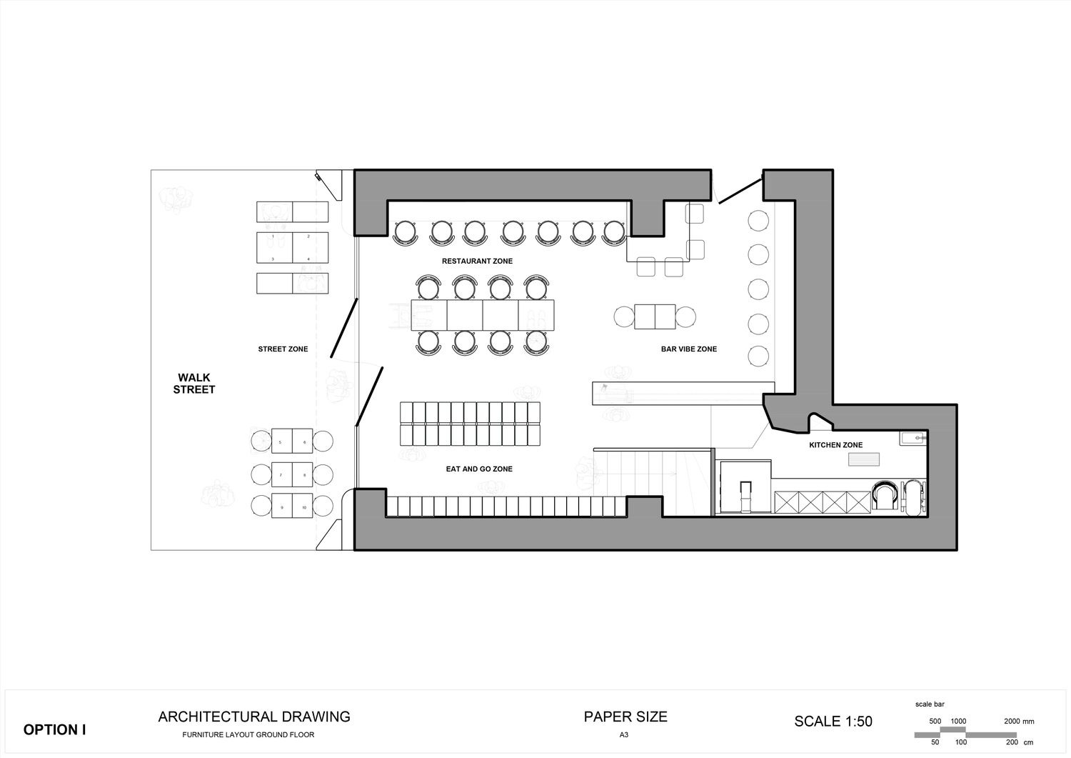
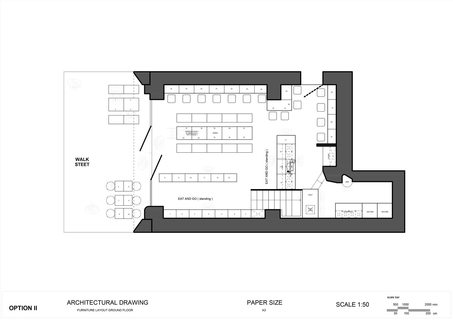
Zoning: Divided into three main areas:
1. Street Zone
2. Front-of-House Zone
3. Back-of-House (Kitchen) Zone
- Street Zone: 10 covers
- Front-of-House Zone: Divided into four types of seating:
1. Eat-and-Go (standing eating)
2. Bar Vibe Zone (interaction with barista)
3. Dining Zone (restaurant style – for extended stays, groups eating together)
4. Semi-Private (for various group sizes: 1, 2, or 4 people) We are very careful about people flow in the restaurant.
The exterior design is simple to fit in with the neighborhood buildings.
We strongly believe that our design matches your goals and expectations.
Thanks, best regards!
-------------------------
Au client, VIBE,
Nous vous remercions pour ce projet. Nous sommes très intéressés par les objectifs et la vision de votre projet. Nous avons préparé deux options pour la conception du plan d’aménagement.
Zonage : Divisée en trois zones principales :
Zone rue
Zone front-of-house (salle)
Zone back-of-house (cuisine)
Zone rue : 10 couverts
Zone front-of-house : Divisée en quatre types d’assises :
Eat-and-Go (dégustation debout)
Zone bar VIBE (interaction avec le barista)
Zone restauration (style restaurant — pour séjour prolongé, groupes mangeant ensemble)
Zone semi-privative (pour différentes tailles de groupes : 1, 2 ou 4 personnes)
Nous portons une attention particulière à la circulation des personnes dans le restaurant.
L’architecture extérieure est simple afin de s’intégrer harmonieusement aux bâtiments du quartier.
Nous sommes convaincus que notre conception correspond à vos objectifs et à vos attentes.
Merci, cordiales salutations !