🔥 CYBER MONDAY 24H: -60% su tutti i prezzi del sito! Solo fino a mezzanotte. Usa il codice CYBERMONDAY25 👉🏼
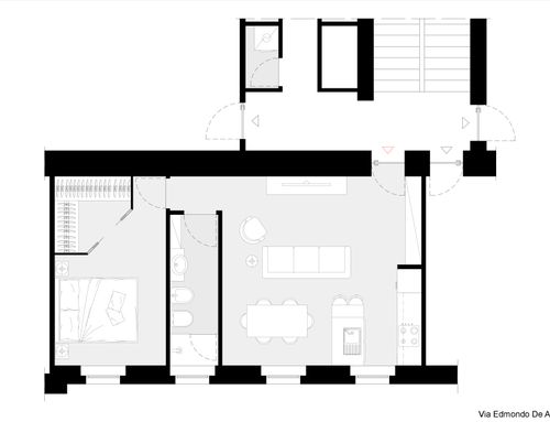
home / concorsi / via edmondo de amicis
img

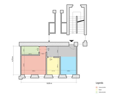
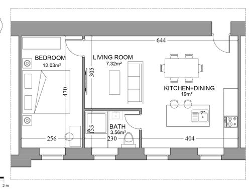
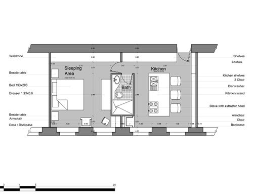
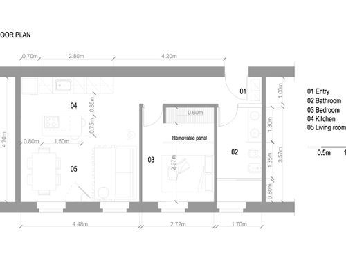
via edmondo de amicis

Trieste, UTI Giuliana, Italy

Residenziale - Appartamento

  • 1° Posto € 144
  • 2° Posto € 48
  • 3° Posto € 24
  • 4° Posto € 12
  • 5° Posto € 12