
81028 Santa Maria A Vico, Province of Caserta, Italy
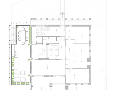
Residenziale - Zona Giorno/Notte
Descrizione
ENG:
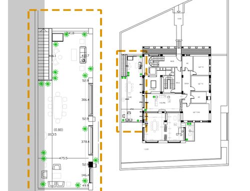
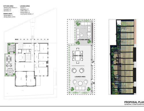
Terrace: it will be transformed into a veranda with glass, a warm and comfortable environment. The idea is to create a winter garden, a warm and comfortable environment and to furnish it with sofas and wicker seats, an area with a dining table for around 8/10 people, an area with an electric pizza oven for a convivial environment. Currently the floor is made of concrete, like the interior. We also evaluate the possibility of having an external teak floor.
Among the proposals we would like some Vietri ceramic furniture (for example, the table)
Consider a nook with an electric pizza oven.
ESP:
Terraza: se transformará en una terraza acristalada, un ambiente cálido y confortable. La idea es crear un jardín de invierno, un ambiente cálido y confortable, y equiparlo con sofás y asientos de mimbre, una zona con una mesa de comedor para unas 8/10 personas, una zona con un horno de pizza eléctrico para crear un ambiente agradable. Actualmente el suelo es de hormigón, al igual que el interior. También evaluamos la posibilidad de tener un suelo de teca exterior.
Entre las propuestas nos gustaría algún mueble cerámico de Vietri (por ejemplo, la mesa)
Considere un rincón con un horno de pizza eléctrico.
ITA:
Terrazzo: verrà trasformato in una veranda con vetri, un ambiente caldo e confortevole. L’idea è di creare un giardino d’inverno, un ambiente caldo e confortevole e di arredarlo con divani e sedute di vimini, una zona con tavolo pranzo per circa 8/10 persone, zona con forno elettrico per pizze per un ambiente conviviale. Attualmente il pavimento è in cemento, come gli interni. Valutiamo anche la possibilità di avere un pavimento esterno in teak.
Tra le proposte ci piacerebbe qualche arredo in ceramica di Vietri (ad esempio, il tavolo)
Considerare un angolo con forno della pizza elettrico.