
Rome, Metropolitan City of Rome, Italy
Residenziale - Appartamento
Descrizione
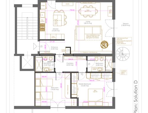
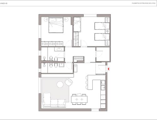
la nostra esigenza รจ di realizzare un secondo bagno , possibilmente con finestra, accanto a quello esistente. Unico ambiente per la zona giorno con un'isola per separare gli ambienti preferibilmente senza dividerli. Lavatrice ed asciugatrice all'esterno, accanto alla cucina. Ci piacerebbe un caminetto nella zona living. Amiamo lo stile moderno..illuminazione led e faretti
Our need is to create a second bathroom, possibly with a window, next to the existing one. Single room for the living area with an island to separate the rooms preferably without dividing them. Washing machine and dryer outside, next to the kitchen. We would like a fireplace in the living area. We love modern style, led lighting and spotlights.
Quisiรฉramos crear un segundo baรฑo, posiblemente con ventana, al lado del existente. Habitaciรณn individual destinada al salรณn con isla para separar las estancias preferiblemente sin dividirlas. Lavadora y secadora en el exterior, junto a la cocina. Quisiรฉramos tambiรฉn una chimenea en la sala de estar. Nos encanta el estilo moderno, iluminaciรณn led y focos.