
72017 Ostuni, BR, Italy
Residenziale - Appartamento
Descrizione
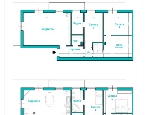
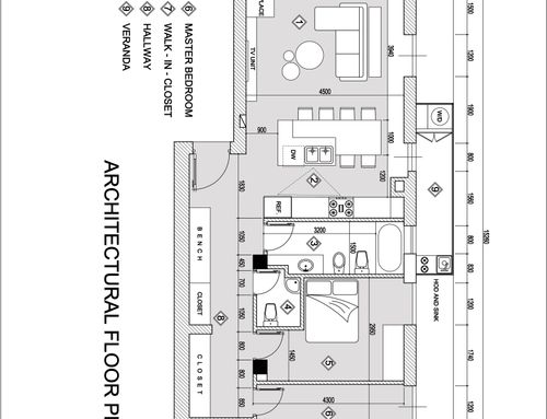
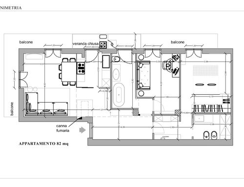
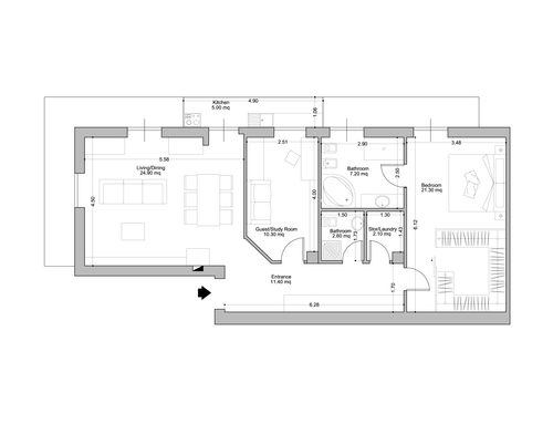
Ristrutturo completamente quest' appartamento per viverci al momento da solo. Mi piacerebbe che assumesse un aspetto piu luminoso e funzionale. Preferisco le linee pulite e pochi mobili. Vorrei avere una comoda cabina armadio e sfruttare la veranda (balcone coperto) magari con piano cottura e lavello.
Vorrei anche un caminetto; le canne fumarie sono in cucina e nel soggiorno.Le colonne degli scarichi fognari sono una accanto al wc e l'altra nel ripostiglio. Per il pavimento avevo pensato ad un prefinito chiaro, ma non metto limiti all' immaginazione.
Inoltre la finestra nel bagno può essere aperta come porta e quella in cucina chiusa come finestra o viceversa.
ENG
I will completely renovate this apartment to live there alone. I would like it to look brighter and more functional. I prefer clean lines and few furniture. I would like to have a comfortable walk-in closet and take advantage of the veranda (covered balcony) perhaps with a hob and sink. I would also like a fireplace; the chimneys are in the kitchen and in the living room. The columns of the sewers are one next to the toilet and the other in the closet. For the floor I had thought of a clear prefinished, but I put no limits to the imagination.
Furthermore the window in the bathroom can be opened as a door and the one in the kitchen closed as a window or vice versa.