
Milano, MI, Italia
Residenziale - Appartamento
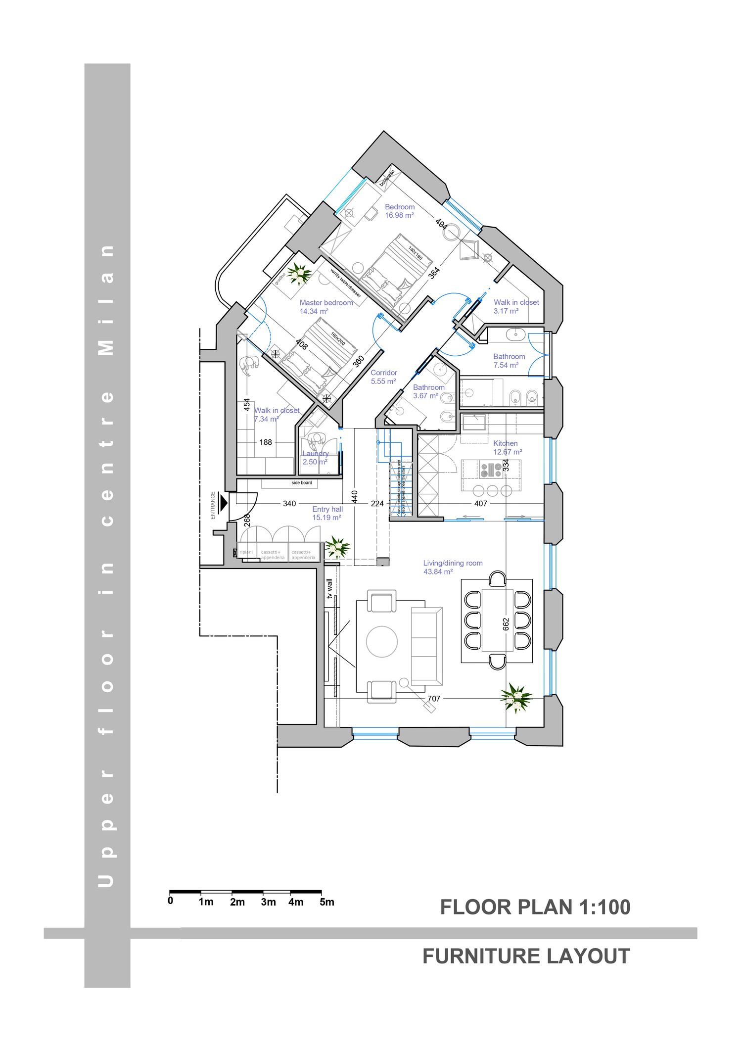
Dear client,
The goal of this project was to create functional and aesthetically pleasing furniture layout for your apartment.
Following style references that you proposed, this solution offers a contemporary design which emphasizes all the advantages of this spacious apartment.
I wish you good luck with your project and best regards!