
Milano, MI, Italia
Residenziale - Appartamento
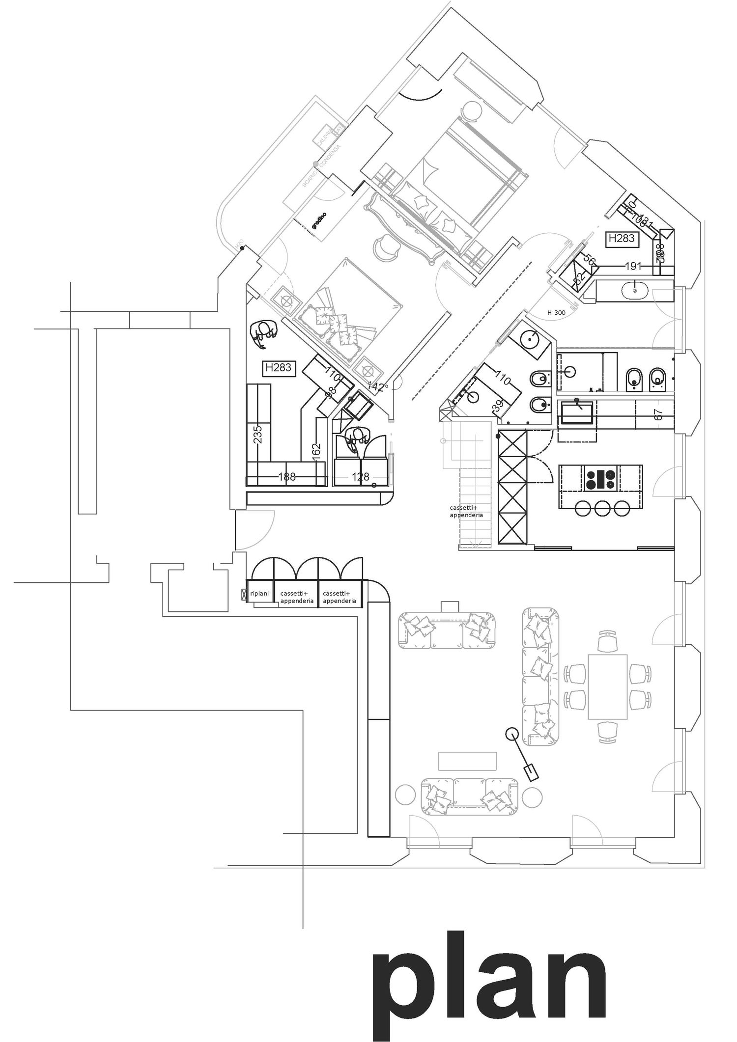
The interior redesign has been developed with minimal intervention to the existing plan, walls and structure. All walls, openings and spatial layout were kept unchanged. Only furniture, lighting, colour palette and décor were updated and rearranged to enhance the spatial quality without any structural modification.