
Milano, MI, Italia
Residenziale - Appartamento
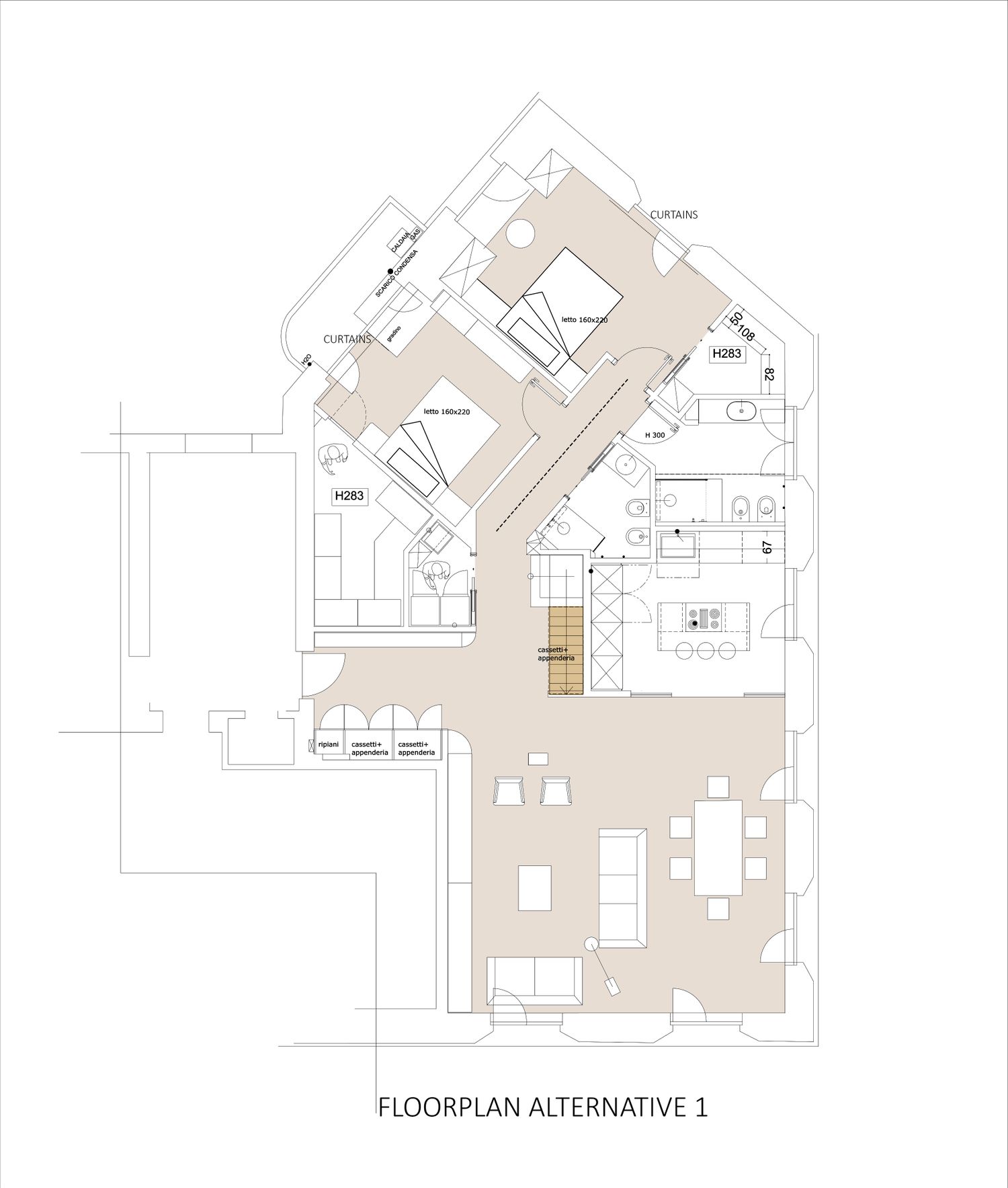
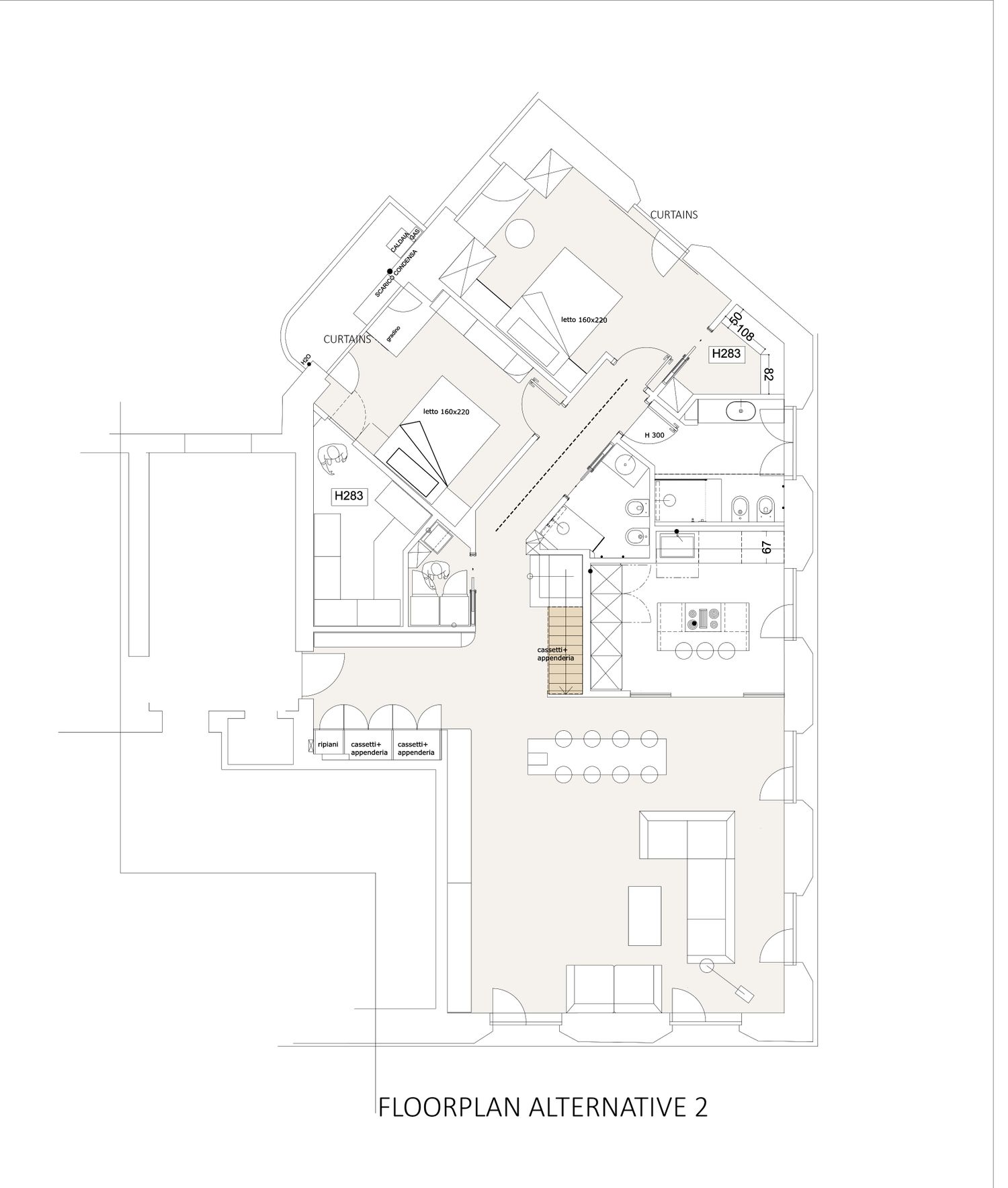
Dear client, the interior design presented to you is aligned with all your needs and color palettes are white, off-white, beige and soft tone woods. your home was beautiful as it was and hope it matches your taste to make it more beautiful with this design.