
Milano, MI, Italia
Residenziale - Appartamento
Descrizione
ENG:
Seeking for a project of the interiors including furniture, wall decorations etc of i) entrance, ii) dining room (no kitchen) and iii) two bedrooms.
Apartment just renovated, brand new w high quality materials, so walls should not change but wall sockets can eventually be moved if needed.
Like rectangular boiserie, warm colours (beige, warm white).
Walls are white RAL 9010 (kitchen in ivory white).
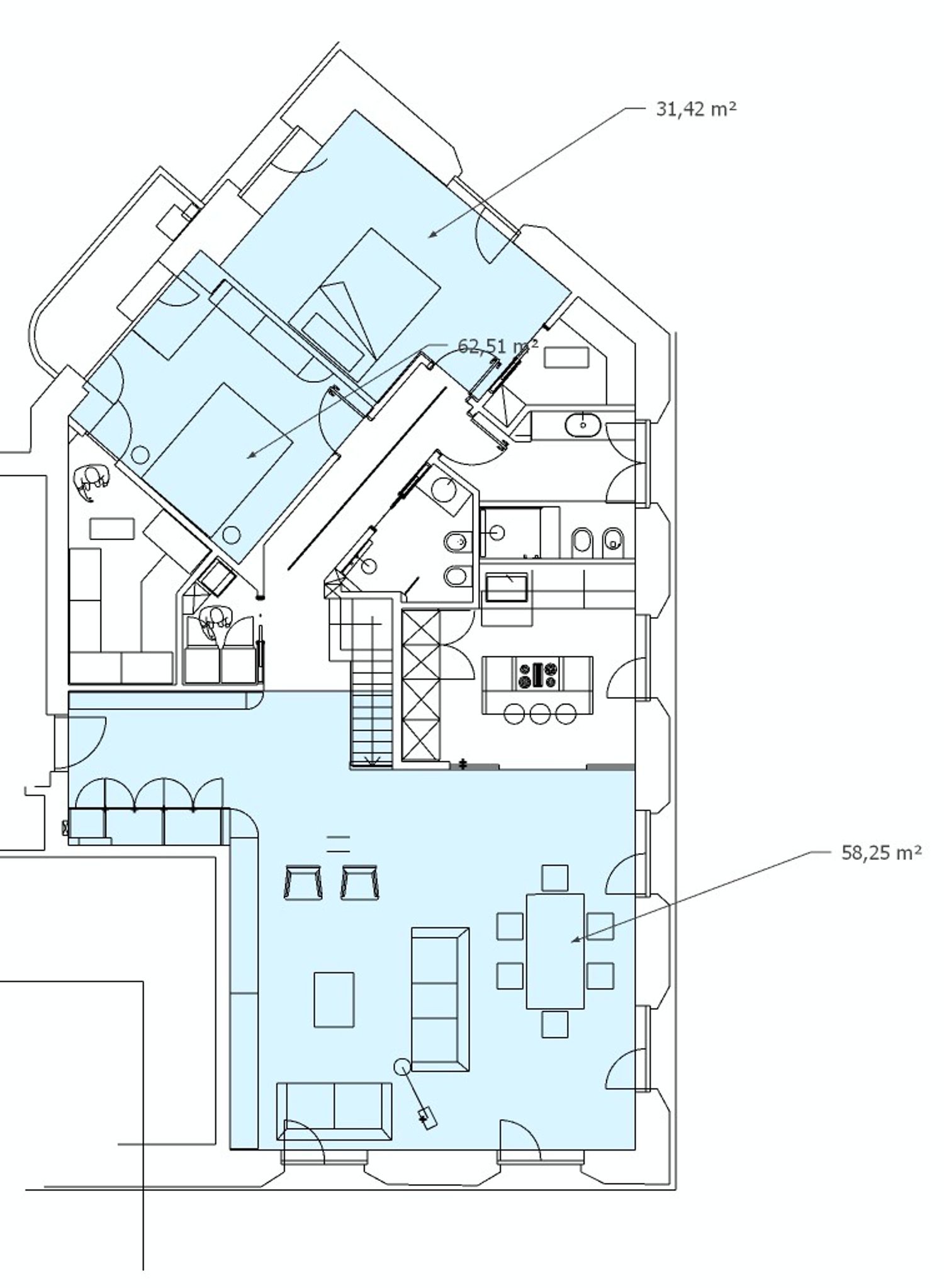
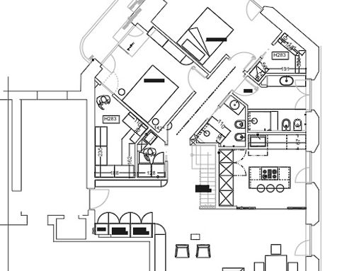
Pls ignore reported furniture in autocad and photo plan (just an initial idea).
Dininig room existing furniture can be replaced (keen to keep Castiglioni Arco lamp).
Bed in angular room ideally to be kept (brand new 140x190 white bed) as well as big mirror at entrance of apartment.
Keen to find a nice solution for space under the stairs that you see frontally when entering the apartment.
There is an idea to separate kitchen from dining room via glass sliding doors (rail already embedded in ceiling)
SPA:
Se busca proyecto de interiores, incluyendo muebles, decoración de paredes, etc., para i) la entrada, ii) el comedor (sin cocina) y iii) dos dormitorios.
Apartamento recién reformado, a estrenar, con materiales de alta calidad. Las paredes no deberían cambiar, pero los enchufes se pueden mover si es necesario.
Me gustan boiserie rectangular, y colores cálidos (beige, blanco cálido).
Las paredes son de color blanco RAL 9010 (la cocina es blanco marfil).
Por favor, ignoren los muebles indicados en AutoCAD y el plano fotográfico (solo una idea inicial).
Los muebles existentes del comedor se pueden sustituir (me gustaría conservar la lámpara Castiglioni Arco).
Idealmente, se conserva la cama en la habitación angular (cama blanca nueva de 140x190), así como un gran espejo en la entrada del apartamento.
Me gustaría encontrar una buena solución para el espacio bajo la escalera, que se ve de frente al entrar al apartamento.
Se propone separar la cocina del comedor mediante puertas correderas de cristal (la guía ya está empotrada en el techo).
ITA:
Cerco un progetto di interni, inclusi mobili, decorazioni murali, ecc. per i) ingresso, ii) sala da pranzo (senza cucina) e iii) due camere da letto.
Appartamento appena ristrutturato, nuovo di zecca con materiali di alta qualità, quindi le pareti non dovrebbero essere modificate, ma le prese a muro possono essere spostate se necessario.
Mi piacciono le boiserie rettangolari ed i colori caldi (beige, bianco caldo).
Le pareti sono bianche RAL 9010 (la cucina è in bianco avorio).
Si prega di ignorare i mobili segnalati in AutoCAD e la planimetria fotografica (solo un'idea iniziale).
I mobili esistenti della sala da pranzo possono essere sostituiti (vorrei mantenere la lampada ad arco Castiglioni).
Il letto nella stanza angolare è idealmente da mantenere (letto bianco nuovo di zecca 140x190) e un grande specchio all'ingresso dell'appartamento.
Vorrei trovare una soluzione gradevole per lo spazio sotto le scale, visibile frontalmente entrando nell'appartamento.
C'è un'idea di separare la cucina dalla sala da pranzo tramite porte scorrevoli in vetro (il binario è già incassato nel soffitto).