
Caserta, Province of Caserta, Italy
business - Co-Working
Descrizione
Il gruppo di aziende che dovrebbe occupare questi nuovi uffici si occupa di energia sostenibile, Gas Naturale per Auto, di GNL, e di Bio Metano che rappresentano le fonti energetiche per la trazione più sostenibili oggi disponibili.
Gli uffici che vorremmo dovrebbero essere uno spazio che trasmetta l'energia della nostra azienda, l'attenzione all'ambiente ed alla società civile che abbiamo, e la giovane composizione dei loro fondatori.
Immagino degli spazi conviviali giovanili ed eleganti.
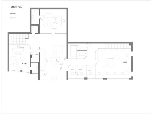
Quello di cui abbiamo bisogno sono:
1) Due uffici principali per gli amministratori;
2) Una sala riunioni che possa ospitare in modo confortevole circa 16 persone.
3) Una sala conviviale ricreativa
4) Una sala lavoro con 6 postazioni (oppure due uffici da 3 o 4 postazioni l'una)
5) Un ingresso con reception
6) Due/tre uffici più piccoli a singola postazione di lavoro.
7) un paio di piccoli ambienti che fungano da ripostiglio e da sala server/quadri elettrici.
8) Servizi igienici riservati ai dipendenti e servizi igienici riservati agli ospiti (sala riunioni)
Immagino che i punti 1, 2 e 3, ossia gli uffici degli amministratori (almeno uno) e la sala riunioni debbano essere vicini, e che debbano avere dei servizi igienici riservati a questi tre ambienti.
Immagino anche che l'area conviviale debba essere un punto di incontro e relax ma dove si possono fare all'occorrenza piccole riunioni di lavoro informali.
Coordinate di Google earth per visualizzare l'immobile:
Latitudine: 41° 4'37.63"N
Longitudine: 14°21'12.82"E
Google Maps: (41.0770753,14.3535703) - Address: Caserta, via pietro mascagni
---------------------------------------------------------------------------------------------------------------
The group of companies that will occupy these new offices is concerned with sustainable energy, Compress Natural Gas Vehicles, LNG and BioMethane, that representing the most sustainable energy sources available today.
The offices we would like, should be a space that transmits the energy of our company, attention to the environment and civil society that we have, and the young composition of their founders.
I imagine young and stylish convivial spaces.
What we need are:
1) Two main offices for the founders;
2) A meeting room that can accommodate comfortably about 16 people.
3) A recreational convivial room
4) A workroom with 6 workstations (or two offices with 3 or 4 workstations)
5) A reception.
6) Two / three smaller single-office workstation.
7) a couple of very small rooms for storage room and server room / electrical cabinets.
8) baths for employees and private bathrooms for guests (meeting room)
I guess that points 1, 2 and 3, that is, the board of directors (at least one) and the meeting room should be close, and that they should have toilet facilities reserved for these three environments.
I also imagine that the convivial area should be a meeting and relaxation point, but also the place where small informal meetings can be arranged.
Google earth coordinates to view the property:
Latitude: 41 ° 4'37.63 "N
Longitude: 14 ° 21'12.82 "E
Google Maps: (41.0770753,14.3535703) - Address: Caserta, via pietro mascagni