
Rome, Metropolitan City of Rome, Italy
Residenziale - Appartamento
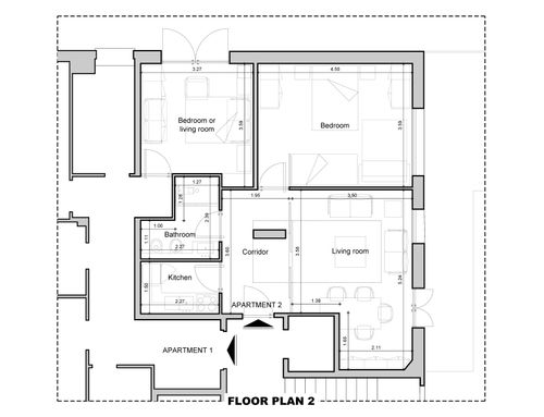
Descrizione
ENG VERS:
To our newly renovated house we would like to annex the adjacent apartment by acquiring a large room and renovating the remaining size creating a small apartment to rent for short periods.
The idea is to break down the wall that separates the two apartments and create an extra room in the apartment where we live, which can become a bedroom or preferably a new living room by replacing the current living room which, smaller, would become a second bedroom.
What remains of the apartment that we will purchase should constitute a small apartment to rent possibly with 3 beds (one double plus one single also with sofa bed or similar) with a kitchenette.
We would not want to upset the apartment where we live too much because it has just been renovated. The library that is currently in the corridor will have to find a place that enhances it in the new configuration.
ITA VERS:
Alla nostra casa appena ristrutturata vorremmo annettere l'appartamento adiacente acquisendo una grande stanza e ristrutturando la restante metratura creando un piccolo appartamento da affittare per brevi periodi.
L'idea è di abbattere la parete che separa i due appartamenti e creare una stanza in più nell'appartamento dove viviamo, che può diventare una camera da letto o preferibilmente un nuovo salone sostituendo l'attuale salone che, più piccolo, diventerebbe una seconda camera da letto.
Ciò che resta dell'appartamento che acquistieremo dovrebbe costituire un piccolo appartamento da affittare possibilmente con 3 posti letto (un matrimoniale più un singolo anche con divano letto o simile) con un angolo cottura.
Non vorremmo stravolgere troppo l'appartamento dove viviamo perchè che è stato appena ristrutturato. La libreria che in questo momento è nel corridoio dovrà trovare un posto che la valorizzi nella nuova configurazione.
SPA:
A nuestra casa recientemente renovada nos gustaría anexar el apartamento adyacente adquiriendo una habitación grande y renovando el tamaño restante creando un pequeño apartamento para alquilar por períodos cortos.
La idea es derribar la pared que separa los dos apartamentos y crear una habitación adicional en el apartamento donde vivimos, que puede convertirse en un dormitorio o preferiblemente una nueva sala de estar reemplazando la sala de estar actual que, más pequeña, se convertiría en un segundo dormitorio.
Lo que queda del apartamento que compraremos debería constituir un pequeño apartamento para alquilar posiblemente con 3 camas (una doble más una individual también con sofá cama o similar) con una pequeña cocina.
No querríamos alterar demasiado el apartamento donde vivimos porque acaba de ser renovado. La biblioteca que se encuentra actualmente en el corredor tendrá que encontrar un lugar que la mejore en la nueva configuración.