
Turin, Metropolitan City of Turin, Italy
Residenziale - Appartamento
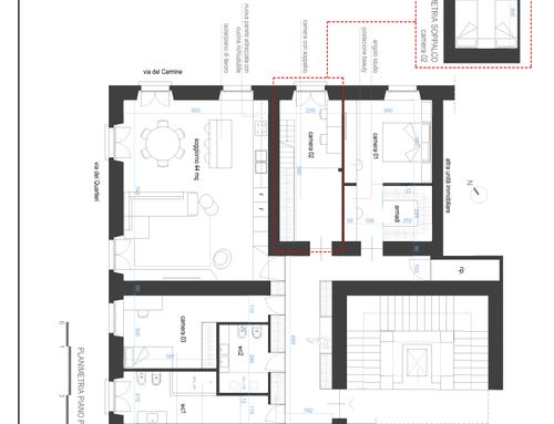
Descrizione
ITA:
Brief di Ristrutturazione
Intervento: Ristrutturazione totale con rifacimento di infissi, pavimenti, impianti, ecc. Desidero conservare solo il parquet del soggiorno e della stanza adiacente, se possibile, poiché è molto bello (allego foto, inclusa una della parte danneggiata). Probabilmente manterrei anche i vetri cattedrale.
Spazi da ricavare:
• Suite padronale: Suggerire di realizzarla nell’area alla destra dell’ingresso, con cabina armadio, area studio/beauty e bagno padronale. Il bagno includerà una grande vasca idromassaggio in muratura (la farei di qualcosa come 2m*1.5m). Suggerirei che l'accesso alla suite avvenga tramite una porta a scomparsa/filo muro accanto alla porta d'ingresso. La camera avrà anche un accesso esterno dal ballatoio (vedi foto allegate).
• Soggiorno e cucinotto: Proporrei di ampliare il soggiorno e ricavare un cucinotto nell'attuale "locale di sgombero", dotato di isola o penisola. Mi piacerebbe includere una soluzione elegante per separare il cucinotto dal soggiorno all'occorrenza (allego un paio di esempi di soluzioni interessanti viste in giro. Apprezzo che il tavolo sia “nascondibile” nel bancone in modo da salvare spazio e mi piacerebbe fosse anche estendibile – se possibile).
• Altre camere e bagno: Vorrei due ulteriori camere da letto (magari in corrispondenza di quelle che ci sono già, solo un pò più ampie) di cui una per una bambina che frequenta le elementari e una per gli ospiti e un bagno aggiuntivo, che suggerisco di posizionare nel corridoio cieco (così da riuscire ad ampliare appunto le camere)
Altri dettagli:
• Ingresso: Andrebbe riorganizzato per renderlo più funzionale, con spazio dedicato a scarpe e cappotti.
• Se le altezze lo permettono (2,97 m), vorrei inserire uno spazio di storage
• Stile: Amo lo stile classico contemporaneo, le carte da parati eleganti e le boiserie. Per i pavimenti, occorre trovare una soluzione che si abbini bene a quelli recuperati (se possibile). Vorrei sostituire il marmo di ingresso/corridoio con qualcosa di più elegante.
• Impianti: L'appartamento ha il riscaldamento a pavimento e installeremmo un impianto di climatizzazione canalizzato + purificazione aria.
***
EN
Complete renovation including replacement of windows, floors, systems, etc. I would like to preserve only the parquet flooring in the living room and the adjacent room, if possible, as it is very beautiful (photos attached, including one of the damaged area). I would probably also keep the cathedral glass.
Spaces to be created:
Master Suite: I suggest creating the master suite in the area to the right of the entrance, with a walk-in closet, a beauty/working area and master bathroom. The bathroom will include a large built-in whirlpool tub (I’m thinking something around 2m x 1.5m). I would suggest that the access to the suite be through a hidden/flush door next to the entrance. The bedroom will also have external access from the balcony (see attached photos).
Living Room and Kitchenette: I propose expanding the living room and creating a kitchenette in the current "storage room," equipped with an island or peninsula. I would like to include an elegant solution to separate the kitchenette from the living room when needed (I’ve attached a few examples of interesting solutions I’ve seen around. I appreciate that the table can be “hidden” within the counter to save space, and I would like it to be extendable if possible).
Additional Bedrooms and Bathroom: I would like to create two additional bedrooms (perhaps corresponding to the existing ones, just slightly larger) and an additional bathroom, which I suggest placing in the blind corridor (this would allow the rooms to be expandedOn. e of these bedrooms is for a 8-year girl.
Additional Details:
Entrance: The entrance should be reorganized to make it more functional, with dedicated space for shoes and coats.
If the ceiling heights allow (2.97 m), I would like to include storage space, possibly by lowering the ceiling in the corridor and utilizing the space above.
Style: I love classic contemporary style, elegant wallpapers, and wainscoting. For the new flooring, we should find something that matches well with the existing floors (if they can be salvaged). I would like to replace the marble in the entrance/corridor with something more elegant.
Systems: The apartment has underfloor heating, and we would install a ducted air conditioning system + air purification.
***
SP
Renovación total con reemplazo de ventanas, suelos, instalaciones, etc. Me gustaría conservar solo el parquet del salón y de la habitación adyacente, si es posible, ya que es muy bonito (adjunto fotos, incluida una de la parte dañada). Probablemente también mantendría los cristales catedral.
Espacios a crear:
Suite principal: Sugiero crear la suite principal en el área a la derecha de la entrada, con vestidor y baño en suite. El baño incluirá una gran bañera de hidromasaje empotrada (pienso en algo de aproximadamente 2m x 1.5m). Sugeriría que el acceso a la suite sea a través de una puerta oculta/ras con la pared junto a la entrada. El dormitorio también tendrá acceso exterior desde el balcón (ver fotos adjuntas).
Salón y kitchenette: Propongo ampliar el salón y crear una kitchenette en la actual "sala de almacenamiento", equipada con una isla o península. Me gustaría incluir una solución elegante para separar la kitchenette del salón cuando sea necesario (he adjuntado algunos ejemplos de soluciones interesantes que he visto. Me gusta que la mesa pueda ocultarse dentro del mostrador para ahorrar espacio y me gustaría que también fuera extensible si es posible).
Habitaciones adicionales y baño: Me gustaría crear dos habitaciones adicionales (quizás correspondiendo con las existentes, solo un poco más amplias) y un baño adicional, que sugiero colocar en el pasillo ciego (esto permitiría ampliar las habitaciones).
Detalles adicionales:
Entrada: La entrada debería reorganizarse para hacerla más funcional, con espacio dedicado para zapatos y abrigos.
Si la altura del techo lo permite (2,97 m), me gustaría incluir espacio de almacenamiento.
Estilo: Me encanta el estilo clásico contemporáneo, los papeles pintados elegantes y las boiseries. Para los suelos nuevos, deberíamos encontrar algo que combine bien con los suelos existentes (si es posible recuperarlos). Me gustaría reemplazar el mármol en la entrada/pasillo con algo más elegante.
Instalaciones: El apartamento cuenta con calefacción por suelo radiante e instalaríamos un sistema de climatización canalizado + air purification.