
Messina, Metropolitan City of Messina, Italy
Residenziale - Zona Giorno/Notte
Descrizione
ENG:
Condominium property on two levels, living area below and sleeping area on the upper floor.
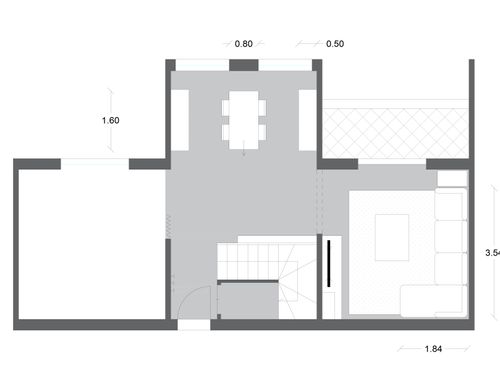
The apartment is located on the ground floor and due to its structural conformation the walls are load-bearing, with iron reinforcement literally flush with the plaster (see explanatory photo). It is very difficult to carry out work that involves traces for laying cables on the walls. The project will have to take this constraint into account.
The intent is to create a relaxation area with sofa and TV in the room with balcony and in the room adjacent to the kitchen to create an area where you can have lunch with any guests. We would prefer a non-bulky table solution, such as a console or a mini table that can be extended only when needed, in order to leave space in the entrance room when the table is not in use.
We would like to maintain the current flooring but we don't know which colors to use and with what style to furnish to best enhance the environment, to give harmony, also considering that the light flooring in question is adjacent to a pink porrino granite (kitchen) and from other side to a further granite of different shade (scale).
In this environment there are other elements to combine, such as the armored door that we do not want to replace (at most we could cover the internal part with a panel) and a wooden door, positioned just to the right of the entrance, adjacent to the stairs.
It seems to us that any color or style that goes well with one of the elements present, then clashes with everything else (see attached photos of the staircase and kitchen portion).
If maintaining the current non-homogeneous flooring is a choice that does not guarantee a good result, we willingly evaluate projects that involve covering the current flooring without dismantling, for example with a laminate or similar product (we exclude works that involve laying traditional flooring on tiles existing, as this would raise the surface by too many cm and would force us to redo the fixtures which would rub due to the new thickness of the floor).
Any new flooring would extend over the entire ground floor, so it would also be laid in the kitchen. In this case the flooring must match the kitchen furniture (as shown in the photo) and the pink porrino granite top. The kitchen backsplash tiles will be replaced with lava colored tiles.
If considered, false ceilings (even with staggered heights) should be positioned away from windows that have roller shutter boxes up to the roof. However, they can be evaluated without this constraint in the room with the balcony, having the French window with the box positioned lower.
We would like to keep the granite of the staircase (or cover it with a suitable laminate, without dismantling it) or possibly change only the railing to adapt it to the furnishings (but it should be considered that the current one is fixed to the steps with nails, so the granite is drilled and would be needed a suitable solution to cover the holes).
The arch can be modified for a linear opening. We would like to eliminate the folding door (possible sliding door with external track).
We don't like excessively eclectic furnishings, nor ethnic or classic antique styles, we don't like carved and excessively worked furniture. We don't like strong or bright colors like pink or fuchsia, but we would still like to have furniture with contrasting colours, possibly even on the walls that best enhance the environment.
Yes to paintings, shelves, carpets, clocks or mirrors, no to any type of showcase or open bookshelves.
We like the rustic style but also the modern/contemporary.
No to the chabby style and various laces, yes to the country/farmhouse.
SPA:
Propiedad en condominio en dos niveles, sala de estar debajo y área para dormir en el piso superior.
El departamento está ubicado en planta baja y por su conformación estructural los muros son portantes, con refuerzo de hierro literalmente a ras del yeso (ver foto explicativa). Es muy difícil realizar trabajos que impliquen trazas para el tendido de cables en las paredes. El proyecto deberá tener en cuenta esta limitación.
Se pretende crear una zona de relax con sofá y TV en la sala con balcón y en la sala contigua a la cocina para crear una zona donde poder almorzar con los invitados. Preferiríamos una solución de mesa que no fuera voluminosa, como una consola o una minimesa que se pueda ampliar sólo cuando sea necesario, para dejar espacio en la entrada cuando la mesa no esté en uso.
Nos gustaría mantener el pavimento actual pero no sabemos qué colores utilizar y con qué estilo amueblar para realzar mejor el ambiente, para dar armonía, considerando también que el pavimento claro en cuestión linda con un granito porrino rosa ( cocina) y del otro lado a otro granito de diferente tono (escala).
En este ambiente hay otros elementos a combinar, como la puerta blindada que no queremos sustituir (como mucho podríamos tapar la parte interna con un panel) y una puerta de madera, situada justo a la derecha de la entrada, adyacente a las escaleras.
Nos parece que cualquier color o estilo que combine bien con uno de los elementos presentes, luego choca con todo lo demás (ver fotos adjuntas de la parte de escalera y cocina).
Si mantener el pavimento actual no homogéneo es una elección que no garantiza un buen resultado, valoramos con gusto proyectos que impliquen revestir el pavimento actual sin desmontarlo, por ejemplo con un laminado o producto similar (excluimos trabajos que impliquen la colocación de pavimento tradicional sobre baldosas existentes, ya que elevaría demasiado la superficie y nos obligaría a rehacer los herrajes, lo que rozaría debido al nuevo espesor del suelo).
El nuevo suelo se extendería por toda la planta baja, por lo que también se colocaría en la cocina. En este caso el pavimento debe ir a juego con los muebles de la cocina (como se muestra en la foto) y la encimera de granito porrino rosa. Los azulejos del protector contra salpicaduras de la cocina se reemplazarán por azulejos de color lava.
Si se considera, los falsos techos (incluso con alturas escalonadas) deben colocarse lejos de las ventanas que tienen cajas de persianas hasta el techo. Sin embargo, se pueden evaluar sin esta limitación en la habitación con balcón, con la ventana francesa con la caja situada más abajo.
Nos gustaría mantener el granito de la escalera (o recubrirlo con un laminado adecuado, sin desmontarlo) o posiblemente cambiar sólo la barandilla para adaptarla al mobiliario (pero hay que tener en cuenta que la actual está fijada a los escalones). con clavos, así se perfora el granito y sería necesaria una solución adecuada para tapar los agujeros).
El arco se puede modificar para una abertura lineal. Nos gustaría eliminar la puerta plegable (posible puerta corredera con carril exterior).
No nos gustan los muebles excesivamente eclécticos, ni los estilos antiguos étnicos o clásicos, no nos gustan los muebles tallados y excesivamente trabajados. No nos gustan los colores fuertes o vivos como el rosa o el fucsia, pero aun así nos gustaría tener muebles con colores contrastantes, posiblemente incluso en las paredes, que realcen mejor el ambiente.
Sí a los cuadros, estanterías, alfombras, relojes o espejos, no a cualquier tipo de vitrina o estantería abierta.
Nos gusta el estilo rústico pero también el moderno/contemporáneo.
No al estilo chabby y encajes varios, sí al estilo campestre.
ITA:
Immobile condominiale su due livelli, zona giorno sotto e zona notte al piano superiore.
L’appartamento si trova al pian terreno e per conformazione strutturale le pareti sono portanti, con armature in ferro letteralmente a filo intonaco (vedere foto esplicativa). Difficilissimo effettuare lavori che implichino tracce per posa cavi sui muri. Il progetto dovrà tenere conto di questo vincolo.
L’intento è di realizzare una zona relax con divano e tv nella stanza con balcone ed in quella adiacente alla cucina realizzare una zona dove pranzare con eventuali ospiti. Preferiremmo una soluzione di tavolo non ingombrante, come una consolle o un mini tavolo estendibile solo al bisogno, in modo da lasciare spazio alla sala d’ingresso quando il tavolo non è in uso.
Vorremmo mantenere l’attuale pavimentazione ma non sappiamo quali colori usare e con che stile arredare per valorizzare al meglio l’ambiente, per dare armonia, anche considerando che il pavimento chiaro in questione è adiacente ad un granito rosa porrino (cucina) e dall’altro lato ad un ulteriore granito di diversa tonalità (scala).
In questo ambiente vi sono altri elementi da abbinare, come il portone blindato che non vogliamo sostituire (al massimo potremmo coprirne la parte interna con un pannello) ed una porta in legno, posizionata proprio alla destra dell’ingresso, adiacente alle scale.
Ci sembra che qualsiasi colore o stile che stia bene con uno degli elementi presenti, poi stoni con tutto il resto (vedere foto allegate della scala e porzione di cucina).
Se mantenere l’attuale pavimenti disomogenea risultasse una scelta che non garantisce un buon risultato, valutiamo volentieri progetti che prevedano la copertura senza smantellamento dell’attuale pavimentazione, ad esempio con un laminato o simile prodotto (escludiamo lavori che prevedano pose di pavimentazioni tradizionali su mattonelle esistenti, in quanto questo alzerebbe di troppi cm la superficie e ci costringerebbe a rifare gli infissi che strofinerebbero per via del nuovo spessore del pavimento).
La nuova pavimentazione eventuale si estenderebbe su tutto il pian terreno, quindi verrebbe posata anche in cucina. In questo caso la pavimentazione dovrà abbinarsi ai mobili della cucina (come da foto) ed al top in granito rosa porrino. Le mattonelle del paraschizzi della cucina saranno sostituite con piastrelle color lava.
Qualora ipotizzati, i controsoffitti (anche con altezze sfalsate) dovrebbero essere posizionati lontano dalle finestre che presentano i cassoni per avvolgibile alti fino al tetto. Si possono invece valutare senza questo vincolo nella stanza con balcone, avendo la porta finestra con cassone posizionato più in basso.
Vorremmo mantenere il granito della scala ( o coprirlo con un laminato adatto, senza smantellarla) o cambiare eventualmente solo la ringhiera per adattarla all’arredo (ma va considerato che quella attuale è fissata ai gradini con chiodini, per cui il granito è forato e servirebbe una soluzione adatta a coprire i buchi).
L’arco può essere modificato per un’apertura lineare. Vorremmo eliminare la porta a soffietto (eventuale porta scorrevole con binario esterno).
Non amiamo arredi eccessivamente eclettici, né lo stile etnico o classico antico, non ci piacciono i mobili intagliati ed eccessivamente lavorati. Non amiamo i colori forti o brillanti come il roso o il fuxia, ma ci piacerebbe avere comunque un arredo con dei colori a contrasto, eventualmente anche sulle pareti che valorizzino al meglio l'ambiente.
Si a quadri, mensole, tappeti , orologi o specchi, no a qualsiasi tipo di vetrina o librerie a vista.
Ci piace lo stile un po' rustico ma anche il moderno/contemporaneo.
No allo stile chabby e merletti vari, si al country/farmhouse.