
Ocean Isle Beach, NC, USA
main-room - bedroom
Descrizione
Ok folks…here is design challenge for the New Year!
We have a beach rental property that has 4 bedrooms and 4 baths.
While we do rent it out, personally we also go as frequently as we can. We have 5 kids, and sometimes other families and / or the kid’s friends come with us.
When that happens, the bed situation gets tight!!
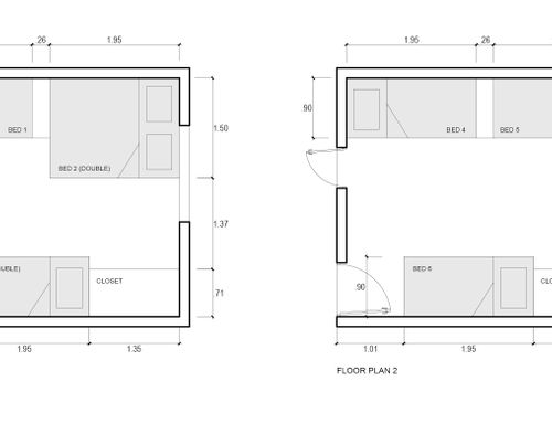
We’d like to turn one of the bedrooms (which has two full beds in it today) into a “bunk room”.
We have seen plenty of photos of cool bunk rooms that normally wouldn't be a problem for most bedrooms, but believe we have a challenging situation in this particular room with a window on one wall and the entry to the bathroom on the other.
So here’s your challenge...design a room layout and bunk bed design / layout that:
+ Gets more beds into the room!
+ Has that “built in feel”
+ Doesn’t make the movement into the bathroom difficult
+ And doesn’t make it feel like a prison dormitory.
I have attached plenty of collateral for you:
+ The existing room layout
+ Photos of the room
+ Lots of tear sheet photos
Additional thoughts...
+ Let's not get demolition happy...
+ We can't move the window, nor the bathroom door
+ But, if removing the closet opens up possibilities...we'd be up for that.