🔥 CYBER MONDAY 24H: -60% su tutti i prezzi del sito! Solo fino a mezzanotte. Usa il codice CYBERMONDAY25 👉🏼
img

Trilocale da ristrutturare

Bologna, BO, Italia

Residenziale - Appartamento

Luigi Deli

  • architect
  • Roma, Italy
Descrizione Progetto

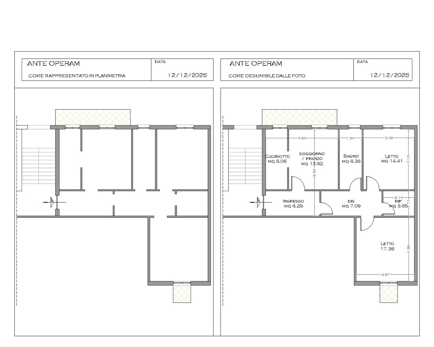
Progetto di ristrutturazione completa trilocale al 4 piano.
2 balconi, un openspace cucina/soggiorno, una camera da letto, uno studio/guest room, cabina armadio, lavanderia e bagno.

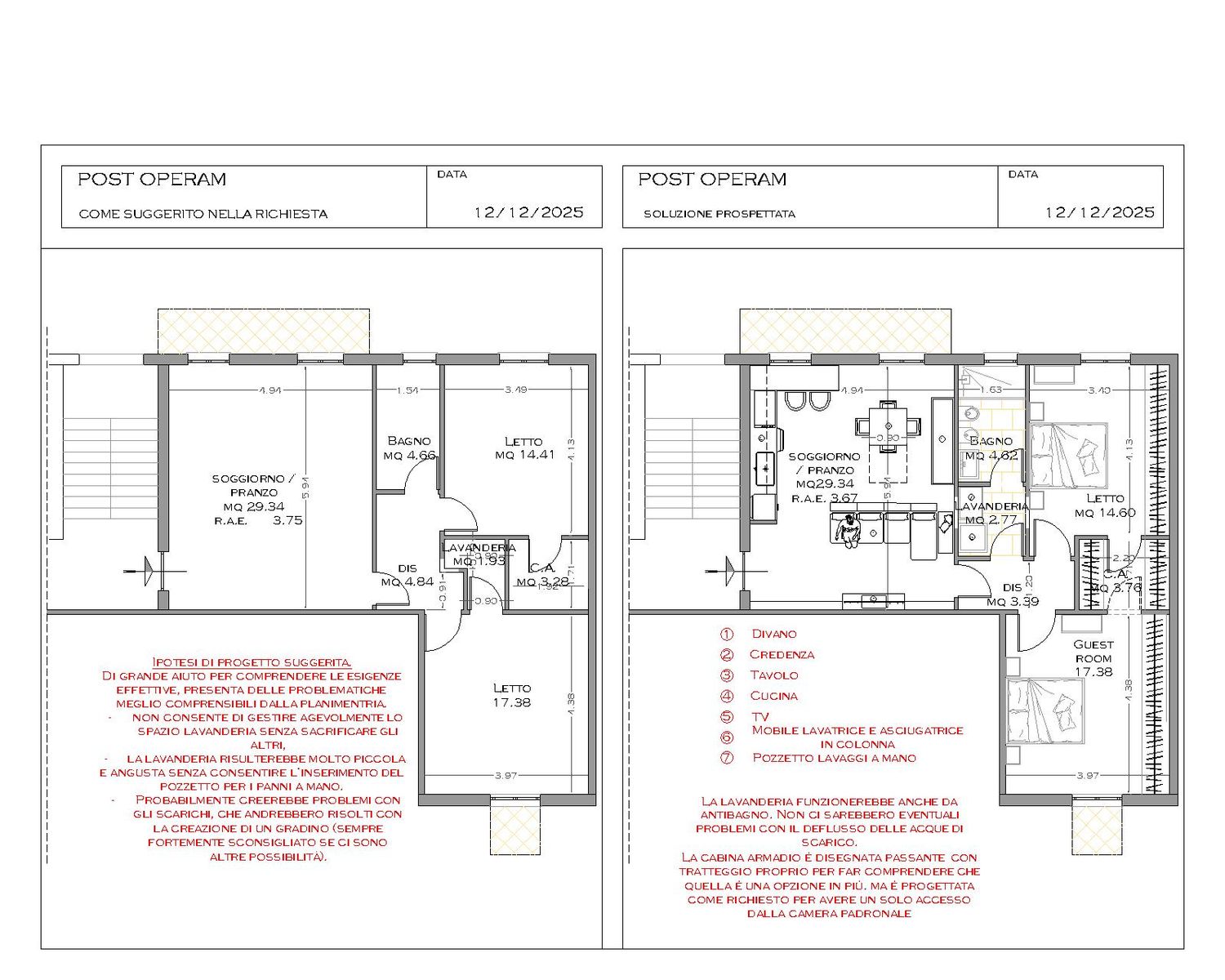
L'ipotesi progettuale suggerita:
Di grande aiuto per comprendere le esigenze effettive, presenta delle problematiche meglio comprensibili dalla planimetria.
- non consente di gestire agevolmente lo spazio lavanderia senza sacrificare gli altri,
- la lavanderia risulterebbe molto piccola e angusta senza consentire l'inserimento del pozzetto per i panni a mano.
- Probabilmente creerebbe problemi con gli scarichi, che andrebbero risolti con la creazione di un gradino (sempre fortemente sconsigliato se ci sono altre possibilità).

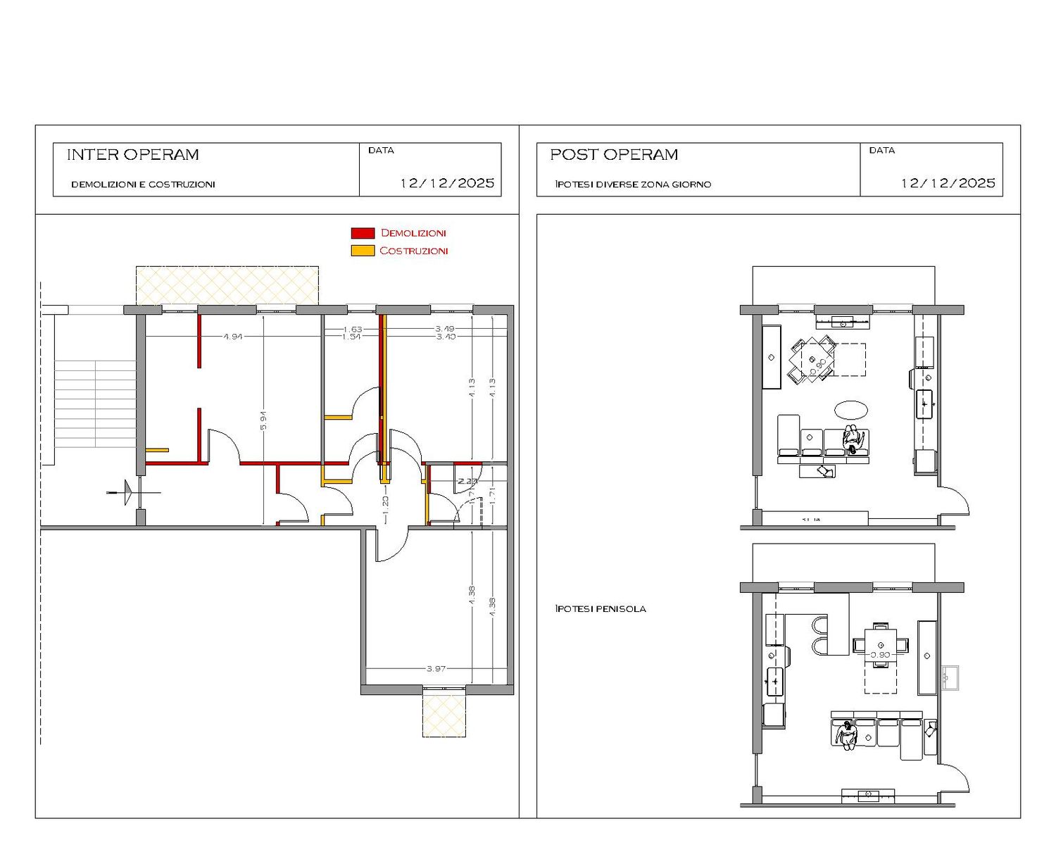
Valutate le varie possibilità, per la zona giorno sono state ipotizzate diverse distribuzioni, provando anche ad inserire la penisola (come da desiderio) ma lo spazio risulterebbe molto compresso.
La lavanderia così come progettata funzionerebbe anche da antibagno. E in quella posizione non creerebbe eventuali problemi con il deflusso delle acque di scarico.
La cabina armadio è disegnata passante con tratteggio proprio per far comprendere che quella è una opzione in più, ma è progettata come richiesto per avere un solo accesso dalla camera padronale.

Leggi di Più