
London, UK
main-room - kitchen
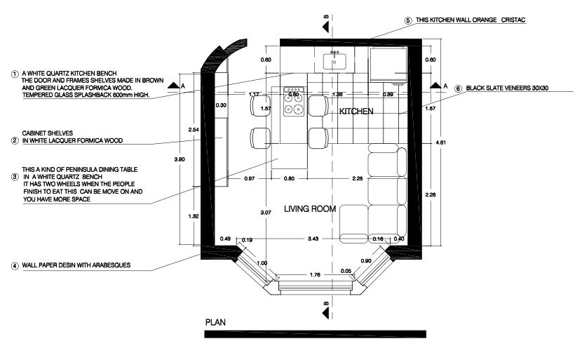
Descrizione
Hello, we bought the flat and refurbished all rooms except for the open kitchen / living room: this is the most important space of all for us as we are going to spend there 90% of our time and we really want a place we will love to stay in by ourselves but also with couple of friend when they come over for dinner.
The flat is a ground floor flat in a period conversion flat, it's a quite road with not too many people passing there, nonetheless the living room window is on the street: we love the big bow window in the room and we'd like to find a way to keep the room bright without loosing all our privacy.
I love cooking so we have lot of stuff (pizza oven, microwave, mixer...) and I also love making my own bread and pizza so that'd be great if we could fit some working space for me. We also need to fit in the kitchen a fridge and a freezer: happy with either two separate appliances or a single tall one (a small fridge with built-in freezer is not an option for an Italian couple like us :) ).
Other must for the room is the sofa: we want a comfy sofa with a chaise longue. It doesn't need to be a "design" piece but it has to be comfortable and if it could also be a sofa-bed it would be even better!
We've attached also an example of floor lamp and kitchen lights we like.
If there are ways to use all the room's height it'd be grand!
For us that space is the centre of our life: we'd need a tv, dining table, sofa and ideally keep the radiator as free as possible as it looks quite small for the room (but we don't want to move it).
We like modern furniture but we are not too much into eclectic design :)
We are happy to re-paint the room, buy everything from scratch (so also replace the kitchen) but we would not make build works.
Re the budget we are happy to spend as much as needed but without spending a fortune just to get a very luxurious / design piece.
Hope this provides enough information but please let us know if anything else is needed.
Thank you very much!
G and Silvia