🔥 CYBER MONDAY 24H: -60% su tutti i prezzi del sito! Solo fino a mezzanotte. Usa il codice CYBERMONDAY25 👉🏼
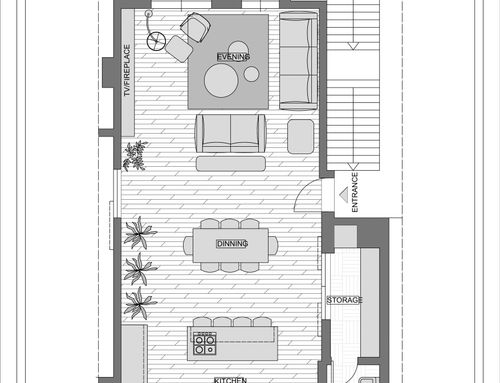
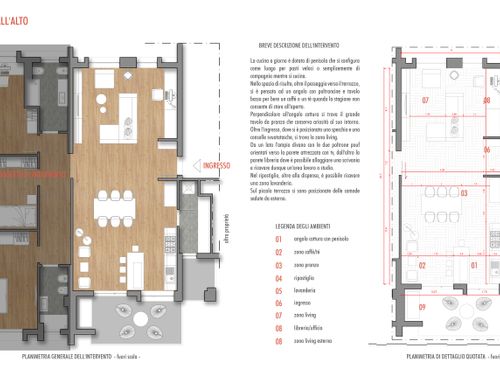
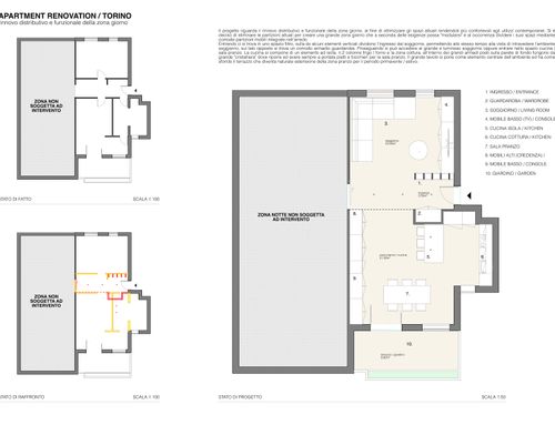
home / concorsi / torino dall'alto
img

torino dall'alto

Turin, Metropolitan City of Turin, Italy

Residenziale - Zona Giorno/Notte

  • 1° Posto € 156
  • 2° Posto € 52
  • 3° Posto € 26
  • 4° Posto € 13
  • 5° Posto € 13