
95030 Tremestieri Etneo, Province of Catania, Italy
Residenziale - Altro
Descrizione
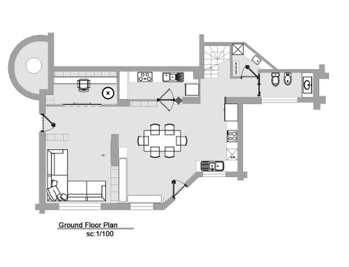
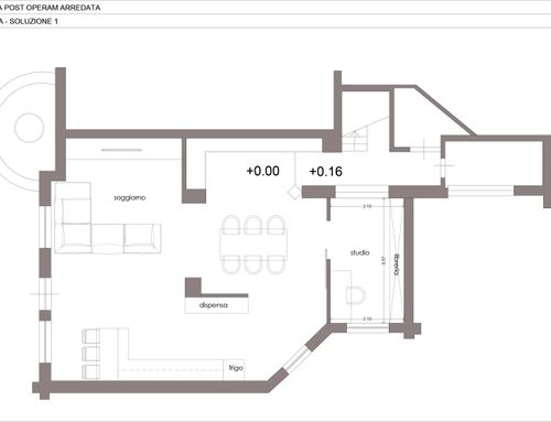
Amo uno stile moderno-contemporaneo. Ho necessità di rivedere la suddivisione degli spazi di casa mia che è su 2 livelli (nonostante 4 anni fa ho già fatto una ristrutturazione al piano inferiore), ho necessità di ricavare spazio e magari una stanza in più; la casa è di 100 mq
calpestabili. Mi servirebbe vedere “come potrebbe essere” l’ambiente che vivo in maniera realistica. In sintesi mi servirebbero: ricavare una cabina armadio; aggiungere un cucinino di servizio magari adiacente la cucina dato che vorrei un open space; allargare il bagno del piano superiore; rivedere l'ingresso dato che dove è la porta attualmente non va bene in quanto mi servirebbe uno spazio dove mettere un riponi-scarpe o un piccolo armadio e non vorrei che la porta fosse addossata al divano. Sempre vicino l'ingresso c'è quello che rimane di un vecchio elemento in muratura, un "cubo" di cemento che vorrei eliminare.
I love a modern-contemporary style. I need to review the subdivision of the spaces of my house which is on 2 levels (although 4 years ago I already made a renovation on the lower floor). I need to get space and maybe an extra room; the house is 100 sq m walkable. I would need to see "how it could be" the environment I live in a realistic way. In summary I would need: to obtain a walk-in closet; add a service kitchenette perhaps adjacent to the kitchen as I would like an open space; enlarge the bathroom on the upper floor; review the entrance, I would like a space to put a shoe rack or a small wardrobe and I would not want the door to be against the sofa. Always near the entrance there is what remains of an old element in masonry, a concrete "cube" that I would like to eliminate.
Amo el estilo moderno-contemporáneo. Necesito revisar la subdivisión de los espacios de mi casa que está en 2 niveles (aunque hace 4 años ya hice una renovación en la planta baja). Necesito conseguir espacio y tal vez una habitación extra; la casa es de 100 metros cuadrados transitables. Necesitaría ver "cómo podría ser" el entorno en el que vivo de una manera realista. En resumen, necesitaría: obtener un vestidor; agregue una cocineta de servicio quizás adyacente a la cocina, ya que me gustaría un espacio abierto; agrandar el baño en el piso superior; revisar la entrada, quisiera un espacio para poner un zapatero o un pequeño armario y no quisiera que la puerta estuviera contra el sofá. También cerca de la entrada hay lo que queda de un antiguo elegido en mampostería, un "cubo" de hormigón que me gustaría eliminar.