
Milan, Metropolitan City of Milan, Italy
Residenziale - Appartamento
Descrizione
(ENGLISH SECTION AND SPANISH SECTION BELOW ITALIAN)
------------------------------------------------------------------------------------------------------------------------------------------------------
SEZIONE ITALIANO - DA COMPLETARE (MANCANO INDICAZIONI SU REGOLAMENTO LOCALE EDILIZIO)
DWG NEI FILES - non sono sicuro che il camino sia nella posizione giusta
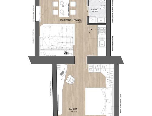
Appartamento
Location: Milano
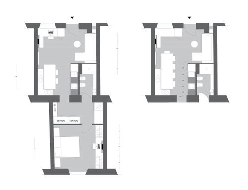
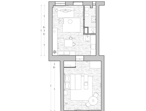
Appartamento: bilocale in zona Porta Romana, a due passi dalla metropolitana, in un condominio di inizio secolo ("di ringhiera", tipico milanese).
Scopo dell’immobile:
- Affitto breve (tipo AirBnB) o affitto per periodi 1-2 anni
Target utilizzatori
- normalmente giovani professionisti (30 anni) con buon budget, o giovani coppie con interesse a vita metropolitana
Stile
Lo stile cercato e' moderno, durevole nel tempo, che possa essere di gradimento ad un'ampia tipologie di persone. Nelle foto del progetto vi sono esempi.
Illuminazione
Sono convinto che un buon disegno dell'illuminazione (led, lampade etc) puo' migliorare notevolmente l'estetica di un appartamento senza aumentare troppo il budget.
Budget
L'appartamento è ad uso investimento, quindi il budget e' economico. Per gli arredi ad esempio e' consigliato indicare prodotti commerciali reperibili da catene economiche (IKEA; Maison du Monde etc). E' auspicabile ricorrere il meno possibile a soluzioni custom se non economiche da realizzare.
Regolamento Edilizio / Igiene locale
Altezza minima 2,7 m tranne per locali accessori 2,4 m e di servizio 2,1
dimensione minima stanza doppia 12 mq
dimensione minima stanza singola 9 m2
dimensione minima soggiorno 14 mq
dimensione minima soggiorno con spazio cottura 17mq
dimensione minima cucina 5 m2
lato minimo bagno 1,2 m
rapporto dimensione finestra e superficie calpestabile 1/10
bagno puo' anche essere cieco con ventilazione forzata (per appartamenti fino a 70 mq)
se bagno con finestra, finestra di almeno 0,5 m2
il bagno, se non in stanza da letto o con accesso da un corriodio, deve avere accesso con antibagno per delimitarlo da spazio salotto/cucina
Nota:
se non si cambiano i volumi/disposizione attuale, rimane valida la configurazione di oggi, anche se non rispetta il regolamento edilizio. Se si cambia qualcosa, devono essere rispettate le regole nuove del regolamento edilizio.
Elementi strutturali
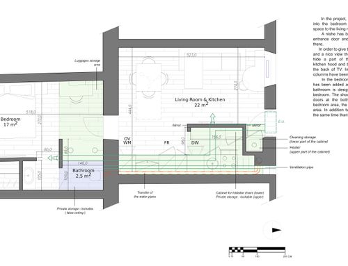
Il muro che separa i due ambienti e' un muro portante. E' possibile fare un'apertura, ma il costo puo' aumentare (pratica strutturale).
Scarichi
Considerare i vincoli tecnici dati dagli scarichi attuali, non sono a conoscenza di altre prese bagno/scarichi acqua.
Requisiti funzionali:
Dimensioni minime stanze letto (per requisiti AirBnB locali)
- 14 m2 per stanza doppia, 9 m2 per stanza singola
Dimensioni min salotto o altri spazi (per requisiti AirBnB locali)
- 14m2 + 2/3 mq per cucina se in presenza
Controsoffitto
Possibile controsoffitto
Posti letto
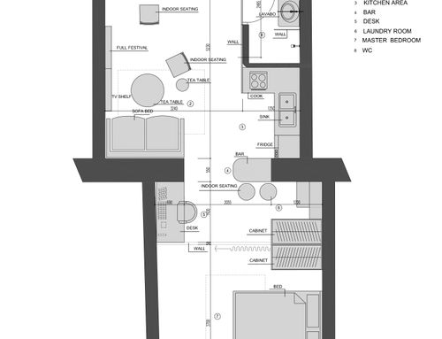
- 1 stanza letto matrimoniale
- 1 divano letto matrimoniale salotto con cucina
Zona lavoro (piccolo desk)
- In salotto ed in una stanza da letto
Resistenza pavimenti
- Attualmente vi e' un parquet dussie posato sopra un pavimento in piastrelle.
- Valutare nuovo pavimento, anche in gres porcellanato per aumentare la resistenza
Bagni
- 1 bagno
Caldaia/Riscaldamento
- il riscaldamento e' autonomo, con caldaia a condensazione nella struttura in legno intorno alla porta di ingresso. Non e' facile spostare la caldaia, anche se avrebbe senso metterla in bagno.
Storage gestore AirBnB (chiudibile)
- Sarebbe utile uno spazio (anche anta di un armadio chiudibile a chiave) per contenere biancheria ricambio, prodotti pulizia, etc di chi gestisce l'airbnb
Storage privato (proprietario)
- Sarebbe utile uno spazio (anche anta chiudibile a chiave) per contenere prodotti del bagno, cucina, vestiti, libri etc del proprietario nel caso usi l'appartamento per brevi periodi
Storage pulizie
- Sarebbe utile avere uno spazio per immagazzinare i per prodotti pulizia, scope, aspirapolvere etc
TV
- TV in entrambe le stanze
Tavolo pranzo
- Allungabile 8 persone, normalmente per 4. Spazio per tenere 4 seggiole aggiuntive.
Condizionamento
- E' presente un condizionamento nella stanza di ingresso (sotto finestra), andrebbe aggiunto uno nell'altra stanza
Lavatrice
- Si ed asciugatrice (anche oggetto unico). Ad oggi e' nella cucina.
Colore infissi
- Chiari come da condominio
Camino
- il camino non e' funzionante, ma avrebbe senso tenerlo per motivi storici ed estetici
Sicurezza
- Rilevatore GAS, CO2 ed estintore, cassetta pronto soccorso
-------------------------------------------------------------------------------------------------------------------------------------------------------------------
ENGLISH SECTION
DWG in files
not sure if the fireplace is designed in the right place
Apartment
Location: Milan, centre area
Old building (beginning of century)
Purpose of property:
- short rentals (like AirBnB)
Target
- young, well off professionals or young couples wishing to stay in the centre of Milan with buzzling life
Style
Expected to be modern, lasting in time, not too fancy or strange, to accomodate a variety of tastes
Lighting
I expect some good use of lighting (leds, etc) because it can make a difference in the esthetic of the flat at an affordable price.
Budget
The flat is to be used for short rentals and as an investment, the budget has to be very carefully considered. It is preferrable to use ready to buy solutions at large forniture chains (IKEA; etc) or custom solutions that are cheap to make.
LOCAL BUILDING REGULATION
Minim hight 2,7 m except for service areas 2,4 m (bathroom etc) or 2,1 for storage etc
double room minimum size 12m2
single room minimum surface 9 m2
living room minimum size 14 mq
living room + dining minimum size 17mq
kitchen minimum size 5 m2
bathroom minimum side lenght 1,2 m
ratio window surface / room surface 1/10 max
bathroom can also be without window (with forced ventilation)
if bathroom with window, window at least 0,5 m2
bathroom must be separated by anteroom from dining/kitchen etc, but not if in the sleeping room or from a corridor
at least one bathroom must be accessible from a common area
-
Structural elements
The wall dividing the two rooms is a structural one, it is possible to make openings (structural works), ca be costly
Piping / Plumbing
No other plumbing is available for WC/Kitchen, therefore please carefully consider moving WC/Kitchen in relation to technical constraints
Heating
- independing heating with gas heater
- current position of heater is at the entrance, in the cabinet around the door, and can be difficult to be moved (but bathroom would make more sense)
Functional requirements:
Minimum requirement for sleeping room (AirBnB)
- 14 m2
Counterceiling
Possible
Number of beds
- 1 master room with double bed
- 1 sofa in the living room that can become a double bed
Work desk
- In the living room and in 1 sleeping room, a small desk for a computer etc.
Floor
- Currently doussie parquet laying on tiles.
- Can be evaluated a new one, also tiles (more resistant) or wood
Bathrooms
- 1 bathroom
Storage AirBnB manager (lockable)
- A lockable space (cabinet etc) would help to store sheets, blankets, for guests
Storage Private (lockable)
- A lockable space would be useful to keep bathroom products, clothing, food of owner if used for prived purposes
Storage cleaning
- Helpful to have a space to put cleaning products, hoover etc
TV
- TV in every room
Dinner table
- Normally 4 seat, but extendable to 8, with a place to kee the additional chairs somewhere
Airconditioning
- 1 aircon already presend underneath the first room window
- another one required in the current sleeping room (probably high on the wall next to the door-window
Washing mashine
- yes needed, currently in the kitchen
Window frames
- White as in current condo color
Fireplace
- existing one does not work, but makes sense to keep it for estetic and historical reasons
Safety
- co2 detector, fire estinguisher, first aid box
SPANISH
-------------------------------------------------------------------------------------------------
Apartamento
Ubicación: Milán
Apartamento: apartamento de dos habitaciones en la zona de Porta Romana, a dos pasos del metro, en un edificio de principios de siglo ("di railhiera", típico milanés).
Finalidad de la propiedad:
- Alquiler a corto plazo (como AirBnB) o alquiler por períodos de 1 a 2 años
Target usuarios:
- normalmente jóvenes profesionales (30 años) con un buen presupuesto, o parejas jóvenes con interés en la vida metropolitana
Estilo:
El estilo que buscamos es moderno, duradero y que atraiga a una amplia gama de personas. Hay ejemplos en las fotos del proyecto.
Iluminación:
Estoy convencido de que un buen diseño de iluminación (LED, lámparas, etc.) puede mejorar mucho la estética de un apartamento sin aumentar demasiado el presupuesto.
Presupuesto:
El piso es para uso de inversión, por lo que el presupuesto es económico. Para los muebles, por ejemplo, es aconsejable elegir productos comerciales disponibles en cadenas de bajo coste (IKEA; Maison du Monde, etc.). Es conveniente utilizar lo menos posible las soluciones a medida si no son baratas de fabricar.
Normas de construcción / Higiene local
Altura mínima de 2,7 m, excepto para las salas auxiliares de 2,4 m y las salas de servicio de 2,1
tamaño mínimo de la habitación doble 12 m2
tamaño mínimo de la habitación individual 9 m2
tamaño mínimo de la sala de estar 14 m2
tamaño mínimo de la sala de estar con espacio para cocinar 17sqm
tamaño mínimo de la cocina 5 m2
lado del baño mínimo 1,2 m
relación entre el tamaño de la ventana y la superficie del suelo 1/10
el baño también puede ser ciego con ventilación forzada (para pisos de hasta 70 m2)
si el baño tiene ventana, una ventana de al menos 0,5 m2
el baño, si no está en el dormitorio o tiene acceso desde un pasillo, debe tener un acceso con un antebaño para separarlo de la zona de salón/cocina
Nota:
Si no cambia el volumen/disposición actual, la disposición actual sigue siendo válida, aunque no cumpla con las normas de construcción. Si se cambia algo, hay que respetar las nuevas normas de la normativa de construcción.
Elementos estructurales:
El muro que separa las dos habitaciones es un muro de carga. Es posible realizar una apertura, pero el coste puede aumentar (práctica estructural).
Escapes:
Teniendo en cuenta las limitaciones técnicas que presentan los desagües actuales, no conozco ninguna otra toma de corriente/desagüe del baño.
Requisitos funcionales:
Tamaño mínimo de la habitación (según los requisitos locales de AirBnB)
- 14 m2 para la habitación doble, 9 m2 para la habitación individual
Tamaño mínimo del salón u otros espacios (según los requisitos locales de AirBnB)
- 14m2 + 2/3 m2 para la cocina si está presente
Falso techo
Posible falso techo
Lugares para dormir
- 1 habitación doble
- 1 sofá cama doble salón con cocina
Zona de trabajo (escritorio pequeño)
- En la sala de estar y en un dormitorio
Resistencia del suelo
- En la actualidad, el suelo es de parqué sobre un suelo de baldosas.
- Evaluar el nuevo suelo, también en gres porcelánico para aumentar la resistencia
Baños
- 1 baño
Caldera/calefacción
- la calefacción es independiente, con una caldera de condensación en la estructura de madera alrededor de la puerta de entrada. No es fácil mover la caldera, aunque tendría sentido ponerla en el baño.
Gestor de almacenamiento AirBnB (con cerradura)
- Sería útil disponer de un espacio (incluso una puerta de armario con cerradura) para guardar la ropa interior de repuesto, los productos de limpieza, etc. para los que gestionan el airbnb.
Almacenamiento privado (propietario)
- Sería útil disponer de un espacio (incluso una puerta con cerradura) para guardar los productos de baño y cocina del propietario, la ropa, los libros, etc., en caso de que utilice el piso durante periodos cortos.
Almacenamiento de limpieza
- Sería útil contar con un espacio de almacenamiento para productos de limpieza, escobas, aspiradoras, etc.
TV
- TV en ambas habitaciones
Mesa de comedor
- Ampliable para 8 personas, normalmente para 4. Espacio para albergar 4 sillas adicionales.
Acondicionamiento
- Hay un aparato de aire acondicionado en la habitación de la entrada (bajo la ventana), habría que añadir uno en la otra habitación
Lavadora
- Sí y secador (también artículo único). Hasta la fecha está en la cocina.
Color de los marcos de ventanas
- Claro como condominio
Chimenea
- la chimenea no es funcional, pero tendría sentido mantenerla por razones históricas y estéticas
Seguridad
- Detector de GAS, extintor de CO2 y de incendios, botiquín de primeros auxilios