Leederville WA 6007, Australia
Residenziale - Appartamento
Descrizione
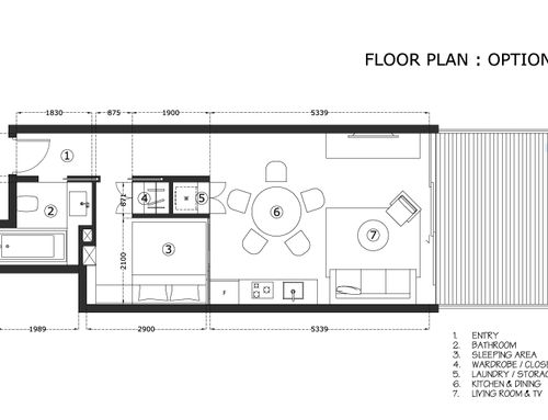
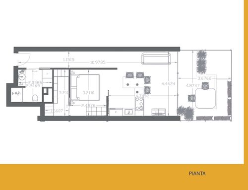
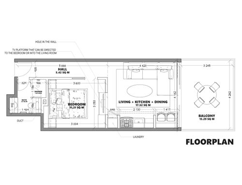
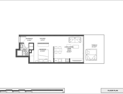
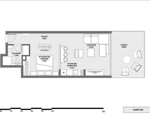
We need a fresh, individual design for our one bedroom, one bathroom apartment that will be built next year as part of a large development in the heart of Leederville. We'd like our one bed, studio apartment to embrace the unique interplay of an industrial design aesthetic with urban village vibe. This apartment is part of a rare collection of 30 apartments, with commercial retail spaces below. The Leederville area offers mural-lined streets and emanates a vibrant culture and is an eclectic, pulsing neighbourhood.
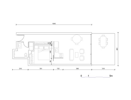
We want a design of the interior only of the 40sqm studio apartment, we're happy for you to design it in whatever way you think will look best, you'll see that the duct can't move, as per the plan attached, everything else in the apartment can be changed.
Thanks!