Cosenza, Province of Cosenza, Italy
housing - medium-apt
Descrizione
Siamo una giovane coppia ed abbiamo acquistato un appartamento di 150 metri quadrati che deve essere completamente ristrutturato per diventare la casa della nostra futura famiglia.
Desideriamo uno stile funzionale, semplice e moderno, adatto principalmente a rispondere alle esigenze pratiche di una famiglia nella vita di tutti i giorni, ma che presenti comunque un design nel complesso elegante.
Allo stato attuale, l’appartamento presenta le seguenti caratteristiche/vantaggi/svantaggi:
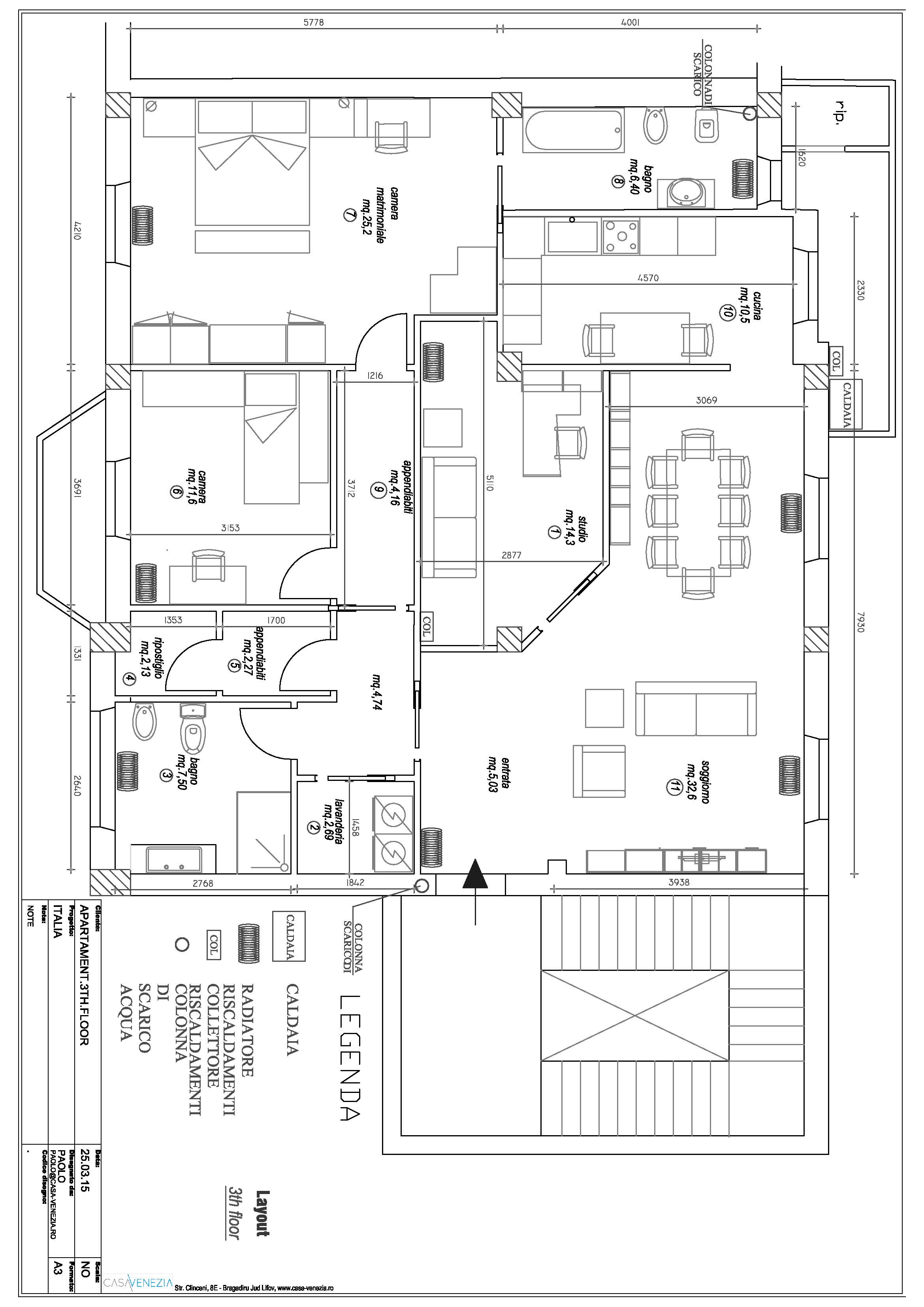
- 150 mq circa, strutturato con un lungo corridoio e le stanze ai lati: a sinistra dell’ingresso una camera (con finestra) ed un salone doppio (con un balconcino ed una finestra); a destra dell’ingresso due camere (entrambe con finestra), la cucina (con balcone/veranda scoperta) ed il bagno (con finestra). Alleghiamo foto, piantine e file formato dwg (autocad).
- È situato al 3° piano di un palazzo ubicato nel centro, su una delle principali vie della città; l’esposizione è ovest (a sx dell’ingresso, con affaccio sulla via) ed est (a dx dell’ingresso, con affaccio su un cortile interno). Il versante ovest è sicuramente meno silenzioso, ma ciò non deve costituire un vincolo in relazione alla disposizione della camere in quanto con infissi di buona qualità sicuramente l’eventuale problema rumore è minimizzato.
- È presente un solo bagno.
- Non è presente alcun ripostiglio (ad eccezione di un piccolo stanzino/lavanderia situato nel balcone/veranda scoperta sul lato dx).
- Sono presenti colonne e travi come indicate sulla piantina; tutti i muri interni quindi non sono muri portanti ma semplici tramezzi e possono tranquillamente essere abbattuti; gli unici vincoli sono rappresentati appunto dalle colonne.
- Sono presenti caloriferi modulari come indicati nella piantina 2.
- In una parete del corridoio è presente il collettore dei termosifoni del lato sx della casa (come indicato nella piantina 2 e nella foto).
- Sono presenti 2 colonne fecali/di scarico come indicate nella piantina 2.
- È completamente da arredare (eventualmente, al fine di sfruttare quanto più possibile gli spazi, valuteremmo anche la possibilità di farci fare alcuni mobili su misura).
In generale vorremmo che l’appartamento venga progettato in modo da ottimizzare il più possibile gli spazi in funzione delle esigenze di una famiglia e che sia così composto:
- Due camere da letto (una matrimoniale ed un’altra con due letti singoli).
- Due bagni.
- Uno studio che all’occorrenza possa fungere anche da camera per gli ospiti.
- Almeno uno stanzino/ripostiglio.
- Una lavanderia.
- Un ampio salone/sala da pranzo che formi un open space con l’ingresso (in modo da eliminare quanto più possibile la struttura con corridoio e stanze ai lati).
- Una cucina che si presti ad essere funzionale anche per eventi/pranzi/cene che si terranno in salone/sala da pranzo (preferibilmente adiacente/limitrofo).
In particolare, di seguito le esigenze/desideri che abbiamo pensato per i singoli ambienti:
- Camera da letto matrimoniale: se non è possibile creare una cabina armadio, vorremmo comunque un armadio molto grande.
- Altra camera da letto: deve essere concepita per due persone; preferiremmo due letti singoli ma possiamo valutare anche una soluzione con letti su due livelli o un letto a scomparsa (in ogni caso non il letto a castello classico, ma uno in grado di agevolare e rendere quanto meno rischiosa possibile la salita/discesa dal letto posto sul livello più alto; tendenzialmente, la soluzione del letto a scomparsa è quella che meno gradiremmo). Alleghiamo delle foto con delle soluzioni tipo che ci piacerebbero nel caso in cui non fosse possibile utilizzare due letti singoli.
- Bagni: in almeno uno ci deve essere la vasca da bagno, nell’altro può andar bene anche il semplice box doccia (di dimensioni però funzionali ad un utilizzo quotidiano). Entrambi i bagni devono essere completi (lavandino+wc+bidet). I sanitari li preferiremmo sospesi (sia per una questione di design, ma soprattutto di praticità e funzionalità in sede di pulizie). Per quanto riguarda il bagno che deve essere costruito ex-novo, non ci dispiacerebbe che sia il bagno della camera matrimoniale (direttamente collegato con entrata dalla stanza), ma ciò non rappresenta un vincolo.
- Cucina: dotata di tutti gli elettrodomestici. Pratica e funzionale per essere al servizio dell’ampio salone/sala da pranzo, ma che sia comunque possibile nascondere alla vista in caso di particolare disordine all’interno. Vorremmo comunque che sia presente un tavolo (se possibile, evitando gli sgabelli) dove poter mangiare quando non vi è esigenza di attrezzare i pasti nel salone/sala da pranzo. Non ci dispiacerebbe che avesse accesso ad uno dei due balconi, ma la cosa non costituisce un vincolo.
- Salone/sala da pranzo: è nella nostra mente lo spazio cuore pulsante della casa. Ci piace il concetto di open space e vorremmo quanti meno muri possibili; deve fungere come detto sia da sala da pranzo con tavolo e sedie che da salone con divani e tv.
- Studio: ci piacerebbe un tavolo/scrivania che permetta di avere due postazioni di lavoro e di ricevere persone. È sicuramente necessaria almeno una libreria. Vorremmo che all’occorrenza possa fungere anche da stanza degli ospiti e che sia dotata quindi di un divano letto.
- Stanzino/ripostiglio: quanto più funzionale possibile. Eventualmente andrebbero bene anche due più piccoli anziché uno solo più grandicello.
- Lavanderia: idonea ad ospitare sia lavatrice che asciugatrice. Eventualmente, se abbastanza ampia, potrebbe fungere anche da stanzino/ripostiglio.
- Balcone/Veranda lato dx: non vorremmo installare ulteriori coperture, preferendo lasciarla tipo balcone. Al massimo una copertura parziale di qualche metro con qualche vetrata/finestra scorrevole qualora ciò possa apportare vantaggi in termini di funzionalità.
- Altro (richiesta non vincolante): ci piacerebbe avere un armadio/guardaroba possibilmente all’ingresso dove riporre cappotti ed eventuali passeggini.
Come pavimenti ci piacerebbe un Gres Porcellanato effetto legno, di una gradazione in grado di trasmettere una sensazione di calore ma che allo stesso tempo non vada ad impattare troppo sulla luminosità. Allo stato attuale, nell’attuale salone doppio è presente un pavimento di marmo che si potrebbe valutare di non coprire con il pavimento nuovo nel caso in cui la disposizione dei nuovi ambienti (e degli impianti) e la coerenza con gli arredi e con lo stile generale del design della casa lo dovesse permettere (e valorizzarne le potenzialità); ciò però non costituisce assolutamente un vincolo, ma una semplice eventualità.
Allo stesso modo, nella descrizione e nella piantina abbiamo indicato la posizione attuale di bagno, cucina e colonne fecali e la presenza dei caloriferi e del collettore attualmente situato nel corridoio: tutti questi elementi relativi agli impianti non devono però essere visti come un vincolo. In generale, infatti, siamo consapevoli che l’appartamento al fine di riuscire a soddisfare le nostre esigenze richieda in ogni caso un intervento di ristrutturazione abbastanza importante. Saremmo ovviamente contenti se ci fossero soluzioni in grado di rispondere a tutte le nostre esigenze con un impatto minimo sugli impianti già esistenti; ma allo stesso modo siamo ben contenti e propensi a valutare altre soluzioni, anche con interventi molto più invasivi sugli impianti esistenti, qualora ciò dovesse condurre ad un progetto finale in grado di soddisfare a pieno le nostre aspettative ed esigenze.
Restiamo a disposizione per qualsiasi domanda/chiarimento/dubbio! Grazie a tutti e buon lavoro!
Risorse