
Morbegno, SO, Italia
Residenziale - Appartamento
This proposal presents four carefully considered design options, each tailored to your requirements and expectations. All alternatives aim to maximize comfort, functionality, and budget efficiency while keeping as much of the existing structure as possible.
Option 1 – Dynamic & Flexible Living
Compact bedrooms allow for more generous living and kitchen spaces. A 360° rotating TV above a bioethanol fireplace becomes a shared focal point visible from both dining and living areas. Frosted sliding glass doors give the kitchen flexible privacy when needed – perfect for a lively, adaptable home.
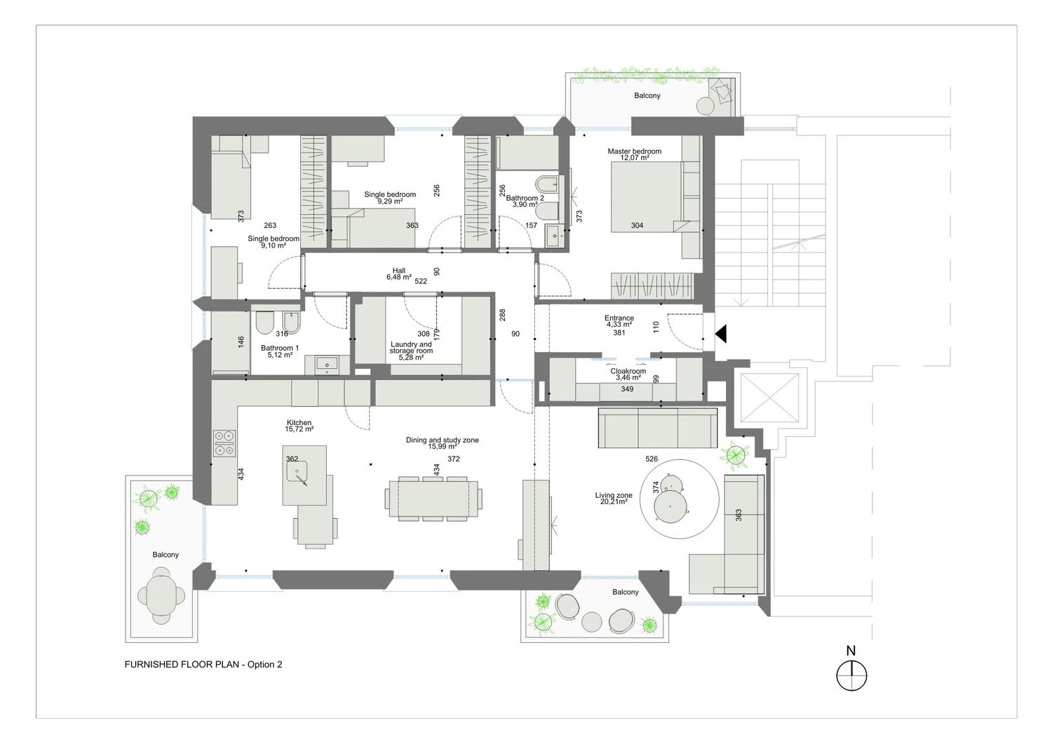
Option 2 – Open & Social Spaces
Similar to option 1, this alternative connects dining, working, and living zones even more openly. Both bathrooms stay in their current positions, providing a practical and cost-efficient solution. Ideal for a warm, social atmosphere.
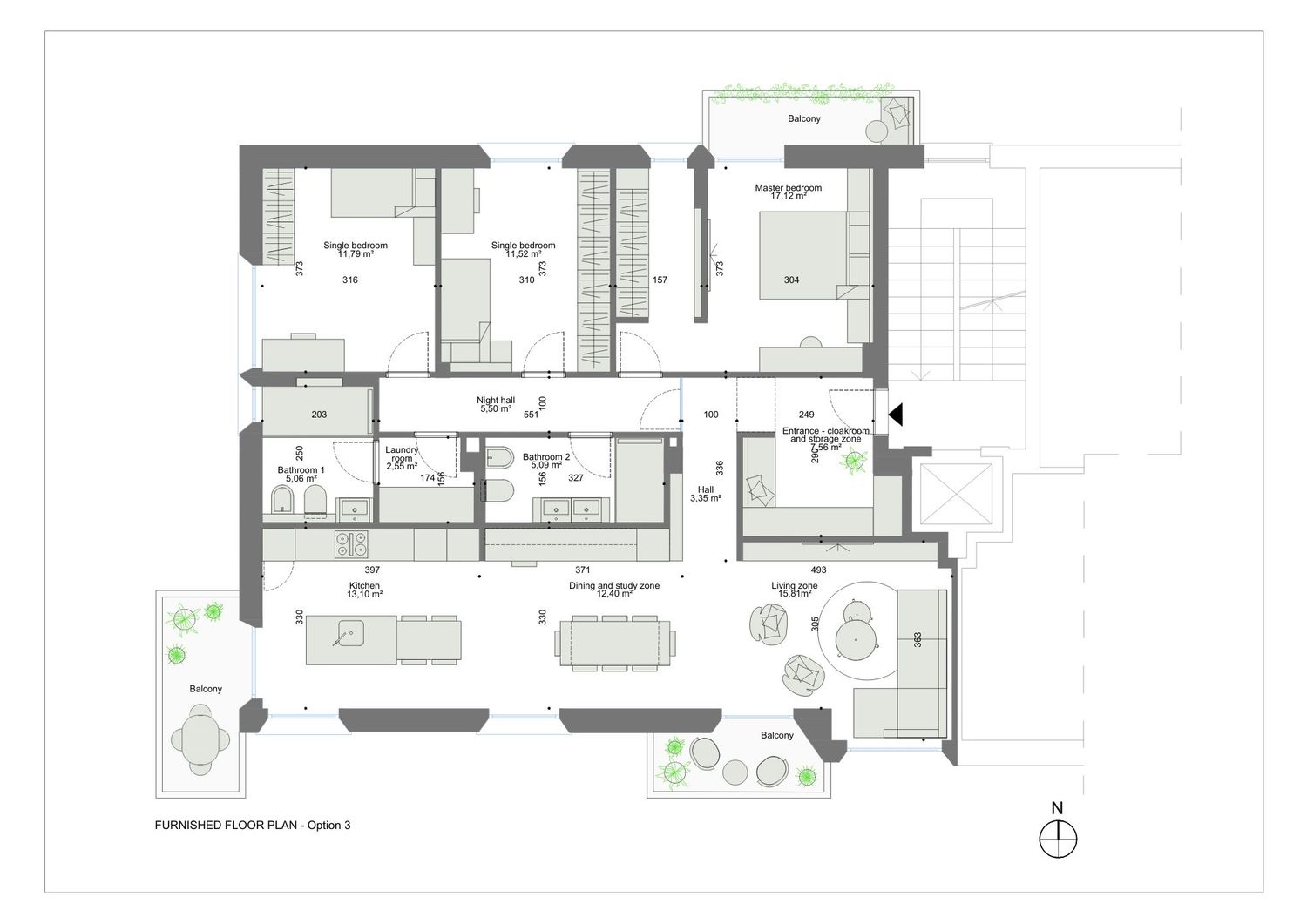
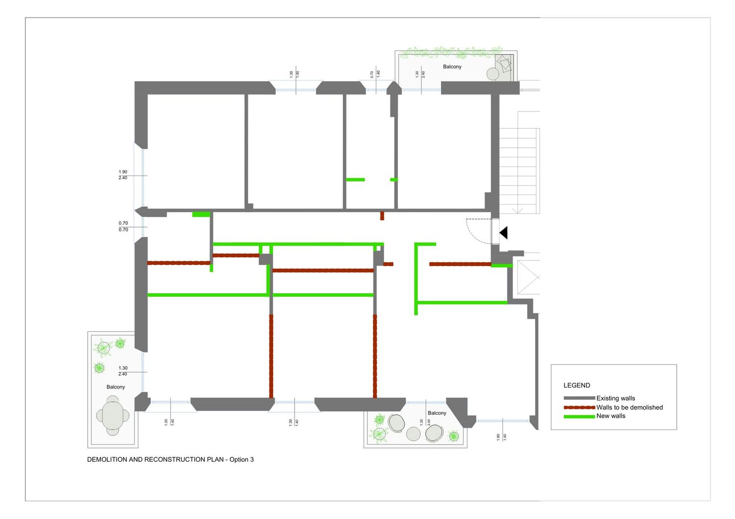
Option 3 – Spacious & Comfortable Rooms
This layout prioritizes larger bedrooms, with kitchen, dining, living, and work spaces aligned in a more linear flow. A calm and balanced solution for those who value generous private spaces.
Option 4 – Fast & Functional Access
Here, every room is designed for easy and quick access, making daily life smooth and efficient – a perfect choice for a family that values practicality.
In every alternative, laundry, storage, and wardrobe areas are reimagined in different ways to match different daily routines. Structural changes are attempted to be kept minimal in order to protect the budget. I hope that these four options meet your expectations and give the freedom to choose your own perfect balance between openness, comfort, and efficiency — and create the home that truly fits your lifestyle.