
Morbegno, SO, Italia
Residenziale - Appartamento
Ciao!
È stato un vero piacere lavorare al progetto della tua casa. Spero che tra le soluzioni proposte tu possa trovare quella che rispecchia al meglio il tuo stile di vita e le tue preferenze.
Ecco le due alternative che ho sviluppato per te:
Opzione 1
In questa prima proposta, ho suddiviso l’appartamento in due zone funzionali ben definite.
La zona sud-ovest, la più luminosa, ospita il soggiorno, la cucina open space e l’area studio. Sia il soggiorno che la cucina hanno accesso diretto al balcone, così lo spazio esterno diventa un’estensione naturale della vita quotidiana.
La cucina è stata collocata adiacente al bagno, in modo da ottimizzare il tracciato degli impianti idraulici e ridurre i costi di realizzazione.
Nella parte nord della casa sono disposte le tre camere da letto; la matrimoniale gode di un accesso diretto al balcone nord. I due bagni sono stati mantenuti nelle loro posizioni attuali per facilitare l’esecuzione degli impianti.
Nel corridoio, che separa la zona giorno dalla zona notte, ho progettato una serie di armadi e un vano lavanderia, che fungono sia da spazio contenitivo che da zona tecnica. La lavanderia, vicina ai bagni, semplifica ulteriormente l’impiantistica.
Infine, all’ingresso ho previsto un piccolo filtro/guardaroba che crea una transizione accogliente tra l’esterno e l’interno.
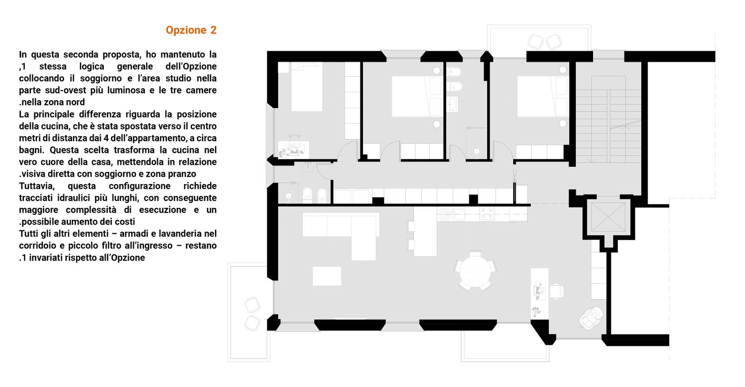
Opzione 2
In questa seconda proposta, ho mantenuto la stessa logica generale dell’Opzione 1, collocando il soggiorno e l’area studio nella parte sud-ovest più luminosa e le tre camere nella zona nord.
La principale differenza riguarda la posizione della cucina, che è stata spostata verso il centro dell’appartamento, a circa 4 metri di distanza dai bagni. Questa scelta trasforma la cucina nel vero cuore della casa, mettendola in relazione visiva diretta con soggiorno e zona pranzo.
Tuttavia, questa configurazione richiede tracciati idraulici più lunghi, con conseguente maggiore complessità di esecuzione e un possibile aumento dei costi.
Tutti gli altri elementi – armadi e lavanderia nel corridoio e piccolo filtro all’ingresso – restano invariati rispetto all’Opzione 1.