
Morbegno, SO, Italia
Residenziale - Appartamento
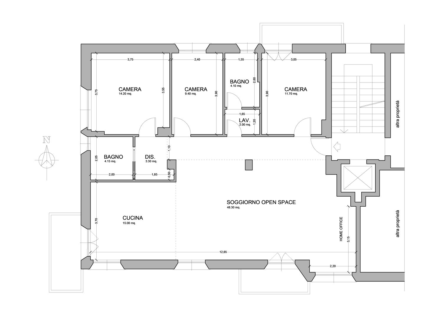
Il nostro progetto realizza le modifiche necessarie per realizzare un appartamento moderno, luminoso, confortevole e spazioso, completo di tutti gli spazi richiesti dal cliente.
La zona notte viene portata a nord, ampliando una delle stanze in modo da renderla a norma per essere matrimoniale (14 mq minimo); anche i bagni vengono leggermente ampliati, ed uno viene organizzato in modo da avere un antibagno lavanderia.
La zona living è open space e posizionata verso sud ovest, con la cucina in aderenza ad un bagno per limitare lo spostamento di adduzioni e scarichi; la cucina è ampia, con isola e separabile dal soggiorno/pranzo tramite una doppia porta scorrevole vetrata.
Il soggiorno è visivamente separato per funzioni grazie ad un camino bifacciale a bioetanolo: abbiamo così una zona pranzo, con tavolo allungabile (6/10 persone), e uno spazio lounge con divano angolare modulare. Alle spalle del divano, leggermente defilata, c'è la zona home office con ampia scrivania e mensole a giorno.
Nel disimpegno è stato creato uno spazio funzionale, sfruttabile come cappottiera o come ripostiglio; tutta l'area di passaggio e il disimpegno sono leggermente ribassati (m. 2,50) con controsoffitto per il passaggio dell'impianto di climatizzazione e l'illuminazione a led.