
Morbegno, SO, Italia
Residenziale - Appartamento
Hello dear client, good day.
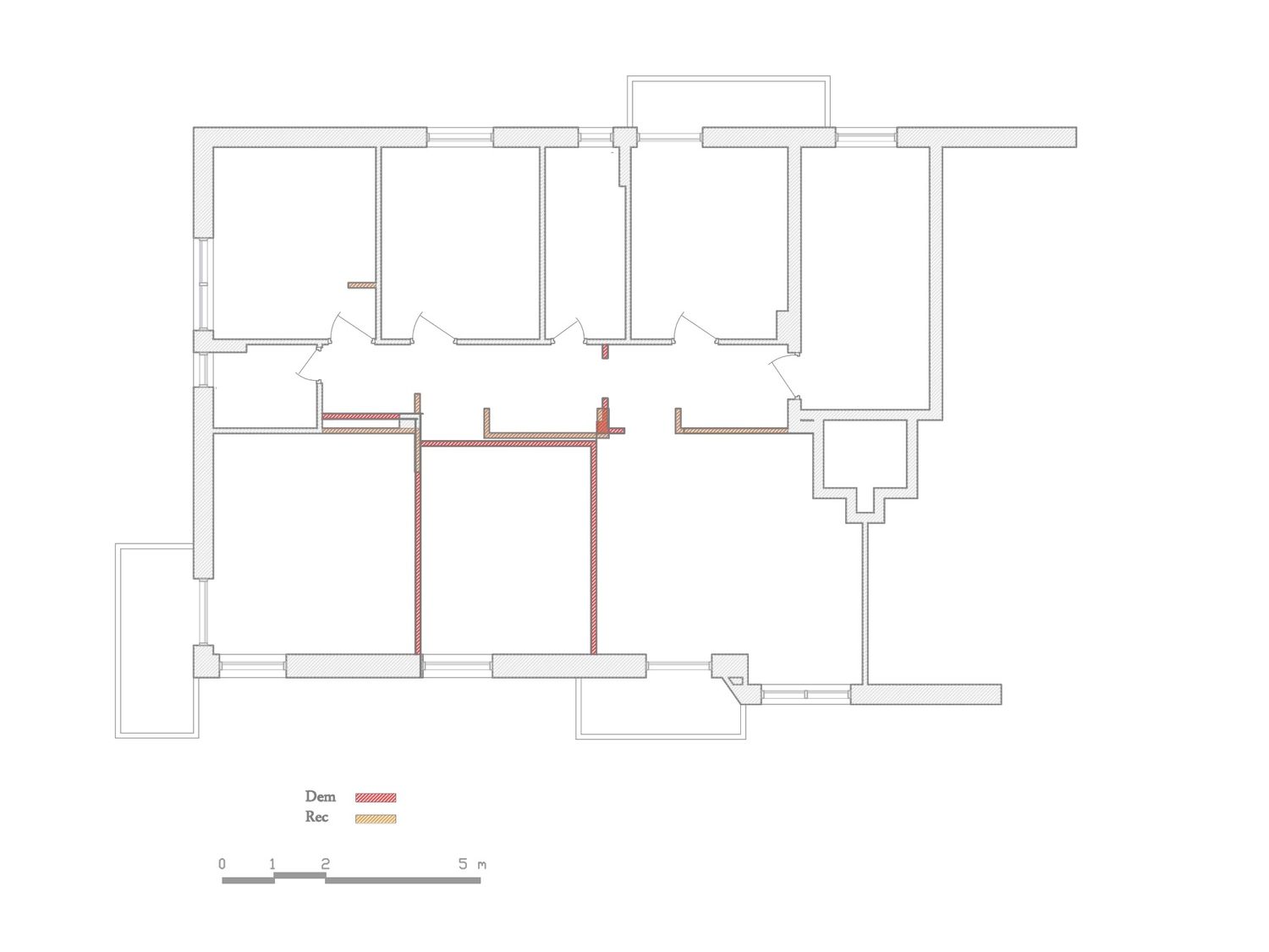
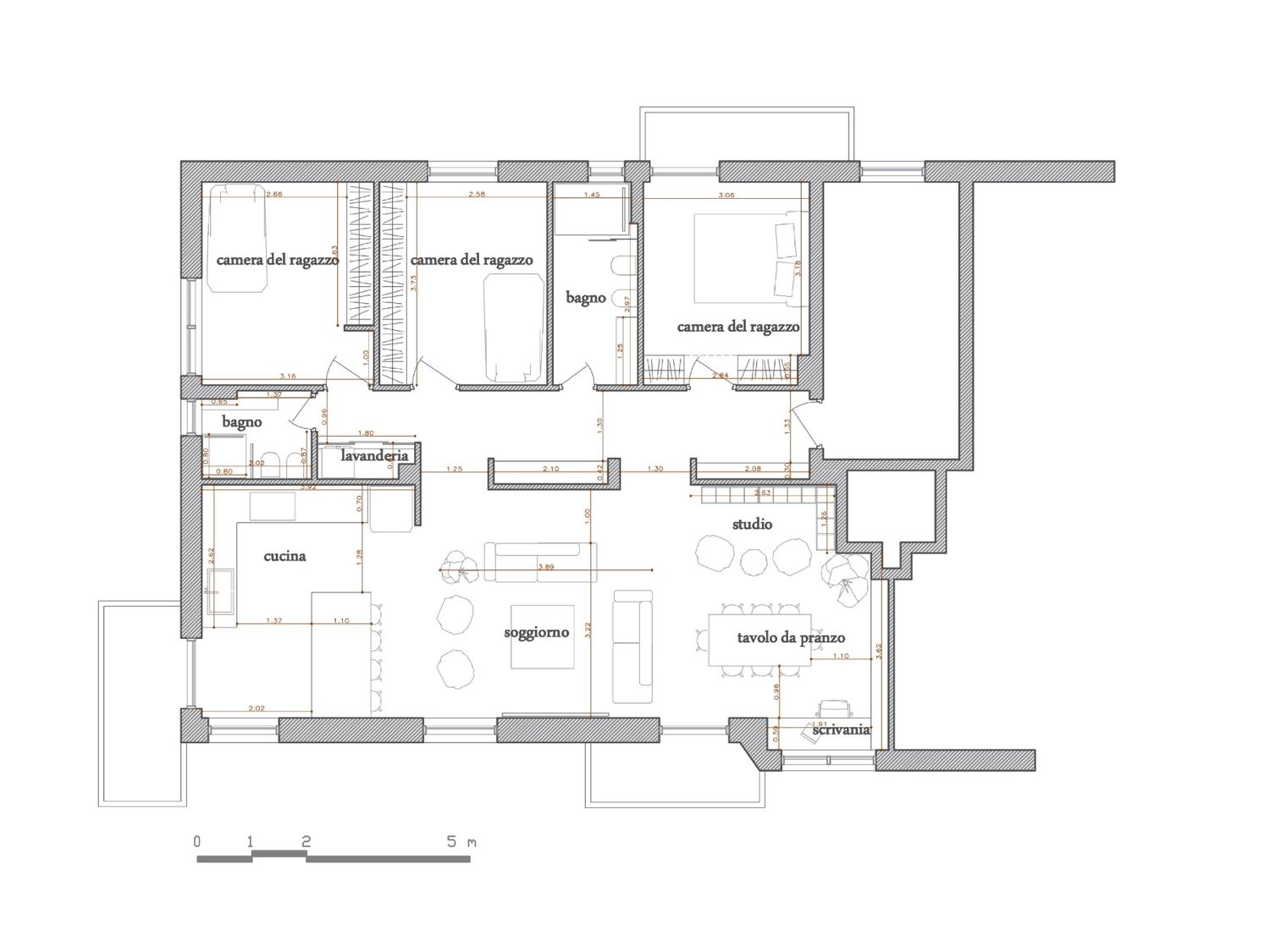
My goal was to keep changes minimal in order to reduce demolition costs while improving functionality. The kitchen has been placed in the best location, at the southwest of the plan, and the bathrooms remain in their original spot with some enhancements. I’ve also included a dedicated laundry area with sliding door access.
I hope this layout meets your expectations.