
Morbegno, SO, Italia
Residenziale - Appartamento
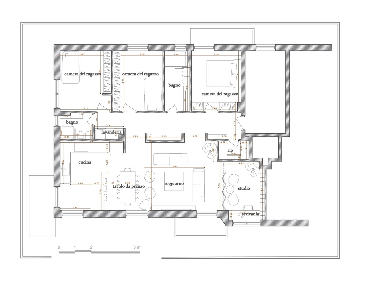
Dear Employer, good day.
I tried to make the least amount of changes so that demolition costs stay at a minimum while achieving better efficiency. My proposal for your plan is this design, where I was able to create a storage room for you and also arrange the library and workspace so they remain connected with living room . With accordion glass doors, you’ll be able to separate the library from the living room, or keep them as one continuous space.
Since the bathrooms remained in place, the best location for the kitchen is on the southwest side of the plan. In this improved design, the bathrooms are upgraded and the spaces are better organized to ensure optimal performance. I also included a dedicated area for the washing machine that can serve as a laundry room, accessible through sliding doors.
I hope you like it.