
Morbegno, SO, Italia
Residenziale - Appartamento
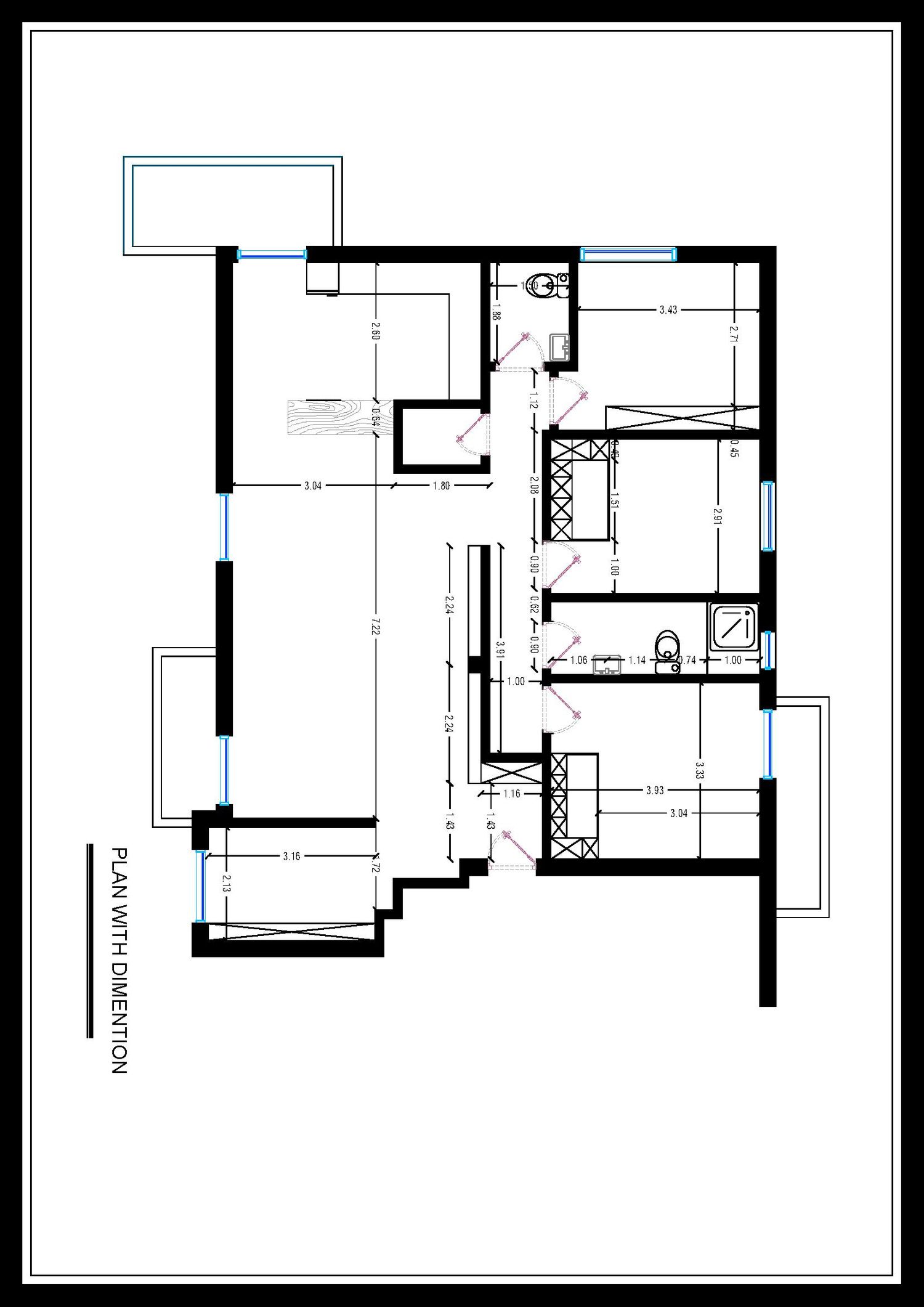
In this design, the public areas of the apartment, including the living room, study room, dining room, and kitchen, are placed in the southern part of the unit. The northern part accommodates two single bedrooms, one double bedroom, and the bathrooms.
The bathrooms have been positioned in the closest possible location to the existing drainage outlet, while the kitchen has been arranged so that it can utilize the same drainage system as the bathrooms.
The layout of the living, dining, and kitchen areas has been designed to ensure optimal access to natural daylight.
In questo progetto, le aree pubbliche dell’appartamento, tra cui soggiorno, studio, sala da pranzo e cucina, sono collocate nella parte sud dell’unità. Nella parte nord si trovano due camere singole, una camera matrimoniale e i servizi igienici.
I servizi igienici sono stati posizionati nella posizione più vicina possibile allo scarico fognario esistente, mentre la cucina è stata organizzata in modo da poter utilizzare lo stesso sistema di drenaggio dei servizi.
La disposizione delle aree soggiorno, pranzo e cucina è stata studiata per garantire la migliore illuminazione naturale durante il giorno.