31100 Treviso, Province of Treviso, Italy
Commerciale - Ristorante
Descrizione
Dear designers,
for my sushi bar, I want a traditional and elegant style, please use as main colour black and as main material wood (see reference pictures), so it will match our brand colours (see photos of the menu and of our bags).
I would like to have some wooden elements to decorate the ceiling (see reference pictures). For the walls, I’d like them to be in black and with some good-quality wood (see reference pictures). Please do some light game to revive the space. We need a wide counter for clients of the same wood and colours of the ceiling. We also need a wide counter for the preparation of sushi, please consider which is the best material for it to match the rest of the design. We need shelves for plates and props, preferably in black colour or wood. For the flooring, we are considering wooden parquet, but we are open to other materials.
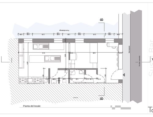
Actually, the restaurant is 50% occupied from the kitchen and 50% from the clients’ space, after the renovation we will like to have more space for our clients and less space for the kitchen (if possible we’d like to keep the storage space, changing room, stoves, rice-cooker and a counter for the food preparation).
In the restaurant there is a gap with some stairs between two levels (see photos) and we’d like to have the dining space in the part that is lower and the kitchen in the part that is up the stairs.
We also really need a passage between the kitchen and the main room that is easy to pass through and that waiters can use to transport hot plates from the kitchen to the main room without using the door.
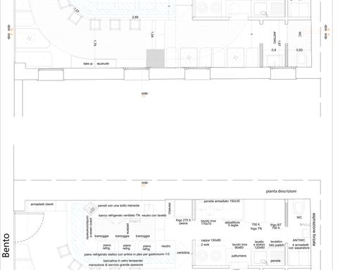
Our restaurant is only for take away sushi, so we need a big counter to put the boxes together in the bags, to store the bags and to deliver the orders and to put the cash register. We need the space to be practical and the “assembly line” to be functional (SUSHI PREPARATION – PACKAGING – DELIVERY).
With the new design, we’d also like to give clients the possibility to eat on the counter in front of the sushi chef, we need a total of 4-6 places (not more) and we need some space where each of the customers is able to store their jackets/bags.
The restaurant will be composed of:
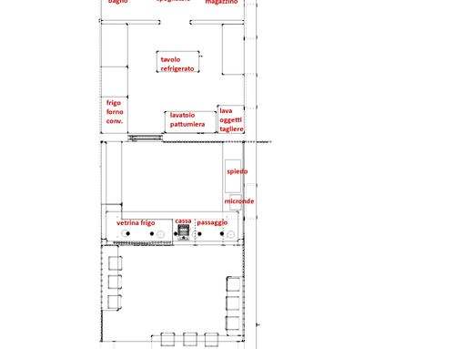
HALL
- A space to cut the fish into pieces
- A place to prepare the sushi, here there will be 3 sushi chefs, there will be a space to put the boxes for take away, a mini-fridge to show the raw fish (preferably cashed in the wood)
- A space to put the sushi in the boxes for take away, so a space or bags, for the lids of take-away boxes, for the soy sauce, chopsticks, wasabi and ginger
- A place to serve the clients, deliver the bags and receive payments (with the cash register)
- A bathroom for clients
- A fridge for beers and beverages
KITCHEN
- A place for 3 rice-cookers
- A place to cool down the rice
- A place with 2 stoves for the WOKs
- A big freezer for the frozen food
- Fridges
- A sink to wash dishes
- A dishwasher
- A storage closet
- A place for the blast chiller
- A storage room
- A changing room
Thank you all and good luck! 😊
---------
ITA
Amo uno stile tradizionale ed elegante allo stesso tempo, prevalentemente nero e legno (allego foto) così che riprenda i colori del menù e del sacchetto (allego foto).
Il soffitto preferisco sia strutturato con qualche fantasia in legno (metto alcuni spunti per far capire nei riferimenti), la parete possibilmente in nero con un materiale in legno pregiato (come allego nei riferimenti) possibilmente con qualche gioco di luci, il lungo bancone per i clienti in legno (stesso colore del soffitto) , il bancone per il confezionamento, valutate voi quale materiale si possa abbinare insieme, le varie mensole per i piatti possibilmente in nero (oppure in legno? da valutare), il pavimento in legno (oppure proponete voi qualche materiale che andrebbe bene).
Ora il locale è strutturato da 50% Sala e 50% Cucina, preferisco che con la ristrutturazione ci sia più spazio per la Sala e meno per la Cucina (comunque cercando di contenere magazzino, spogliatoio, fuochi, cuoci riso e un piano di lavorazione).
Il locale è strutturato con dei gradini (allego foto) e preferirei mantenere questo dislivello del pavimento (per la Sala), per la cucina ovviamente sarà 3 gradini più in su (allego foto nei riferimenti per far capire).
Tra la cucina e la sala ci deve essere un pass pratico per portare i piatti caldi che escono dalla cucina alla sala senza dover usare la porta.
La cucina preferirei che fosse tutta in acciaio e possibilmente con tanti scomparti dove depositare l`atrezzatura. Se fosse possibile fare un mini balcone con vista
Il ristorante offre esclusivamente il servizio di Sushi Take Away, quindi una volta preparato il sushi ci deve essere un piano per il confezionamento, un piano dove consegnare l'ordine e dove sarà presente anche la cassa. Ovviamente il tutto deve essere pratico, che abbia una buona catena di montaggio (PREPARAZIONE SUSHI > CONFEZIONAMENTO > CONSEGNA DELL'ORDINE)
Vogliamo inoltre offrire la possibilità di far mangiare direttamente in locale (davanti ai sushi chef) a 4/6 persone massimo (preferirei che queste persone avessero un proprio armadietto personale dove apporre i propri giubbotti e oggetti).
Il locale deve essere formato da:
SALA
- una postazione dove viene sezionato il pesce da zero
- una postazione dove viene preparato il sushi: devono stare almeno 3 sushi chef, deve essere presente un alloggio per tenere le vaschette take away, l'espositore frigo per il pesce crudo, possibilmente incastonato tra il legno (solo a livello estetico)
- una postazione dove viene confezionato il sushi: ci deve essere un alloggio per i sacchetti, coperchi take away, bastoncini, salse di soia, wasabi e zenzero
- una postazione per ricevere i clienti, ritirare l'ordine ed effettuare il pagamento (CASSA)
- un bagno accessibile direttamente dalla sala
- un frigorifero per le bibite e le birre
CUCINA
- una postazione per 3 cuoci riso
- una postazione per il raffreddamento del riso
- una postazione per 2 fuochi tipo WOK
- un grande freezer per i prodotti surgelati
- frigoriferi
- un lavabo per lavare i piatti
- una lavastoviglie
- un armadietto per tenere le attrezzature
- una postazione per l'abbattitore
- un magazzino
- spogliatoio.
Buon Contest e che vinca il migliore! :)