
Naples, Metropolitan City of Naples, Italy
Residenziale - Appartamento
Descrizione
ENG:
Hi, I am the owner of a beautiful apartment in a 19th century building in the center of Naples with a partially panoramic view.
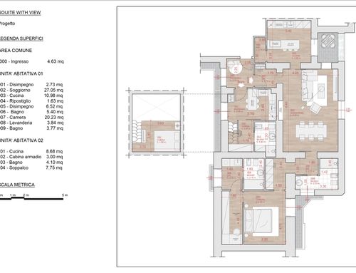
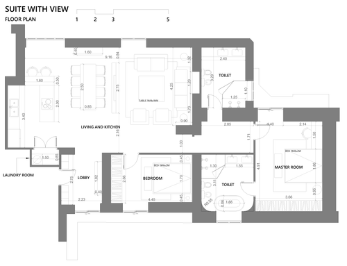
Being ancient, it has undergone changes over the years so I am also inserting a copy of the original plan in addition to the current one as I would like to reopen some rooms that have been closed.
The previous renovation was not ._ and the house is half of a much larger unit.
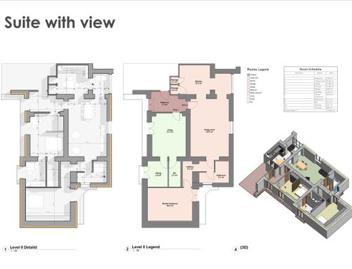
In view of a renovation I would like to understand if my idea is feasible given that my husband and I are left (our two children live outside Naples) and that is to redistribute the house so that the two of us can live comfortably in the panoramic part and possibly rent the the other part for short term rentals or simply use it to host our children when they come to Naples.
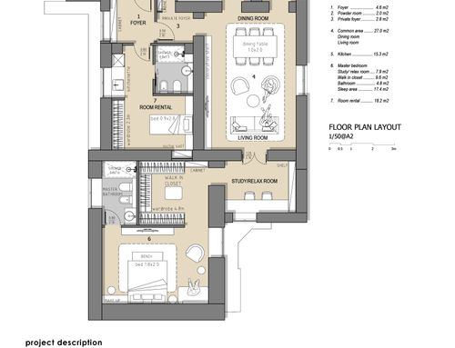
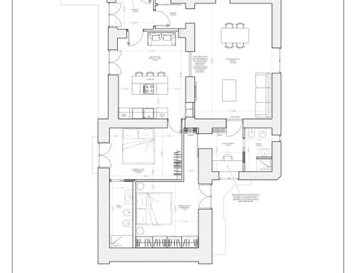
I would like to move the kitchen where the study is currently located and open the room onto the living room which I love because it has a beautiful view but at this point I don't know where to make the bedroom.
I therefore leave the task of creating a house studied in detail to your imagination and experience.
Thanks!!
SPA:
Hola, soy propietario de un hermoso apartamento en un edificio del siglo XIX en el centro de Nápoles con una vista parcialmente panorámica.
Al ser antiguo, ha sufrido cambios a lo largo de los años, por lo que también insertaré una copia del plano original además del actual, ya que me gustaría reabrir algunas habitaciones que han estado cerradas.
La renovación anterior no fue ._ y la casa es la mitad de una unidad mucho más grande.
En vista de una renovación, me gustaría entender si mi idea es factible dado que mi marido y yo nos quedamos (nuestros dos hijos viven fuera de Nápoles) y es redistribuir la casa para que los dos podamos vivir cómodamente en la panorámica. parte y posiblemente alquilar la otra parte para alquileres a corto plazo o simplemente usarla para alojar a nuestros niños cuando vengan a Nápoles.
Me gustaría mover la cocina donde actualmente está el estudio y abrir la habitación hacia la sala que me encanta porque tiene una hermosa vista pero a estas alturas no sé donde hacer el dormitorio.
Por ello dejo a tu imaginación y experiencia la tarea de crear una casa estudiada al detalle.
Gracias!!
ITA:
Salve, sono proprietaria di un bell'appartamento in un palazzo dell'800.al centro di Napoli parzialmente panoramico.
Essendo antico ha subito negli anni delle variazioni perciò inserisco anche la copia della pianta originale oltre a quella attuale in quanto vorrei riaprire alcuni vani che sono stati chiusi.
La precedente ristrutturazione purtroppo non è stata conservativa.La casa è la metà di una unità molto più grande.
In vista di una ristrutturazione vorrei capire se è fattibile la mia idea, visto che siamo rimasti io e mio marito ( i nostri due figli vivono fuori Napoli) e cioè ridistribuire la casa in modo che noi due possiamo vivere comodamente nella parte panoramica ed eventualmente affittare l'altra parte per affitti brevi oppure usarla semplicemente per ospitare i nostri figli quando vengono a Napoli.
Mi piacerebbe trasferire la cucina dove attualmente c'è lo studio perché accede alla veranda che si potrebbe aprire di nuovo e diventa un balcone e riaprire il vano sul salone che adoro perché ha una vista bellissima e che vorrei ancora utilizzare come salone/living; a questo punto però non so dove fare la camera da letto e il bagno.
Se fosse utile al miglior godimento della casa si potrebbero usare i collegamenti chiusi dalla passata ristrutturazione
Lascio quindi alla vostra fantasia e esperienza il compito di una casa studiata nei particolari.
Grazie mille!!
N.B. Il muretto all'ingresso può essere tolto, ho già fatto un saggio, probabilmente quando fu tagliato il muro per creare l'open space, fu lasciato questo pezzo per delimitare la cucina....