
Rome, Italy
business - small-office
Descrizione
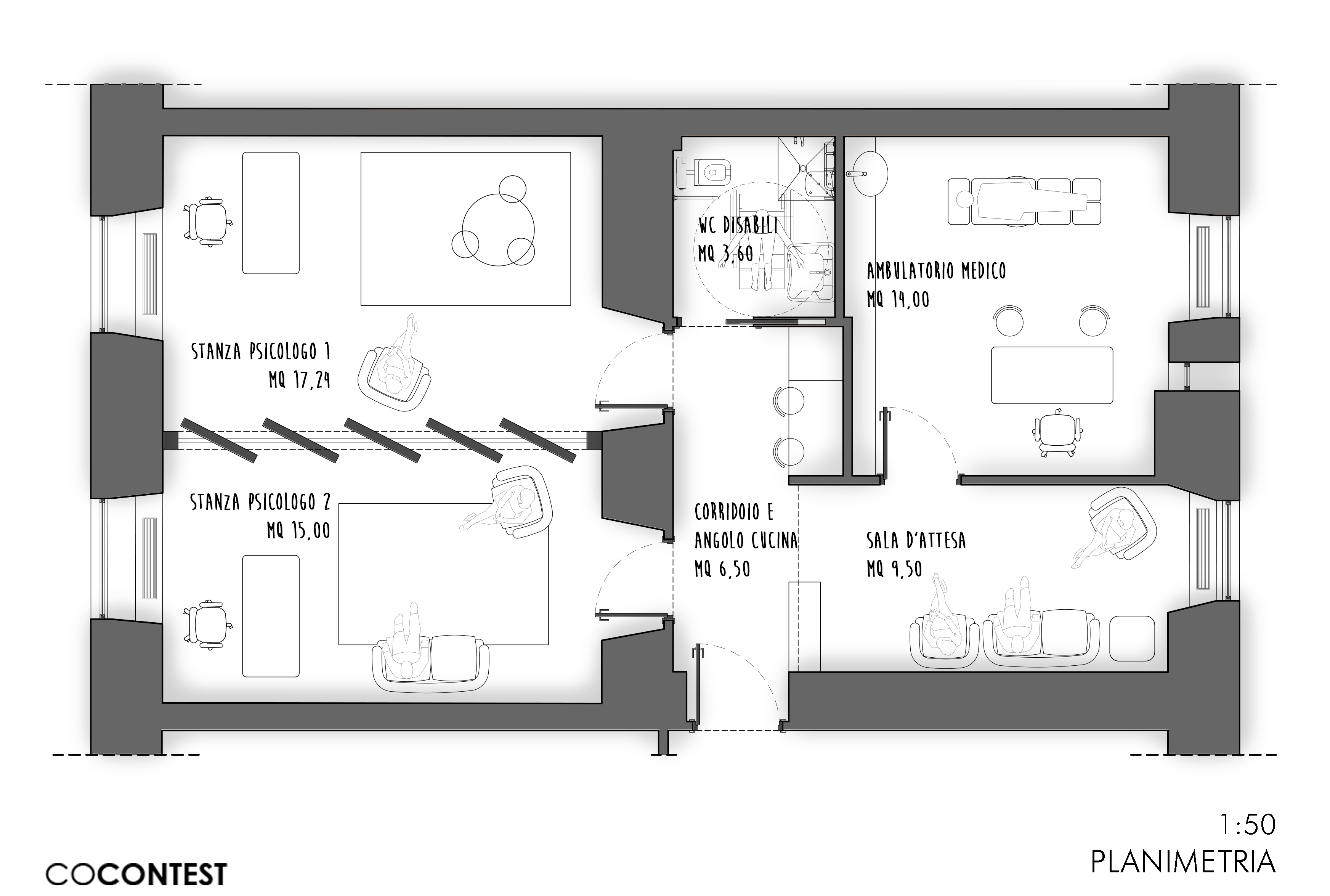
Studio medico polispecialistico ubicato al piano seminterrato di un edificio storico, composto da tre stanze, una sala di attesa ed un bagno. Due stanze saranno dedicate agli psicologi e la terza ad altri specialisti del benessere fisico (nutrizionisti, osteopati, ecc.).
E’ richiesto un progetto per i materiali e colori dei pavimenti, rivestimenti, porte, infissi e finiture, completo dell’illuminazione e degli arredi, che preveda:
• Uno spazio per l’attesa dei pazienti
• un angolo di coffe break per i professionisti
• due stanze che si possono fondere in una unica grande sala formazione, tramite una parete divisoria manovrabile
• Gli spazi dovranno essere insonorizzati
• È necessario un soppalcato per l'alloggiamento delle attrezzature (sedie pieghevoli per la sala formazione)
L'altezza del soffitto è di 345 cm ed attualmente c'è un orribile controsoffitto grigliato, visibile nelle foto. L’immobile è abbastanza buio, considerando che le due stanze lato strada hanno delle finestre rettangolari di dimensioni 130 cm larghezza x 90 cm altezza, con il bordo inferiore alla quota di 210 cm dal pavimento. Le finestre dalla parte opposta (lato cortile interno), hanno dimensioni di 200 cm di altezza x 100 cm larghezza, con il bordo inferiore alla quota di 95 cm dal pavimento.
L’immobile sarà dotato di un impianto di climatizzazione/ricambio aria elettrico a pompa di calore ad alto rendimento.
Sotto l'intonaco le pareti sono in mattoni rossi (vedi foto).