
76123 Andria, Province of Barletta-Andria-Trani, Italy
Commerciale - Ufficio
Descrizione
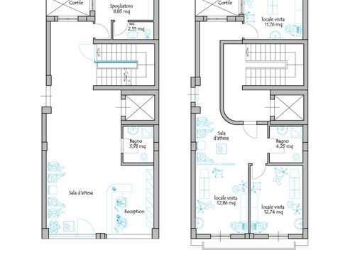
E' un edificio nuovo e a piano terra voglio organizzare una sala d'attesa e reception con segretarie e computer, con una stanza che serve per cambiare le divise e depositare gli abiti delle persone che lavorano nella clinica. Al primo piano invece vi sono tre stanze che vorrei arredare e trasformare in tre punti visita trattamento. Ogni stanza ha un mobile per contenere farmaci e altre cose che occorrono per l'attività. (cestelli di garze, ovatta, cerotti) La stanza deve contenere anche alcune apparecchiature, due apparecchi laser e una lampada mobile per dare luce e un lettino per visita e trattamento. Queste stanze devono servire per trattamenti di natura estetica, all'interno non c'è bisogno di una scrivania ma all'interno un mobile che deve contenere farmaci e medicazioni varie un punto per poter poggiare e scrivere qualcosa e un computer. Le tre stanze sono più o meno delle stesse dimensioni e ognuna dovrebbe essere arredata allo stesso modo. Le pareti dovrebbero essere celeste chiaro, illuminare dal controsoffitto con lampade led. Vi è un piccolo corridoio che potrà essere utilizzato come punto di attesa per tre o quattro pazienti. Una di queste stanze è più grande . Ho programmato di fare una parete in vetro. Nella sala d'attesa c'è l'ascensore, il bagno e poi delle scale che portano al piano -1. Vorrei che anche questa zona fosse separata- chiusa con un cancello o una porta in modo da avere un ambiente unico. Anche qui nella sala d'attesa vorrei fare un controsoffitto con luci led, al centro c'è la predisposizione per un condizionatore. I colori della parete possono essere bianco o celeste, molto chiaro, molto luminoso. Posso inviarvi delle foto degli ambienti così come sono e così vi do dei dati più precisi.
-Chiedo inoltre un consiglio sul colore delle pareti interne ed esterne riguardanti le scale.
-Per il soffitto vorrei un contro soffitto con dei faretti
-Inoltre vorrei trovare una soluzione le per porte come potete notare dalle foto ci sono delle piastre in alluminio poiché vi è una fascia alta 1 cm.
It is a new building and on the ground floor I want to organize a waiting room and reception with secretaries and computers, with a room that is used to change uniforms and deposit clothes for people working in the clinic. On the first floor instead there are three rooms that I would like to furnish and transform into a treatment visit. Each room has a piece of furniture to hold medicines and other things that are needed for the activity. (baskets of gauze, cotton wool, plasters) The room must also contain some equipment, two laser devices and a mobile lamp to give light and a bed for examination and treatment. These rooms must be used for aesthetic treatments, inside there is no need for a desk but inside a piece of furniture that must contain drugs and various medications a point to be able to rest and write something and a computer. The three rooms are more or less the same size and each should be furnished in the same way. The walls should be light blue, illuminate from the false ceiling with LED lamps. There is a small corridor that can be used as a waiting point for three or four patients. One of these rooms is larger. I planned to make a glass wall. In the waiting room there is the elevator, the bathroom and then the stairs leading to the floor -1. I would also like this area to be separated - closed with a gate or a door so as to have a unique environment. Also here in the waiting room I would like to make a false ceiling with LED lights, in the center there is the predisposition for an air conditioner. The colors of the wall can be white or light blue, very light, very bright. I can send you photos of the environments as they are and so I give you more precise data.