
Rome, Metropolitan City of Rome Capital, Italy
Residenziale - Appartamento
Descrizione
ENG:
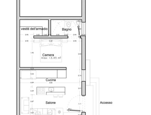
Hello everyone, I have just purchased a single room of about 20 m2 which I would like to turn into income. My idea is to create a modern mini loft for students or tourists. There must be a complete bathroom with shower, toilet, bidet and sink, multi-functional bedroom and mini kitchen the utilities are water and electricity so for the thermal part you will need a hot cold heat pump and hot water production minimal modern furniture. I have uploaded the floor plan where it is possible to see From the videos that there are 2 entrances, it is possible to consider closing the one on the common corridor, favoring the use of the one on the common terrace or both. All the existing walls can be demolished in the design.
Here are the videos of the home:
https://www.dropbox.com/scl/fi/k07m3wc364miqwjjawqvw/WhatsApp-Video-2023-09-06-at-17.56.09.mp4?rlkey=wobw4esmuanesgd3kvkpcpggh&dl=0
https://www.dropbox.com/scl/fi/f83dsybrcjv8h8u8wqovh/WhatsApp-Video-2023-09-06-at-17.56.14.mp4?rlkey=9lccdefb95tjgswmv2u0uboch&dl=0
SPA:
Hola a todos, acabo de comprar un apartamento de una habitación de unos 20 metros cuadrados que me gustaría generar ingresos, mi idea es conseguir un mini loft moderno para estudiantes o turistas, debe tener baño completo, ducha, bidé de agua y fregadero, un dormitorio multifuncional y mini cocina los servicios públicos son agua y electricidad, por lo tanto, para la parte térmica se necesitará una bomba de calor frío-calor y una producción de agua caliente. Mobiliario moderno mínimo. He subido el plano donde se puede ver en los videos que hay 2 entradas, puedes considerar cerrar la del corredor común, privilegiando el uso de la de la terraza común o ambas, puedes derribar todas las paredes existentes en el diseno
Aquí tenéis los vídeos de la casa:
https://www.dropbox.com/scl/fi/k07m3wc364miqwjjawqvw/WhatsApp-Video-2023-09-06-at-17.56.09.mp4?rlkey=wobw4esmuanesgd3kvkpcpggh&dl=0
https://www.dropbox.com/scl/fi/f83dsybrcjv8h8u8wqovh/WhatsApp-Video-2023-09-06-at-17.56.14.mp4?rlkey=9lccdefb95tjgswmv2u0uboch&dl=0
ITA:
Salve a tutti ho appena acquistato un mono locale di circa 20 mq che vorrei mettere a reddito .la mia idea è di ricavarne un mini loft moderno per studenti o turisti devono essere presenti un bagno completo doccia water bidè e lavabo camera da letto multi funzionale e mini cucina le utenze sono acqua e corrente quindi per la parte termica servirà un pompa di calore caldo freddo e produzione acqua calda arredamento minimal moderno. Ho caricato la planimetria dove e possible vedere dai video che ci sono 2 ingressi si puo prendere in considerazione la chiusura di quello del corridoio comune privilegiando l utilizzo di quello del terrazzo comune oppure entrambi .si possono demolire tutte le pareti esistenti ho aggiunto un tipo di doccia che vorrei che prendeste in considerazione
Ricordo che la ristrutturazione dovrebbe andare incontro alle esigenze di uso b&b oppure anche per un eventuale coppia di studenti
grazie e buon lavoro
Questi i video della casa:
https://www.dropbox.com/scl/fi/k07m3wc364miqwjjawqvw/WhatsApp-Video-2023-09-06-at-17.56.09.mp4?rlkey=wobw4esmuanesgd3kvkpcpggh&dl=0
https://www.dropbox.com/scl/fi/f83dsybrcjv8h8u8wqovh/WhatsApp-Video-2023-09-06-at-17.56.14.mp4?rlkey=9lccdefb95tjgswmv2u0uboch&dl=0