
33070 Caneva, Province of Pordenone, Italy
Residenziale - Zona Giorno/Notte
Descrizione
ENGLISH
Well appreciated light colors in general, white walls and one colored wall. would also like to change the kitchen (white color on the below side and light wood on the top side - or viceversa) or all white.
Please find hereafter an idea that came up in my mind in these days:
looking at the room from the front door to the window door:
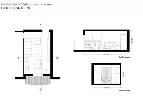
- on the right side of the room a low forniture for the TV and consecutive linear kitchen ( no corner cabinets), kitchen with tiles;
N.B Compared to other elements of the room, subject to the kitchen connections this should remain in the positioncurrently indicated on the plan.
In the kitchen I would like to fit a dishwasher.
- towards window-door a small 4 seats table;
- on the left side of the room in front of the entrance door the sofa (opposite to the right wall with TV-forniture)
and immediately after (towards the window-door and opposite to the kitchen) a module divided vertically into 3 with oven, fridge and a small pantry (if it fits).
- on the short wall on the right side of the entrance door (i.e. opposite to the window-door) a horizontal mirror of the length of the wall (to trick the room to be a bit bigger).
- behind the main door there is a a small radiator. I would like to substitute it with a longer one (that develops in vertical).
Radiator Length: 40 cm.
N.B. I am interested in music and vinyls, in this room I would like to find the place to include my vinyls player and a bit of room for the vinyls.
The above just an idea, well appreciated proposals of alternative solutions that optimize this small space at best.
Ideal budget: between 7,000 and 8,000 euros (home appliances included: i.e. oven, fridge and dishwasher).
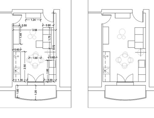
Attached a map of the room with measurements and some pictures of how it is for the time being.
Thanking you in advance for support and collaboration.
Available for any further info I remain,
With best regards
---------------------------------------------
ESPAÑOL
Serán apreciados los colores claros en general, con paredes blancas y una pared a color. También me gustaría cambiar la cocina (color blanco en el lado inferior y madera clara en el lado superior, o viceversa) o todo blanco.
A continuación, encuentra una idea que se me ocurrió en estos días:
Mirando la habitación desde la puerta de entrada a la ventana:
- En el lado derecho de la habitación un mueble bajo para la TV y cocina lineal consecutiva (sin armarios de esquina), cocina con azulejos;
N.B en comparación con otros elementos de la habitación, sujeto a las conexiones de la cocina, esto debe permanecer en la posición que se indica actualmente en el plano.
En la cocina me gustaría colocar un lavavajillas
- Hacia la puerta de la ventana, una pequeña mesa de 4 asientos;
- En el lado izquierdo de la habitación, frente a la puerta de entrada, el sofá (opuesto a la pared derecha con el mueble para la televisión)
e inmediatamente después (hacia la puerta de la ventana y enfrente de la cocina) un módulo dividido verticalmente en 3 con horno, nevera y una pequeña despensa (si cabe).
- En la pared pequeña, a la derecha de la puerta de entrada (es decir, frente a la puerta de la ventana) un espejo horizontal del largo de la pared (para engañar a la habitación a que parezca un poco más grande)
- Detrás de la puerta principal hay un pequeño radiador. Me gustaría sustituirlo con uno más largo (que se desarrolla en vertical).
Largo del radiador: 40 cm
N.B. estoy interesado en la música y los vinilos, en esta habitación me gustaría encontrar el lugar para incluir mi reproductor de vinilos y un poco de espacio para los vinilos.
Lo anterior es solo una idea, se apreciarán propuestas para soluciones alternativas que optimizan este pequeño espacio de la mejor forma.
Presupuesto ideal: entre 7.000 y 8.000 euros (electrodomésticos incluidos: es decir, horno, nevera y lavavajillas)
Adjunto un mapa del dormitorio con medidas y algunas fotos de como se encuentra es este momento.
Agradezco desde ya su apoyo y colaboración.
Quedo disponible por cualquier otra información adicional
Saludos cordiales,
-----------------------------------------
ITALIANO
Preferibili colori chiari in generale, muri bianchi e una parete colorata. Mi piacerebbe cambiare anche la cucina (colori bianca sotto e legno chiaro sopra o viceversa) o tutta bianca. Di seguito un’idea che mi è venuta questi giorni:
vedendo la stanza dalla porta d’entrata alla porta finestra:
- sul lato dx della stanza piano basso con tv e cucina lineari (cucina senza angolari) e con piastrelle;
N.B. rispetto ad altri elementi della stanza, in funzione degli attacchi della cucina quest'ultima è necessario resti nella posizione attuale indicata nella planimetria.
- centrale verso la finestra un tavolino 4 posti;
- sul lato sx della stanza davanti la porta d’entrata il divano (che guarda la parete dx con tv),
e subito dopo (verso la porta finestra e di fronte alla cucina) un modulo diviso verticalmente in 3 con frigo, forno e piccola dispensa (se sta).
Nella cucina mi piacerebbe includere la lavastoviglie.
- sul muro corto a dx della porta d’ entrata ed opposto alla porta finestra uno specchio orizzontale della lunghezza della parete per rendere la stanza un po’ più grande.
- dietro la porta d’entrata c’è un piccolo termo. Per sfruttale l’altezza della stanza vorrei sostituire il termo attuale con uno più lungo (che si sviluppa verticalmente). Interasse del termo 40 cm.
N.B. sono un’appassionata di musica e vinili, in questa stanza mi piacerebbe trovare il posto per il mio giradischi e un porta vinili.
Questa sopra solo un’ idea, ben apprezzata qualsiasi soluzione alternativa che ottimizzi al meglio questo piccolo spazio.
Budget ideale: tra i 7.000 e gli 8.000 Euro (elettrodomestici inclusi: forno, frigorifero e lavastoviglie).
In allegato foto piantina della stanza con misure e alcune foto di com’è attualmente.
Ringraziando sin d'ora per il supporto, resto a disposizione per qualsiasi ulteriore info.
Cordiali saluti