
Modena, Province of Modena, Italy
Residenziale - Zona Giorno/Notte
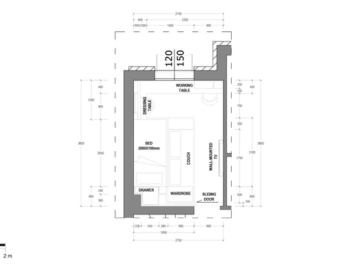
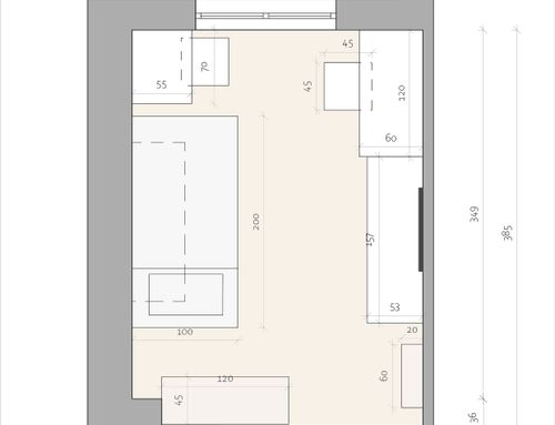
Descrizione
Siamo alla ricerca di una soluzione per avere più spazio nella stanza di mia figlia 18 enne.
Le esigenze sono quelle di contenimento, studio, riposo ma sarebbe bello poter avere un’area in cui “stare” magari anche a guardare un film con qualcuno. Valutiamo tutte le soluzioni: soppalco/piattaforme/armadi ponte/letti a scomparsa/divano letto. Ovviamente il buon riposo è una necessità fondamentale.
Stile: indie, colori neutri, legno, bianco, naturali. Grazie
ENG
We are looking for a solution to have more space in my 18 year old daughter's room.
The needs are those of containment, study, rest but it would be nice to have an area in which to "stay" maybe even watching a film with someone. We evaluate all the solutions: mezzanine / platforms / deck wardrobes / foldaway beds / sofa bed. Obviously, a good relax is a fundamental necessity.
Style: indie, neutral colors, wood, white, natural. Thanks
SPA
Buscamos una solución para tener más espacio en la habitación de mi hija de 18 años.
Las necesidades son las de contención, estudio, descanso pero sería bueno tener un área en la cual "estar" tal vez incluso viendo una película con alguien. Evaluamos todas las soluciones: entreplanta / tarimas / armarios de terraza / camas abatibles / sofá cama. Evidentemente, un buen descanso es una necesidad fundamental.
Estilo: indie, colores neutros, madera, blanco, natural. Gracias