
Verona, VR, Italy
Residenziale - Appartamento
Descrizione
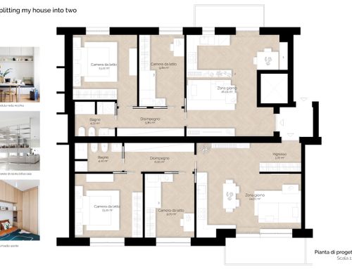
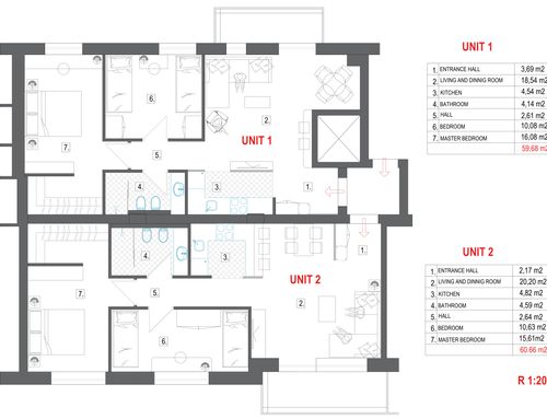
Splitting up the apartment!
Hi there!
ITA
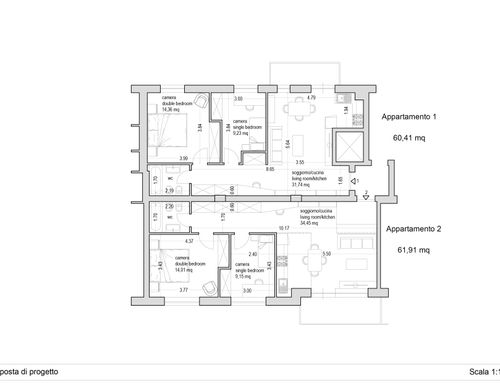
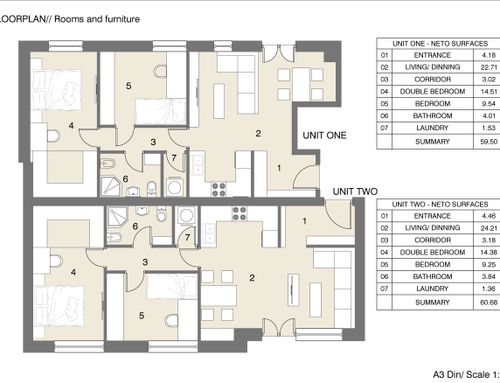
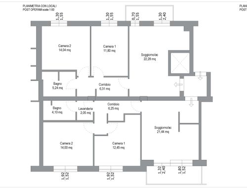
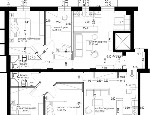
L'obiettivo di questo contest è dividere l'attuale appartamento in 2 unità.
I due nuovi appartamenti dovranno avere ciascuno:
- 1 cucina/soggiorno (min 20mq)
- 1 camera matrimoniale (minimo 14mq)
- 1 camera singola (minimo 9mq)
- 1 bagno (wc, bidet, shower, bathroom sink)
La posizione delle attuali finestre è fissa e non può essere modificata.
I bagni possono essere ciechi (senza finestre) (probabilmente sarà l'unica soluzione possibile), non preoccupatevi per gli scarichi in quanto il pavimento andrà alzato di 30cm quindi c'è la possibilità di portarli dove si vuole.
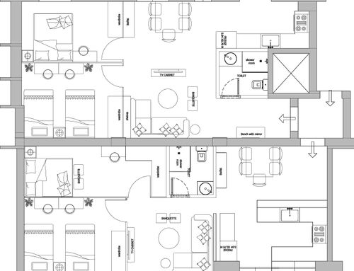
Per la cucina soggiorno vorrei che gli spazi fossero studiati con muri ad hoc che, pur non dividendo completamente la stanza, riescano a creare degli ambienti distinti (tipo quando si creano delle spalle per dividere un po' dalla cucina al soggiorno... comunque vuoi progettisti sapete sicuramente cosa fare ;)).
Sono ben accetti anche ripostigli ed anfratti in quanto spesso sono utili sia per dividere gli spazi sia per usarli come armadietti, scarpiere, dispense, guardaroba etc etc (generalmente gli spazi più utili della casa :D)
Mi piace uno stile moderno ma non troppo con colori semplici e chiari.
Grazie mille e buona fortuna!
ENG
The goal of this contest is to divide the current apartment into 2 units.
Each of unit must have:
- 1 kitchen/living room (min 20sqm)
- 1 double bedroom (minimum 14sqm)
- 1 single bedroom (minimum 9sqm)
- 1 bathroom (toilet, bidet, shower, bathroom sink)
Windows position cannot be changed. The bathrooms can be windowless (it might be the only viable solution), don't worry about the drainage pipes as the floor will be raised by 30 cm so they can be placed wherever you want.
For the living room/kitchen I would like the spaces to be designed using walls that, whilst not completely dividing the room, manage to create separate ambients. (I mean when little walls is used in order to double the sides that you can use, eg: one side for the kitchen and one side for a sideboard or a tv or whatever... anyway you designers know what to do better than me ;))
Closets and little spaces created ad hoc are also welcome as they are often useful for dividing spaces or become shoe racks, cupboards, storage, wardrobes etc. etc.
I like contemporary styles with simple and light colour schemes.
Thank you and good luck!
SPA
El objetivo de este concurso es dividir el apartamento actual en 2 unidades.
Los dos nuevos apartamentos deben tener cada uno:
- 1 cocina / sala de estar (mínimo 20 m2)
- 1 habitación doble (mínimo 14 m2)
- 1 habitación individual (mínimo 9 m2)
- 1 baño (inodoro, bidé, ducha, lavabo)
La posición de las ventanas actuales es fija y no se puede cambiar.
Los baños pueden ser ciegos (sin ventanas) (probablemente será la única solución posible), no te preocupes por los desagües ya que el suelo se elevará 30cm por lo que existe la posibilidad de llevarlos a donde quieras.
Para la cocina y el salón, me gustaría que los espacios estuvieran diseñados con paredes ad hoc que, aunque no dividan completamente la habitación, sean capaces de crear ambientes diferenciados (como al crear respaldos para dividir un poco de la cocina al salón ... diseñadores seguramente sabrán qué hacer ;)
Los armarios también son bienvenidos, ya que suelen ser útiles tanto para dividir espacios como para usarlos como taquillas, zapateros, despensas, guardarropas, etc. (generalmente los espacios más útiles de la casa: D)
Me gusta el estilo moderno pero no demasiado con colores sencillos y claros.
¡Muchas gracias y buena suerte!