
Porto Garibaldi FE, Italy
Residenziale - Casa
Descrizione
ENG
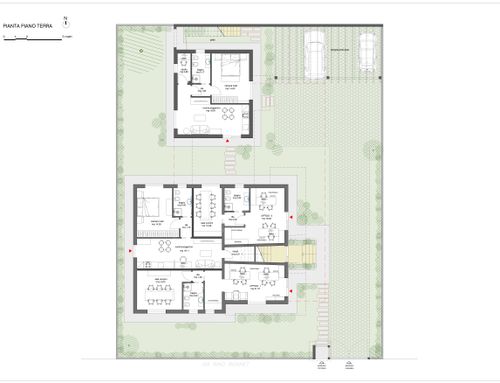
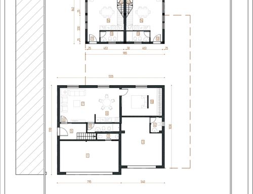
Hi everyone, I have a property that you want to enhance by creating mini apartments with good characteristics and finishes, to be able to rent to professionals, for short periods. You want to launch a contest in order to be able to identify a Designer to subsequently entrust him with the design of furniture graphics and in any case finishes and then deliver it to the craftsmen on site. We are talking about a building consisting of ground floor and first floor of about 260 square meters divided into 130 on the ground floor and 130 on the first floor. You want to leave with the current surfaces, except that a small modification is not needed to facilitate the housing construction for the housing part which is instead the subject of construction of mini apartments. Therefore we want to create a design of mini apartments with a gross surface area of 45sqm, consisting of a living room with kitchenette, bathroom (possibly with window), double bedroom and a small study, if possible (for the possibility of creating a single bed) . On the first floor you can always create 3 mini apartments of 45 gross sqm organized, consisting of living room with kitchenette, bathroom (possibly with window), double bedroom and a small study, if possible (for the possibility of creating a bed single). On the back of this property there is a warehouse that you can use its built square meters (not cubic) to be able to use them for two further mini-apartments of 60 square meters each, arranged vertically. As reported by the DWG, there is identified, in the courtyard, the building area, which respects the distance of the borders and the red and purple buildings. The two purple and red perimeters identify two building areas but with different heights. The red line with a height of 7.00 meters other to the pitched roof, while in the purple box identifies the building area with different heights. The non-buildable private area of the building, it will be necessary to hypothesize parking spaces for all the houses or only in part. For the two new houses that will be built, with the use of the square meters of the warehouse, they will have to have a private garden / parking space if possible.
I am attaching images of the buildings that demonstrate the type of environment you want to create, while for the external photos you want to give the idea of the type of finish and aesthetics that you like.
ITA
Salve a tutti, ho un immobile che si vuole valorizzare realizzando dei mini appartamenti di buone caratteristiche e finiture, per poter locare a professionisti, per brevi periodi. Si vuole lanciare contest al fine di poter individuare un Designer da affidagli successivamente il progetto di grafica arredi e comunque rifiniture per poi consegnarlo agli artigiani in loco. Parliamo di un fabbricato composto da piano terra e piano primo di circa di 260 mq divisi in 130 al piano terra e 130 al piano primo. Si vuole lasciare con le superfici attuali, tranne che non serva una piccola modifica per agevolare ala realizzazione abitativa per la parte Abitativa che invece è oggetto di realizzazione di mini appartamenti . Pertanto si vuole realizzare una progettazione di mini appartamenti con superficie lorda di 45mq, composta da soggiorno con angolo cottura, bagno (possibilmente con finestra), camera da letto matrimoniale e un piccolo studio, se possibile ( per possibilità di realizzare un posto letto singolo). Al piano primo si possono realizzare sempre 3 mini appartamenti sempre di mq lordi 45 organizzati , composta da soggiorno con angolo cottura, bagno (possibilmente con finestra), camera da letto matrimoniale e un piccolo studio, se possibile ( per possibilità di realizzare un posto letto singolo). Sul retro di questo immobile vi è un magazzino che si può utilizzare i suoi mq edificati (non cubatura) per poterli utilizzare per ulteriori due mini alloggi di mq 60 cadauno, disposti in verticale. Come riportato dal DWG, vi è indentificato, nella corte, l'area edificabile, la quale rispetta la distanza dei confini e dai fabbricati dii colore rosso e viola. I due perimetri viola e rosso identificano due aree edificabili ma con altezze diverse. La linea di colore rossa con altezza di ml 7,00 altre al tetto a falde, mentre nel riquadro di colore viola identifica l'area edificabile con altezze diverse. L'area privata non edificabile del fabbricato, si dovranno ipotizzare de posti auto per tutte le abitazioni o solo in parte. Per le due nuove abitazioni che si realizzeranno, con l'utilizzo dei mq del magazzino, dovranno avere una rea privata a giardino / posto auto se possibile.
allego delle immagini degli immobili che dimostrano il tipo di ambiente che si vuole realizzare, mentre per le foto esterne si vuole dare l'idea del tipo di rifiniture ed estetica che si gradisce
SPA
Hola a todos, tengo una propiedad que me gustaría potenciar creando miniapartamentos con buenas prestaciones y acabados, para alquilarlos a profesionales durante periodos cortos.
Queremos lanzar un concurso para poder identificar a un diseñador al que se le encargue el proyecto de diseño gráfico, mobiliario y, en todo caso, los acabados, para luego entregarlo a los profesionales in situ.
Estamos hablando de un edificio que consta de planta baja y primer piso de aproximadamente 260 metros cuadrados divididos en 130 en la planta baja y 130 en el primer piso. Queremos dejarlo con las superficies actuales, a menos que sea necesaria una pequeña modificación para facilitar la construcción de viviendas del tipo miniapartamento.
Por lo tanto, queremos diseñar mini-apartamentos con una superficie bruta de 45m2, que consiste en una sala de estar con cocina americana, baño (posiblemente con ventana), dormitorio doble y un pequeño estudio, si es posible (para la posibilidad de hacer una cama individual). En la primera planta se pueden hacer 3 miniapartamentos siempre de 45m2 brutos, que constan de salón con cocina americana, baño (posiblemente con ventana), dormitorio doble y un pequeño estudio, si es posible (para hacer una cama individual).
En la parte trasera de esta propiedad hay un almacén que se puede utilizar para otros dos mini-apartamentos de 60 metros cuadrados cada uno, dispuestos verticalmente. Como se muestra en el DWG, está la zona de construcción en el patio, que respeta la distancia de los límites y de los edificios en rojo y púrpura. Los dos perímetros de color púrpura y rojo identifican dos zonas de edificios pero con diferentes alturas. La línea de color rojo con una altura de ml 7,00 otras la cubierta inclinada, mientras que el recuadro púrpura identifica la superficie edificable con diferentes alturas.
En la zona privada no edificable del edificio, las plazas de aparcamiento deben estar destinadas para todos los o la mayor parte de los apartamentos, Para las dos nuevas viviendas que se construyan, con el uso de los metros cuadrados del almacén, deberán tener una zona ajardinada privada / plaza de aparcamiento si es posible.
Adjunto fotos de los edificios que muestran el tipo de ambiente que se quiere realizar, mientras que las fotos exteriores pretenden dar una idea del tipo de acabado y estética que se desea.