
25030 Castelcovati BS, Italy
Residenziale - Casa
Descrizione
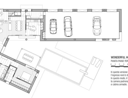
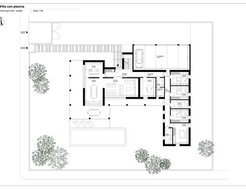
Villa con bella zona piscina, unico piano abitabile con 4 camere 2 bagni soggiorno cucina studio lavanderia, box auto per 5 macchine allo stesso piano oppure seminterrato con scivolo moolto comodo qualora la villa venisse troppo imponente, eventuale locale hobby/palestra e bagno al piano primo se la villa risulta troppo piatta in prospetto. Eviterei tetto piano
House with beautiful pool area, single habitable floor with 4 bedrooms 2 bathrooms living room kitchen study laundry, garage for 5 cars on the same floor or basement with slide moolto comfortable if the villa was too impressive, possible hobby room / gym and bathroom on the first floor if the villa is too flat in the elevation. I would avoid flat roof