
96100 Syracuse, Province of Syracuse, Italy
Residenziale - Zona Giorno/Notte
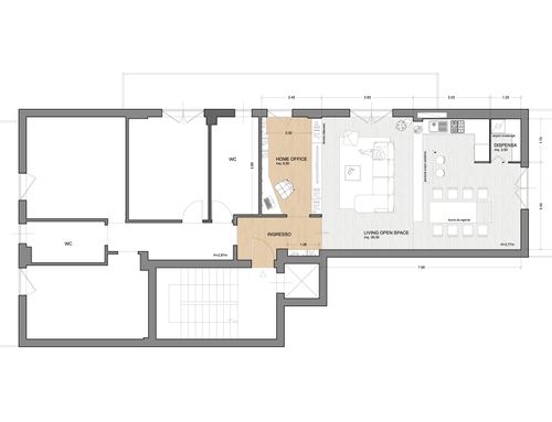
Descrizione
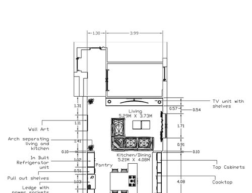
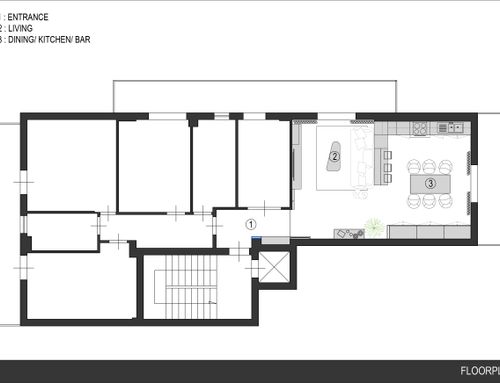
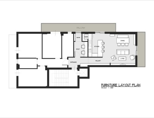
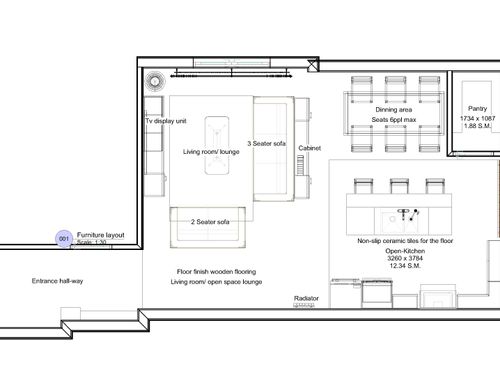
Restando sempre su uno stile moderno, vorrei rivedere gli spazi che riguardano la zona giorno. In particolare la zona della cucina/ salone/ studio/ ingresso. Rendere più utile la zona del salone e non come adesso che è solamente una zona di passaggio. Nella rielaborazione però non vorremmo perdere lo spazio dello studio e magari considerare la possibilità di ricavare anche un piccolo ripostiglio/ dispensa. Per quanto riguarda la cucina invece ci piacerebbe molto poter aggiungere una penisola alla cucina attuale composta da: lineare di metri 3,90 più un modulo lungo metri 1,80 ed alto 1,10 m (allego foto). Attualmente tutta la zona giorno ( escluso lo studio) si trova in uno spazio rialzato da uno scalino ( 10 cm) rispetto al resto della casa. Il rialzo fu fatto in quanto la cucina attualmente si trova distante dalla colonna di scarico quindi per avere la pendenza minima la zona giorno é rialzata di 10 cm. Considerare anche un openspace per l'intera area da poter separare magari con arredamento anziché pareti. Oppure realizzare anche un unico spazio cucina soggiorno così come mostrato in alcune foto. Creazione di controsoffitto. Grazie
Remaining always on a modern style, I would like to review the spaces that concern the living area. In particular, the kitchen / living room / study / entrance area. Make the salon area more useful and not as it is now just a transit area. In the re-elaboration however we would not want to lose the space of the study and maybe consider the possibility of obtaining even a small storage room / pantry. As for the kitchen, we would very much like to be able to add a peninsula to the current kitchen consisting of: linear 3.90 meters plus a module 1.80 meters long and 1.10 m high (I enclose a photo). Currently the whole living area (excluding the study) is located in a space raised by a step (10 cm) compared to the rest of the house. The increase was made because the kitchen is currently located far from the drain column, so to have the minimum slope the living area is raised by 10 cm. Also consider an open space for the entire area that can be separated, perhaps with furniture instead of walls. Or even create a single living room kitchen space as shown in some photos. Creation of false ceiling. Thank you