Rome, Italy
Residenziale - Appartamento
Descrizione
Appartamento a Roma vicino S. Pietro, 2° piano con tripla esposizione. Molto luminosa, anche dato il numero di finestre e porte finestre, ma fredda perchè esposta a nord-est e
nord-ovest.
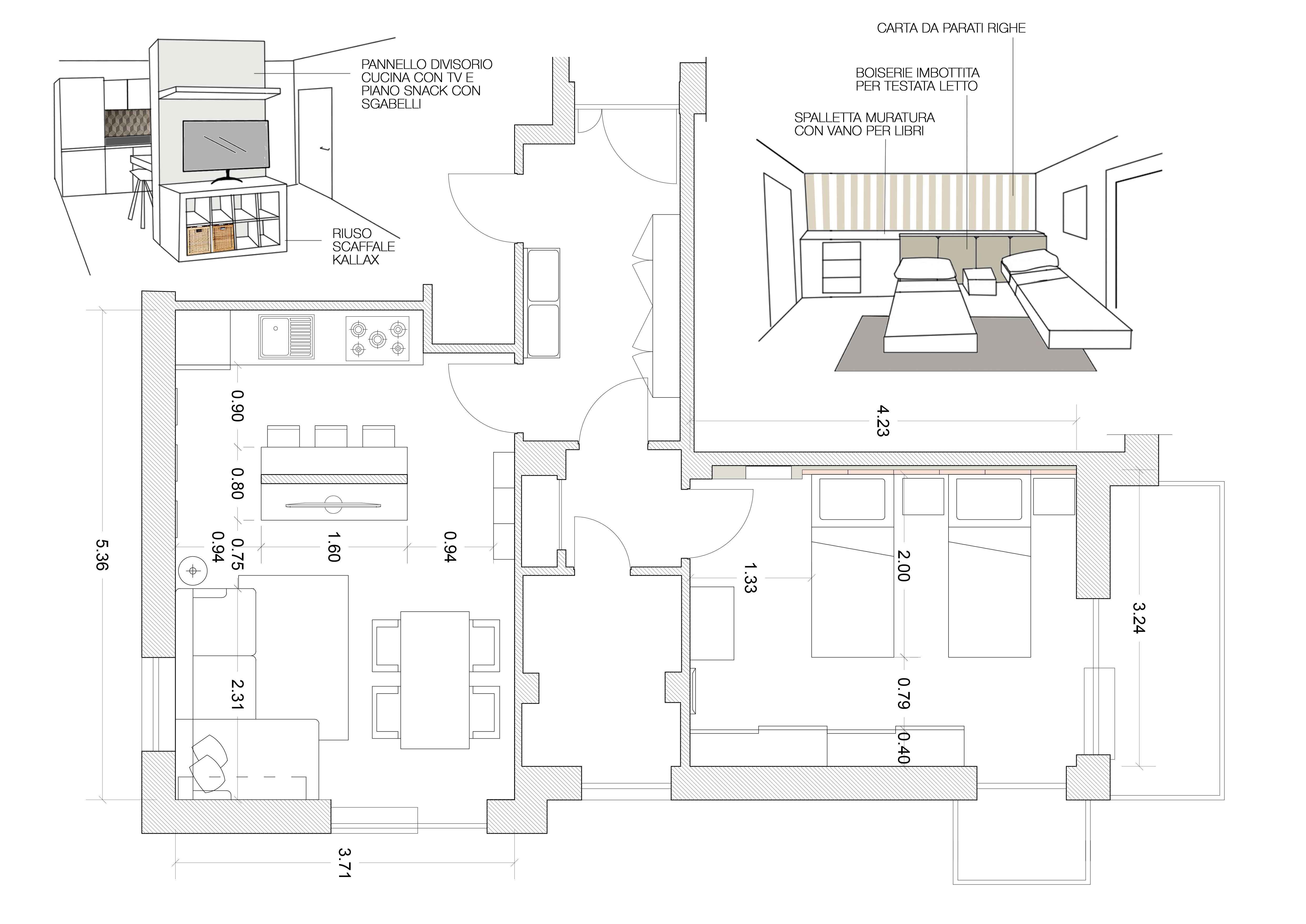
Camera da letto:
Desidero arredarla al meglio, utilizzando mobili economici. La camera presenta 1 finestra + porta finestra su un lato e porta finestra su un altro lato. Da qui il problema di avere solo 1 parete interamente libera. Il progetto originario, poneva i 2 letti (separati oppure uniti a formare un letto matrimoniale) su ques'unico lato libero. L'impianto elettrico è stato progettato con quest'idea, e questa disposizione è mostrata nelle foto allegate. Tuttavia, ho spostato i letti nella parte opposta della stanza perchè mi sembra di trovarmi meglio così. Ho comprato da poco da Ikea(pax /auli/ilseng guardaroba con ante a specchio scorrevoli) un 'armadio largo 1 metro e mezzo e alto 2.80 con anta a specchio e spessore 0,66 e vorrei tenerlo. Ho inserito le foto (3) di un armadio a 2 ante e un mobile basso ciascuno largo 1 metro che potrei tenere o eliminare, in quanto di scarso valore.Quale sarebbe la disposizione più armonica per sistemare i mobili?
Attualmente ho delle tende cinesi sottili, vorrei metterne di pesanti per isolarmi meglio dal freddo e dai rumori.
Soggiorno con angolo cottura:
Ho inserito l'angolo cottura nel soggiorno.
Desidererei creare all'interno della stanza, una parte soggiorno (piccolo divanetto max 3 posti, meglio se divano letto).
Dovrei arredare la cucina/salada pranzo, il tavolo che attualmente ho, un calligaris wengè Cs/377 Buondì') mi risulta poco armonico.Come pure la penisola bianca comprata a maison du monde che si può vedere in foto e separa la zona cottura dal resto della stanza. Inoltre vorrei proteggere la zona cucina sia alle pareti che attualmente sono tinteggiate e soffrono per gli schizzi della cucina, sia il pavimento che come si può vedere dalle foto è un marmo alla palladiana che assorbe la sporcizia.
Sono indecisa se mettere delle tende.
Risorse