
84060 Agnone Cilento, SA, Italy
Residenziale - Appartamento
Descrizione
ENGLISH
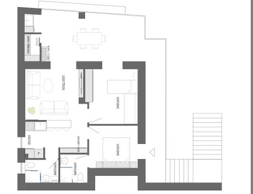
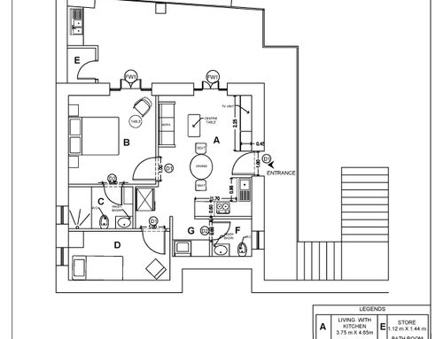
It is a beach house for holidays, 2 bedrooms, living room, kitchen, bathroom. The living room and a bedroom overlook the terrace.
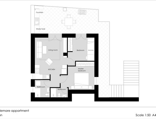
I would like to create two bathrooms, one in the bedroom and a single living room / kitchen
On the terrace I have a 500 l water tank that I would like to eliminate by putting a smaller one in it, creating a storage room and a sink
---------------------
ESPAÑOL
Es una casa de playa para vacaciones, 2 dormitorios, salón, cocina, baño. El salón y dormitorio tienen vistas a la terraza.
Me gustaría crear dos baños, uno en el dormitorio y una sala de estar / cocina.
En la terraza tengo un tanque de agua de 500 l que me gustaría eliminar colocando uno más pequeño, creando un cuarto de almacenamiento y un fregadero.
---------------------
ITALIANO
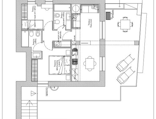
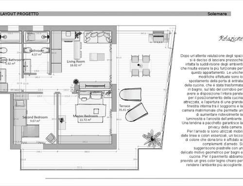
È una casa al mare per le vacanze di circa 67 mq escluse aree scoperte, vorrei risultasse fresca luminosa non soffocata da mobili ma con tutte le comodità,con soluzioni giuste per armadi , lavatrice ecc.in modo da non far notare il loro ingombro .mi piace un arredamento moderno con un pavimento in ceramica tipo parquet
Una casa dove posso passare l estate , ma posso anche locare
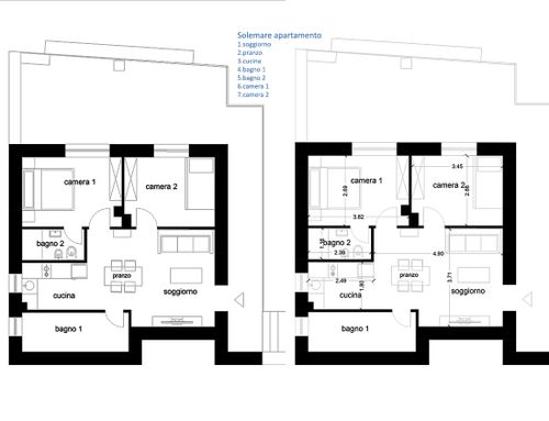
vorrei mantenere 2 camere anche cambiando disposizione ,un ambiente soggiorno/ cucina,2 bagni con doccia un po più grande da poter mettere un sediolino perchè ho problemi ad una gamba.in un bagno lo spazio per la lavatrice
vorrei allargare lo spazio della porta d ingresso,eliminando la finestrina in modo da avere più luce in casa
Sul terrazzo vorrei creare un ripostiglio anche stretto lungo la balconata ( C ) sostituire il serbatoio dell acqua con uno piu piccolo e più carino,mettere una fontana per sciacquare i piedi quando si sale da mare,un lavatoio,uno spazio per il barbecue portatile
queste sono indicazioni di massima
sono aperto a più soluzioni
grazie e buon lavoro
Di seguito allego video della casa:
https://www.youtube.com/watch?v=KkCFwSBH_-E&feature=youtu.be