
San Giovanni In Marignano, Province of Rimini, Italy
Residenziale - Appartamento
Descrizione
Ciao! Siamo Matteo e Claudia, una coppia di 30enni e questa รจ la nostra prima casa. Si tratta di un piccolo appartamento degli anni '80 al piano terra rialzato con giardino, completamente da ristrutturare, nel contesto di una palazzina quadrifamiliare. I punti fermi che vorremmo realizzare sono:
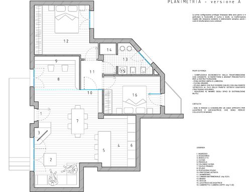
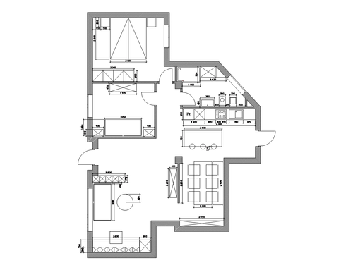
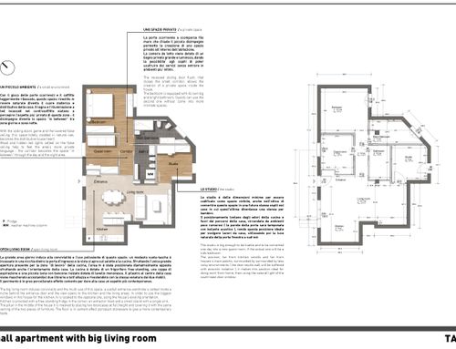
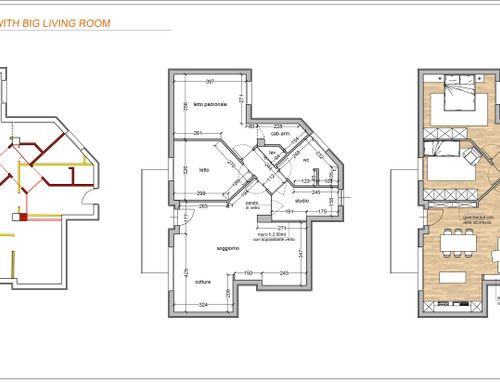
1) Grande living open space che contenga cucina con isola/penisola, tavolo da pranzo 2x1m (o allungabile all'occasione) e un grande divano comodo davanti allo schermo tv
2) 2 camere da letto di cui la matrimoniale possibilmente con cabina armadio
3) 1 bagno con doccia
4) zona studio
5) zona lavanderia/ripostiglio (la colonna lavanderia potrebbe essere inserita anche nel bagno)
Lo stile che ci piace รจ quello scandinavo, non troppo minimal ma con qualche tocco vintage/mid century modern.
Ci piacciono il legno, i colori chiari neutri, il microcemento e qualche tocco di colore che dia carattere.
I punti negativi dell'appartamento sono:
1) poca luminositร : 2 lati dell'app.to non sono esposti alla luce
2) basso budget: causa ristrutturazione completa con rifacimento impianti, il budget per gli arredamenti รจ basso.
3) altezza limite di 270 cm
Hello! We are Matteo and Claudia, a 30 year old couple and this is our first home. It is a 80' small apartment on the raised ground floor with garden, in the context of a four-family building. The house has to be completely restructered. The key points that we would like to achieve are:
1) Large open space living room with kitchen island, dining table 2x1 m (or extensible) and a large comfortable sofa in front of the TV screen
2) 2 bedrooms, the double one possibly with walk-in closet
3) 1 bathroom with shower
4) study area
5) laundry area / utility room (the laundry area could also be in the bathroom)
We like scandinavian style, not too minimal but with some vintage / mid century modern touches.
We like wood, light neutral colors, concrete and some touches of color to give personality
The negative points of the apartment are:
1) little brightness: 2 apartament's sides are not exposed to light
2) low budget: due to complete renovation with the remake of the systems, the budget for the furniture is low.
3) height limit of 270 cm