
Reggio Emilia, Province of Reggio Emilia, Italy
Residenziale - Zona Giorno/Notte
Descrizione
---------------------------
ENGLISH BELOW!!!!
---------------------------
INTRODUZIONE:
Ciao, siamo una famiglia (big size! tre bimbi) che recentemente si Γ¨ trasferita in una villa a Reggio Emilia. La villa e' stata costruita negli anni 80 da un conosciuto architetto che lβha valorizzata con un progetto originale dotandola di forte personalitΓ . Lo spazio Γ¨ ben organizzato (open space nella zona giorno e studio chiuso, zona notte organizzata su un piano superiore con un dislivello di soli 8 gradini, un mini appartamento autonomo e una spaziosa taverna).
Quando ci siamo trasferiti due anni fΓ abbiamo scelto di tenere il piΓΉ possibile il progetto e lo stile originario affrontando qualche rimordenarizzazione solo lΓ dove necessario.
Ora abbiamo voglia di portare a termine lβarredamento della casa concentrandoci sulla zona giorno che ha bisogno di una rilettura in chiave moderna in quella che Γ¨ stata unβidea di forte personalitΓ quando progettata.
Siamo entusiasti dell βidea di Go Pillar di poterla trasformare con il vostro aiuto! Saremmo felici di essere un testimonial del vostro lavoro mandandovi foto una volta svolto il lavoro.
Il nostro interesse si concentra su:
β’ Riprogettazione del muro con il caminetto
β’ Tinte murali (pittura o carta da parati)
β’ Miglioramento dellβilluminazione. A causa del portico esterno e del legno a soffitto si presenta come un ambiente non troppo luminoso)
β’ Area salotto
β’ Tendaggi (non abbiamo idea di che tende potrebbero stare bene in un ambiente come questo, siamo avidi di suggerimenti!)
β’ Decorazione, piante. (tenendo presente la poca luce)
β’ Ingresso
ABOUT:
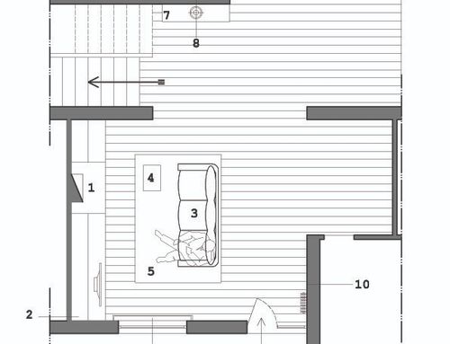
La zona giorno Γ¨ un open space che comprende lβarea salotto, la zona pranzo e la cucina. Solo lβarea salotto misura 4.7 x 5.5 m.
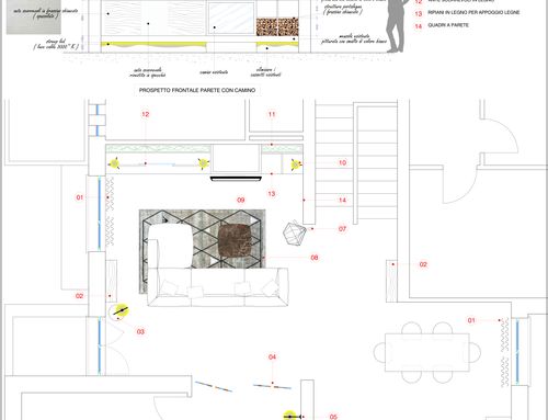
Lβarea salotto che comprende la zona antistante alla parete con il camino, ha nel soffitto una cupola di legno. Nella parete con il camino (non usato) cβΓ¨ la tv, due mensole in cemento con la testata in legno, 8 cassetti. Questo muro attrezzato Γ¨ la parte principale che noi vorremmo aggiornare. La parete adiacente Γ¨ costituita principalmente da un grande finestrone e dalla porta di ingresso. Le altre due pareti sono aperte sulla zona pranzo.
THE MAIN WALL:
Abbiamo bisogno delle tue idee soprattutto per ridisegnare la parete attrezzata con il camino. Al momento ci sono due profonde mensole (80 cm) in cemento che attraversano la parete. Le mensole sono ricoperte in testata e nel top con legno. Sotto la mensola piΓΉ in basso, a livello pavimento, ci sono 8 cassetti. All βinterno della parete cβΓ¨ il caminetto che vorremmo tenere. Vorremmo ristrutturare questa parete tenendo la struttura di fondo (le due pareti sono in cemento) ma utilizzando magari il carton gesso..? in piΓΉ ci piacerebbe avere uno spazio chiuso dove chiudere tutti i giochi dei bimbi.
IL MURO CON IL FINESTRONE:
Sia nel finestrone che nelle finestre dellβambiente pranzo sarebbe ideale utilizzare tende leggere che non trattengono luce coordinate tra loro.
COLORE ALLE PARETI:
Vista la mancanza di luce il colore bianco Γ¨ sicuramente consigliato. Forse qualche inserto di carta da parati?
ARREDAMENTO
Ad ora l ambiente Γ¨ arredato con: un largo divano ad L. color sabbia chiara e la TV che chiediamo rientrino nel progetto. Proponi pure altri elementi di arredamento.
LUCI:
La cupola Γ¨ stata dotata di 20 tubi LED alla propria base che la illuminano. Abbiamo aggiunto una striscia di led sotto la scaffale superiore della parete attrezzata. A parte questi quali altri punti luce proporresti?
PIANTE:
Ci piacerebbe avere piante in casa. Le riesci a comprendere nel tuo progetto?
QUADRI:
Ci piacerebbe arredare le parete con quadri. Vista la pesantezza data dal legno che arreda infissi, pareti, soffitto i quadri proposti dovrebbero essere βleggeriβ come acquerelli o stampe con scritte o quadri dai colori allegri.
INGRESSO:
Avremmo bisogno di attrezzare l ambiente dellβingresso che Γ¨ costituito da una bussola di 2,00 x 1,50. Ci piacerebbe nascondere le scarpe. Per le giacche abbiamo giΓ un armadio allβentrata in sala.
STILE:
Gli stili che ci piacciono sono asian, eclectic, coastal, minimalistic.
Non amiamo gli stili: industrial, vintage, shabby chic, retro, rustic.
Ci piacciono riferimenti e allusioni ai viaggi dal momento che per lavoro e piacere viaggiamo molto. Ci piacerebbe che la nostra zona giorno fosse affascinante, dove gli ospiti siano continuamente sorpresi e stimolati e abbiano voglia di esplorare ogni dettaglio.
SUMMARY:
Siamo in cerca della tua creativitΓ e delle tue idee per ristrutturare al meglio il nostro ambiente giorno! Senza perdere di vista la funzionalitΓ dellβambiente che di fatto Γ¨ abitatissimo da ben tre bimbi. Questa casa Γ¨ stata acquistata come βla casa per la famiglia βe vorremmo renderla il piΓΉ possibile bella, affascinanteβ¦. Speciale!
Grazie!
-------------
ENGLISH
-------------
INTRODUCTION:
Hello, we are a family (huge! 3 kids) who has recently installed in a villa in Reggio Emilia, Italy. The villa was built in the 80s,
there was style and mind in the original project that was drawn by a valued architect, space has been well organized (living area, sleeping area, additional little apartment for guests, tavern). When we installed two years ago we tried to keep as much as possible the original setting, yet with some modernization ... We now have time and energy for the fine tuning... we would like to concentrate on the living room that needs innovation, reshaping and a novel personality. We are excited to make it beautiful together with you. This design contest is for our Living Room. We would be happy to write a great testimonial for your design skills and to send you the photos of the completed Living Room once it is decorated/remodeled.
The winning design would address all the following:
β Reshaping a wall with a chimney
β Color Scheme (paint or wallpaper)
β Improving Lighting Fixtures
β Entertainment area
β Curtains
β Decoration/Plants
β Entry way
ABOUT:
The living room is an open space that connects to the dining area and kitchen. The living room itself is about 4.7m x 5.5m.
It has a wooden (!) dome (!!). There is a main wall with TV, chimney (not used), wooden shelves, 8 drawers: this wall is the main part that we would like to reshape. On another wall there are a large door window and the entry door from the entry way. The remaining two sides of the room are open. Despite large windows, there is not extremely much light due to the external portico.
THE MAIN WALL: Here we need your ideas. Currently there are two massive horizontal shelves, both made of cement and covered with wooden. Above the top shelf there is white wall, between the top and bottom shelves there is the TV with a wooden wall, below the bottom shelf there are 8 wooden drawers. Notice that the shelves are quite deep (80 cm). Also there is a vertical chimney (that we also would like to keep). How would you reshape this, possibly by keeping the structure? Maybe using drywall? Would it be possible to have a closed space on the right of the chimney?
THE WALL WITH WINDOWS: Super-light curtains that do not diminish light? We could add these also the windows
of the kitchen to create continuity.
COLOR SCHEME & WALLS:
Preferred wall color is white to cope with light shortage. Maybe partially use wallpaper?
FURNITURE:
The furniture we have are (a) large couch L-shaped, (b) colored carpet, (c) TV. We need to keep them in the context of your design. Please propose creative additional furniture.
LIGHTS:
The dome has 20 LED tube hidden behind the curb, light is reflected from the roof. We put LED lightstrip below the top shelf. Please propose additional lighting to create atmosphere.
PLANTS:
We are open to add indoor plants ... should they fit your project. In case please propose an effective way to display them.
WALL ART:
We plan to have some custom-made paintings on the walls. X-large painting size is welcome.
Similarly we are open to further suggestions on wall decoration/paintings/wall print.
ENTRYWAY:
We have a substantial entry way. Please propose how to hide the shoes and umbrella container.
I like the guests to always take off their shoes.
STYLE
Styles we like: modern, classic, scandinavian, contemporary. Some reference to travel would be great, as we travel a lot.
Styles we are ok with: asian, eclectic, coastal, minimalistic,
Styles we donβt like: industrial, vintage, shabby chic, retro, rustic
Weβd like for the Living Room to be visually fascinating, where guests would be continuously surprised and stimulated, and would want to explore every detail.
SUMMARY
We really value your help and your creativity (but please don't forget functionality!). This is a family home and we are eager to make it as beautiful as possible. In summary, we are looking for a house that is fascinating, full of unusual and eye-catching detail.
Thank you!