Roma, RM, Italia
Residenziale - Appartamento
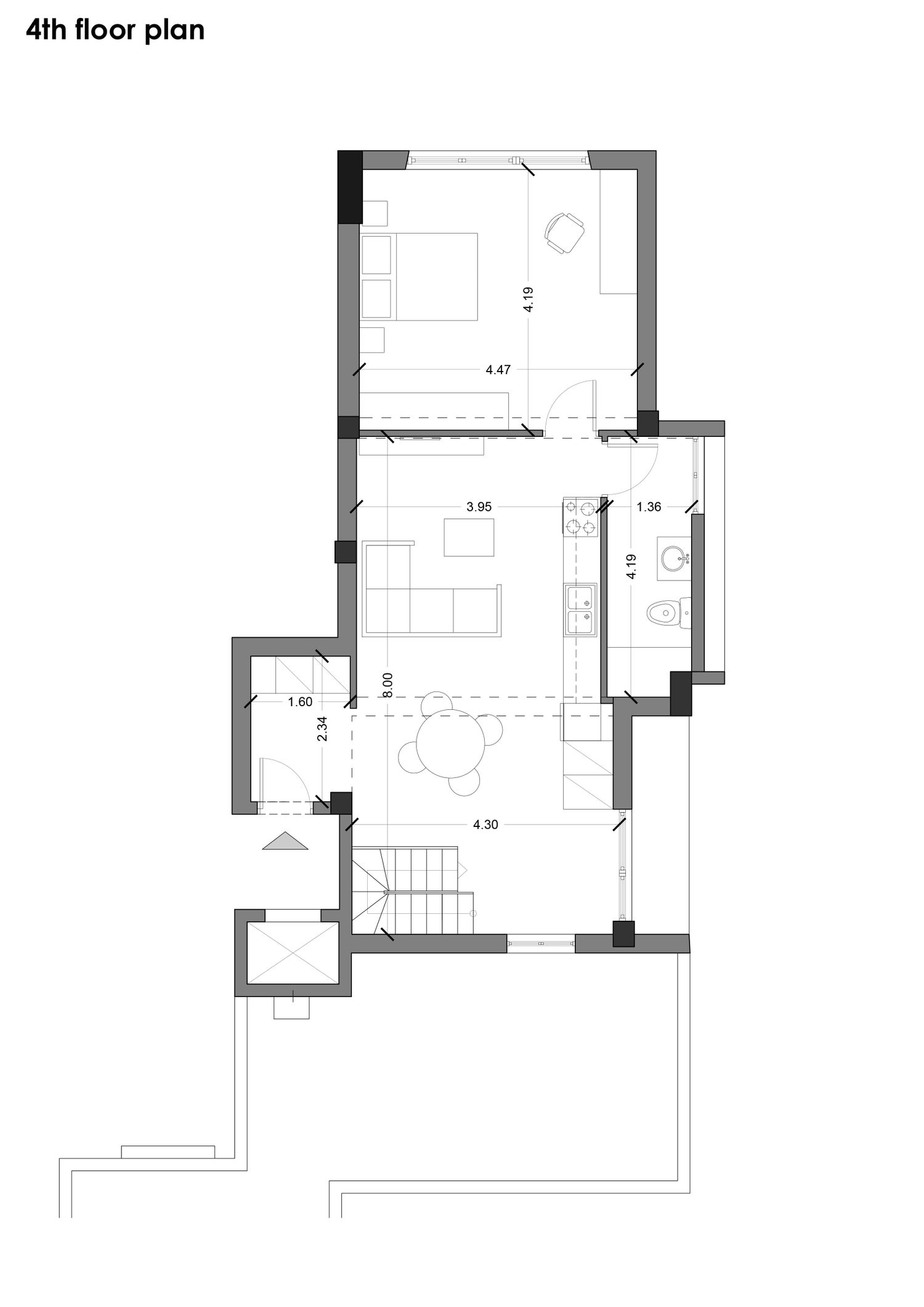
The proposal aims to create two separate apartments that can be connected via an internal staircase and door. On the fourth floor, there is a large bedroom, and the kitchen and living room are connected. The bathroom has been positioned in a location that does not require new plumbing.
On the fifth floor, the apartment can be accessed either from the main entrance of the building or via the internal staircase, which leads to a private door on this level. Here too, the kitchen and living room are connected, with a kitchen island conceptually separating the two spaces. The bathroom has been placed in the same location as in the existing layout, while the bed (at the highest point of the attic) and a desk have been positioned in the attic space. Since the attic does not have a high ceiling, these functions were chosen because they do not require the person to stand upright.